Flat for sale 3+kk • 55 m² without real estateRýchorské sídliště, Svoboda nad Úpou - Maršov I, Královéhradecký Region
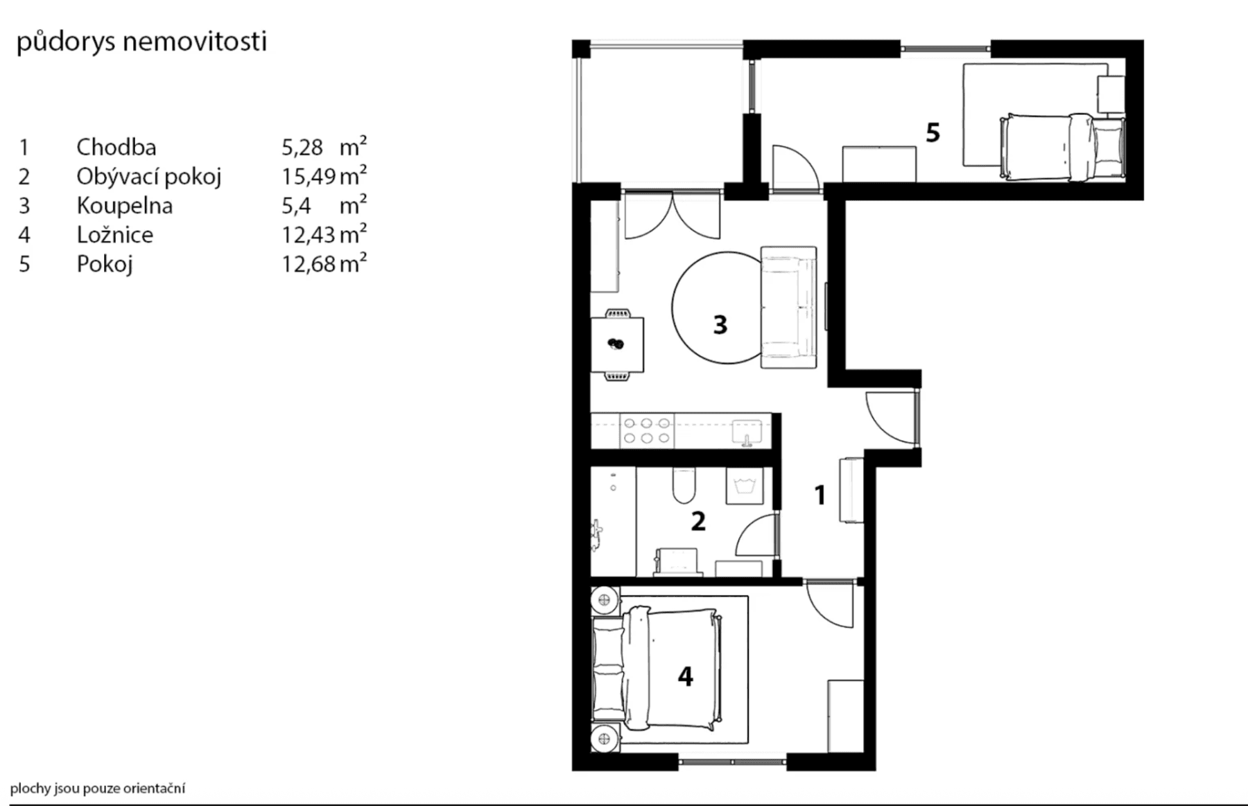
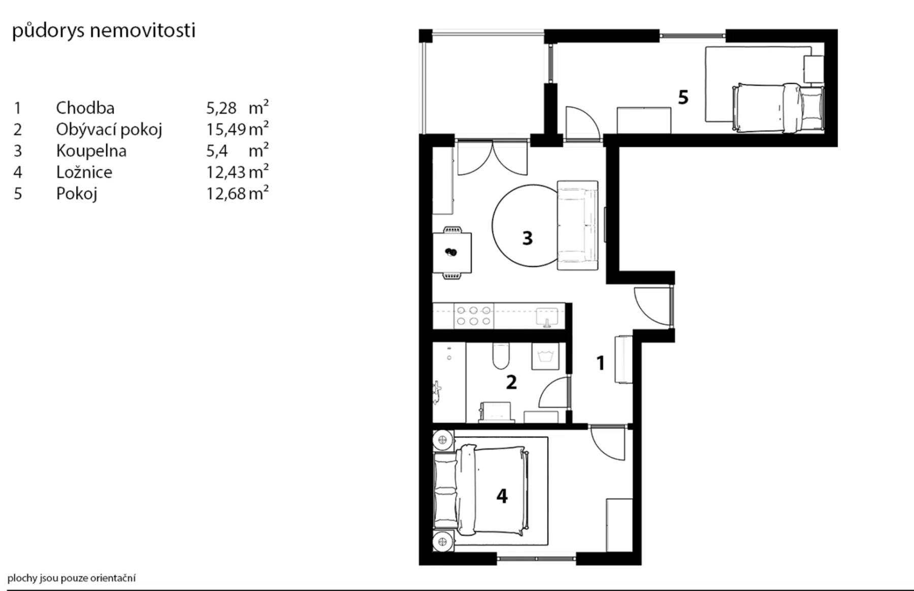
Nabízíme k prodeji nový byt/apartmán v komorním projektu Rýchorské apartmány o 7 bytech ve Svobodě nad Úpou, která je bránou do Krkonoš. Efektivně řešený byt o dispozici 3+kk má menší obývací pokoj s kuchyňským koutem a vstupem na terasu o rozloze 7 m2; dvě samostatné neprůchozí ložnice, z nichž jedna má vstup z obývacího pokoje a druhá z chodby; koupelnu s vanou, dvoj- umyvadlem, bidetovou sprchou a WC. Byt s podlahovou plochou 55 m2 má terasu orientovanou do zahrady a výhled na okolní kopce. K bytu náleží komora 2 m2 hned vedle bytu, sklep 2 m2 v suterénu domu a parkovací stání v ceně. Podlahy obytných místností jsou dřevěné, v chodbě a koupelně je keramická dlažba.
Pouhé 3 km od domu je jeden z největších českých skiareálů Černá hora – Pec s 50 km sjezdovek, na jehož vrchol Vás vyveze kabinová lanovka Černohorský expres. Resort má velice pestré vyžití, díky němuž je oblíbený jak rodinami s dětmi tak i zkušenými lyžaři. Je zde lyžařská škola, sáňkařská dráha, snowtubing, stezka v korunách stromů a v neposlední řadě 55 km běžkařských tratí. Do všech okolních skiareálů Vás zdarma doveze skibus, který má zastávku téměř u domu. V létě lze využít cyklobus. Přímo ve Svobodě je v dochozí vzdálenosti menší rodinný skiareál Dunkan. V 5 km vzdálených Mladých Bukách najdete mimo lyžařského vyžití také snowpark, bike park, dětský zábavní park o rozloze 40 000 m2, bobovou dráhu, brouzdaliště, naučné stezky a mini ZOO. V širokém okolí zde naleznete mimo lyžování a zimních sportů celoroční vyžití, jako je turistika, cyklistika a v neposlední řadě i houbaření. Svoboda nad Úpou je strategické místo k podnikání výletů po celých Krkonoších a můžete sem dojet z Prahy přímým linkovým autobusem, který má zastávku kousek od domu.
V blízkosti domu jsou restaurace a obchod s potravinami. V centru města je potom veškerá občanská vybavenost.
We offer for sale a new apartment in the intimate Rýchorské Apartmány project, which comprises 7 apartments in Svoboda nad Úpou – the gateway to the Krkonoše mountains. This efficiently designed 3+kk apartment features a smaller living room with a kitchenette and an entrance to a 7 m² terrace; two separate, non-interconnecting bedrooms – one with access from the living room and the other from the hallway; and a bathroom equipped with a bathtub, dual sinks, a bidet shower, and a toilet. With a floor area of 55 m², the apartment boasts a terrace facing the garden and offers views of the surrounding hills. Accompanying the apartment are a 2 m² storage room located right beside it, a 2 m² cellar in the building’s basement, and a parking space included in the price. The floors in the living areas are wooden, while the hallway and bathroom are finished with ceramic tiles.
Just 3 km from the property lies one of the largest Czech ski resorts, Černá hora – Pec, which offers 50 km of slopes and is served by the Černohorský Express cable car that takes you to its summit. The resort provides a wide range of activities that appeal both to families with children and to experienced skiers. Among its amenities are a ski school, a sledding track, snow tubing, a treetop trail, and – not least – 55 km of cross-country skiing trails. A free ski bus, with a stop almost at the property, will take you to all the surrounding ski areas, and during the summer months a cycle bus is available. Right within walking distance in Svoboda, you will also find a smaller family ski area called Dunkan. Additionally, in Mladé Buky, just 5 km away, you can enjoy not only skiing but also a snowpark, a bike park, a 40,000 m² children’s playground, a bobsleigh track, a wading pool, nature trails, and a mini ZOO. The entire surrounding area offers year-round activities such as hiking, cycling, and even mushroom picking, beyond the skiing and winter sports. Svoboda nad Úpou is a strategic location for excursions throughout the entire Krkonoše range, and it is easily accessible from Prague by a direct coach service with a stop close to the property.
Nearby the house are a restaurant and a grocery store, and in the town center you will find all necessary public amenities.
Property characteristics
| Available from | 11/04/2026 |
|---|---|
| Building construction | Brick |
| Fully furnished | Unfurnished |
| Listing ID | 1011417 |
| EPC | G - Extremely uneconomical |
| Usable area | 55 m² |
| Condition | Very good |
|---|---|
| Layout | 3+kk |
| Floor | 2. floor out of 3 |
| Ownership | Personal |
| Location | Quiet area |
| Price per unit | CZK 81,800 / m2 |
Are you choosing a apartment?
Make sure you have all the important information!
What does this listing have to offer?
| Basement: 2 m² | |
| Terrace: 7 m² |
| Parking |
What you will find nearby
Still looking for the right one?
Set up a watchdog. You will receive a summary of your customized offers 1 time a day by email. With the Premium profile, you have 5 watchdogs at your fingertips and when something comes up, they notify you immediately.















