Flat for sale 4+1 • 107 m² without real estateBorkumerstr.1 Wiesbaden Wiesbaden Hessen 65199
Borkumerstr.1 Wiesbaden Wiesbaden Hessen 65199Public transport 3 minutes of walking • GarageExclusive, very bright, 4-room maisonette apartment in a quiet and family-friendly Wiesbaden location.
The chic apartment with its clever floor plan is presented in excellent condition. Located on the third floor of a very well-maintained residential complex built in 1994, this gem of an apartment awaits.
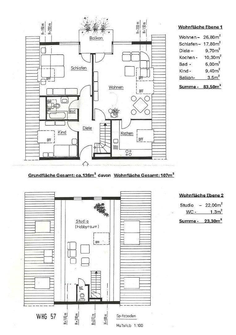
The apartment has a total area of approximately 136 m² with a living space of about 107 m² spread over two levels.
On the lower level, there is an approximately 45 m² living/dining area with an open kitchen and access to the balcony, 2 bedrooms (one of which also has balcony access), a fantastic daylight bathroom, plus an amazing studio with a separate toilet on the upper level.
The apartment is very bright and offers wonderful views in all directions.
The flooring in the living areas consists of robust and high-quality materials; the hallway, the daylight bathroom with sanitary fixtures by Villeroy & Boch, as well as the toilet on the upper floor are tiled.
In 2023, premium air conditioning units were installed so that during the summer months a pleasant living climate prevails, while in the winter months the system can also be used for heating.
In this context, the balcony was also upgraded with new flooring and a branded canopy installed.
The high-quality fitted kitchen with modern Siemens appliances is not included in the purchase price.
The exceptionally lovely apartment is heated using district heating.
Additionally, the apartment includes a cellar room of approximately 12 m² and shared use of a bicycle/laundry room.
The monthly homeowners’ fee is €390/month.
The condominium community (WEG) is very well-maintained with no maintenance backlog, and the reserves are above average, so the property is excellently positioned for future modernization measures.
An underground parking space with a power connection, e.g., for charging electric vehicles, completes the property – purchase price €20,000.
Key data at a glance:
• Living space: approximately 107 m² / plus usable area approx. 29 m²
• Layout: 4 rooms, kitchen, bathroom, balcony
• Floor: 3rd floor
• Year built: 1994
• Move-in date by arrangement
Extras / Special features:
• High-quality fitted kitchen (Siemens appliances)
• Modern and high-quality equipment
• Balcony access from two rooms
• Fully air-conditioned (cooling and heating)
• Covered balcony with new flooring
• Large cellar
• Underground parking space including power connection
• Nice and friendly neighborhood
• Great location
• Low-energy apartment (see energy certificate)
• No buyer commission
Property characteristics
| Age | Over 5050 years |
|---|---|
| Layout | 4+1 |
| Listing ID | 1011284 |
| Price per unit | €4,196.26 / m2 |
| Condition | Good |
|---|---|
| Floor | 3. floor out of 3 |
| Usable area | 107 m² |
What does this listing have to offer?
| Balcony | |
| Garage |
| Basement | |
| MHD 3 minutes on foot |
What you will find nearby
Still looking for the right one?
Set up a watchdog. You will receive a summary of your customized offers 1 time a day by email. With the Premium profile, you have 5 watchdogs at your fingertips and when something comes up, they notify you immediately.













