House for sale 3+1 • 92 m² without real estateDorfstrass 5, , Mecklenburg-Vorpommern
Perhaps first the reason for the sale of this house; the owner has passed away, and the son has taken his mother into his house, which is a few kilometers away. I am a good acquaintance and am helping with the sale.
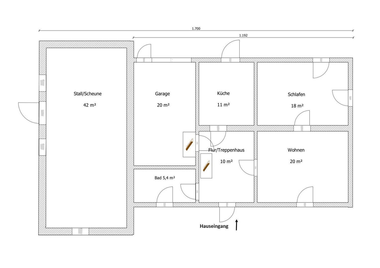
About the house: it was built in 1948 and partly renovated in 1993/94. The living area on the ground floor is approximately 90 m², the upper floor, which is not yet developed, about 120 m². A cellar room of approximately 9.00 m² is also accessible from the hallway. From the hallway, you can access a garage of about 20 m², and next to it is a 42 m² barn/stable that was formerly used for keeping animals. The house is currently heated by several night storage heaters (the inexpensive night electricity is available here). The main electricity connection and fuse box have recently been renewed, as has the water connection in the cellar room. Some windows have been replaced with new plastic windows, some interior doors and frames have been renewed, and the ceilings have been clad in wood. However, I should mention that there is certainly still some need for renovation/modernization and possibly further development. This is also reflected in the very favorable sale price.
The property also impresses with its great plot of land of 3100 m²; it is completely fenced with a 2 m high fence, and an adjacent piece of land of about 2000 m² can be used free of charge if needed. There is a well for private water supply, which has been drilled 32 m deep and is equipped with a high-performance pump.
A three-chamber septic tank is located on the property. The property is ideal for keeping animals—chickens, horses, or dogs, for example. There is an old orchard (currently a bit overgrown, awaiting revival). Absolute tranquility is guaranteed. Approximately 500-700 m away are wind turbines, which cause neither any noticeable noise nor any shadow. The wooden stables still located on the property can be removed upon request. The energy certificate is available.
The village of Panschow is located about 2 km from the federal road B 197, between Anklam (approximately 11 km) and Friedland (14 km). Panschow is a district of the municipality Sarnow, which has about 440 inhabitants. The Bundesautobahn A 20 is 25 km away (Neubrandenburg North exit).
Absolute quiet residential area. Nature: the Brohmer Mountains and the Stettiner Haff/Ueckermünde are accessible in about 30 minutes. For possible excursions: Uckermünde Zoo, the Baltic Sea coast (about 1 hour), Berlin (approximately 1.5 hours), and the nearest city is about 11 km away. Note for city dwellers: rural life is inherent here, occasional tractor traffic during harvest season is part of the village scene and merely underlines the rural character.
If interested, you can reach me at 0152-53590284.
Property characteristics
| Age | Over 5050 years |
|---|---|
| Layout | 3+1 |
| EPC | G - Extremely uneconomical |
| Land space | 3,101 m² |
| Price per unit | €1,032.61 / m2 |
| Available from | 11/04/2026 |
|---|---|
| Listing ID | 1011186 |
| Usable area | 92 m² |
| Total floors | 1 |
What does this listing have to offer?
| Garage | |
| MHD 4 minutes by car |
| Parking |
What you will find nearby
Still looking for the right one?
Set up a watchdog. You will receive a summary of your customized offers 1 time a day by email. With the Premium profile, you have 5 watchdogs at your fingertips and when something comes up, they notify you immediately.

















