
House for sale 3+1 • 86 m² without real estate, Mecklenburg-Vorpommern
, Mecklenburg-VorpommernPublic transport 2 minutes of walking • ParkingWelcome to your new home – or your next holiday paradise!
This well-maintained semi-detached house, built in 2016, is located in the idyllic Körchow district of the Biendorf community, just about 10 km from the Baltic Sea resorts of Kühlungsborn and Rerik. The house has previously been used as a holiday home and comes fully furnished – you can move in immediately or start renting it out right away! The modern fitted kitchen and built-in wardrobes are already included in the purchase price.
The ground floor impresses with a bright living and dining area and direct access to a spacious southwest terrace. It is complemented by a guest WC, the utility room for the building’s connections, and high-quality building technology.
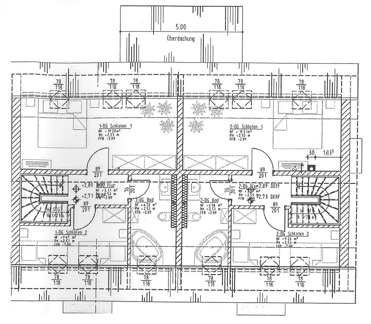
Upstairs you will find two cozy bedrooms and a modern shower room.
The attic provides additional storage space.
The underfloor heating ensures a pleasant room climate, and the roof covered with engobbed clay tiles gives the house an especially refined appearance.
Körchow is a quiet, green district of Biendorf in the Rostock district. The Baltic Sea resorts of Kühlungsborn and Rerik are reachable in only 10 minutes by car – perfect for beach lovers and those seeking tranquility in a rural atmosphere.
In the vicinity you will find:
• Shopping facilities
• Doctors and pharmacies
• Schools and kindergartens
• Good transport connections toward Rostock, Bad Doberan, Kröpelin, and Neubukow
The combination of nature, proximity to the Baltic Sea, and complete infrastructure makes this property ideal for both owner-occupiers and holiday rental investors.
• High-quality fitted kitchen in a modern style
• Fully furnished including built-in wardrobes
• Underfloor heating in all rooms
• Modern bathroom + guest WC
• Feature staircase
• Engobbed clay tiles
• Insect protection
• Sun protection blinds on roof windows
• Alarm system preparation
• Utility room + attic storage
• Large terrace with garden area
• Utility room for building connections (electricity, gas, telecommunications, drinking water)
• Energy-efficient & modern
• Well-maintained condition – ready for immediate occupancy
• Suitable for use as a holiday home or primary residence
• Transfer possible from 05/2026
• Energy certificate will be provided
Have we piqued your interest?
Then we look forward to your inquiry and are happy to provide you with further information or arrange a viewing appointment.
Property characteristics
| Age | Over 5050 years |
|---|---|
| Condition | Good |
| Listing ID | 1010880 |
| Land space | 241 m² |
| Price per unit | €3,825.58 / m2 |
| Available from | 01/05/2026 |
|---|---|
| Layout | 3+1 |
| Usable area | 86 m² |
| Total floors | 2 |
What does this listing have to offer?
| Parking | |
| Terrace |
| MHD 2 minutes on foot |
What you will find nearby
Still looking for the right one?
Set up a watchdog. You will receive a summary of your customized offers 1 time a day by email. With the Premium profile, you have 5 watchdogs at your fingertips and when something comes up, they notify you immediately.






















