
Flat to rent 4+1 • 108 m² without real estateLudwig-Thoma-Straße, 16, , Bavaria
Ludwig-Thoma-Straße, 16, , BavariaPublic transport 4 minutes of walking • Lift • GarageThis spacious 108 m² maisonette apartment is located right at the edge of the forest in Feucht and impresses with an open, bright floor plan. The apartment is situated on the top floor of a well-maintained complex (18 units in the building) and, thanks to its top-floor position, offers a high level of privacy – there are no neighbors living above you.
Thanks to the excellent S-Bahn connection, you are only about 20 minutes away from Nuremberg city center, yet you live in a location where hiking and jogging trails begin right at your door on the forest edge.
A special feature is the approximately 34 m² studio on the top floor. With its well-thought-out layout and additional separate access via the staircase, it offers flexible usage possibilities: ideal as a professional home office, hobby space, or as a separate area for family members. A modern elevator (to be installed in 2025) takes you comfortably right up to the apartment door.
The apartment is located directly adjacent to the forest. The residential complex also features its own playground.
• Public Transport: About a 5-minute walk to the S-Bahn station “Feucht Ost” (S3) – approximately 20 minutes to Nuremberg Main Station.
• Amenities: Shops, doctors, and schools in Feucht are easily accessible.
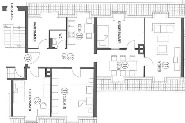
Living area: Approximately 108 m² on two levels.
• Bright: Numerous windows and the top-floor position ensure very bright rooms.
• Outdoor area: South-west loggia with broad views of the sky and surrounding area.
• Energy efficiency: Top rating (Class B) ensures predictable additional costs.
• Kitchen: High-quality fitted kitchen included (note: delivered without a refrigerator).
• Flexibility: Top-floor studio with separate access; ideal for both living and working.
• Comfort: Underfloor heating in the living area, storage room with a washing machine connection within the apartment.
• Storage: Basement compartment as well as additional storage in the private attic.
• Parking: Single parking space in the underground garage.
The monthly costs:
• Cold rent for the apartment: €1,350.00
• Rent for the underground parking space: €60.00
• Advance for additional costs: €350.00 (including heating, water, property tax, elevator, etc.)
• Total rent (warm): €1,760.00
• Rental deposit: €4,050.00 (3 months’ cold rent)
Your way to the new apartment:
To enable prompt processing of your inquiry, we kindly ask for a brief personal introduction (Who would like to move in? What is your occupation?).
Please note that the following documents are required to finalize a rental agreement (to be submitted after the viewing):
• Voluntary tenant self-disclosure
• Current credit report (not older than 3 months)
• Income statements for the last 3 months
• Proof of identity
Property characteristics
| Age | Over 5050 years |
|---|---|
| Condition | Good |
| Floor | 4. floor out of 4 |
| EPC | B - Very economical |
| Price per unit | €12.50 / m2 |
| Available from | 01/05/2026 |
|---|---|
| Layout | 4+1 |
| Listing ID | 1010325 |
| Usable area | 108 m² |
What does this listing have to offer?
| Balcony | |
| Garage | |
| MHD 4 minutes on foot |
| Basement | |
| Lift |
What you will find nearby
Still looking for the right one?
Set up a watchdog. You will receive a summary of your customized offers 1 time a day by email. With the Premium profile, you have 5 watchdogs at your fingertips and when something comes up, they notify you immediately.




















