Flat for sale 3+1 • 80 m² without real estateBochum Wiemelhausen Nordrhein-Westfalen 44799
Bochum Wiemelhausen Nordrhein-Westfalen 44799Public transport 1 minute of walking • GarageFREIESLEBEN-IMMOBILIEN presents to you this stylish high ground floor condominium with balcony, cellar, and private garage in the popular Bochum district of Wiemelhausen.
The high-quality apartment is located in a well-maintained 9-family building. The building was constructed in 1969 with solid construction on freehold land and is fully basements.
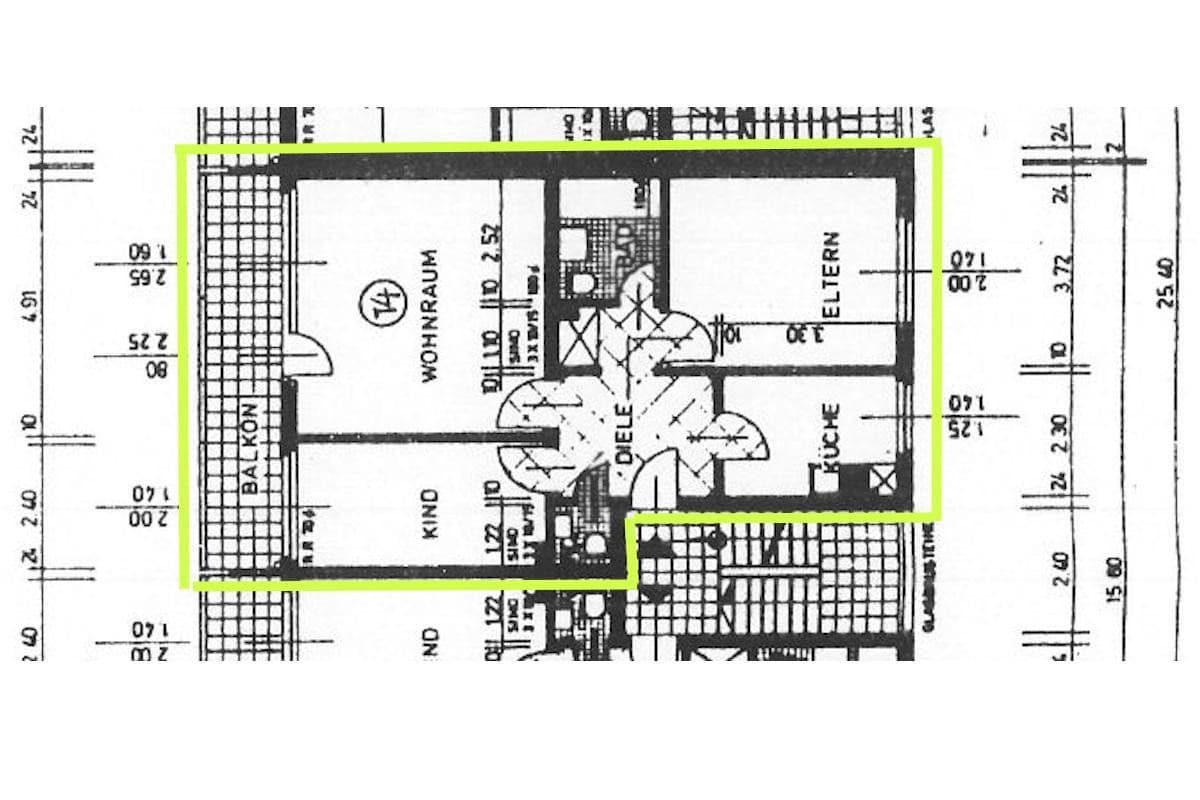
The modern-designed apartment, extensively renovated in 2019, offers approximately 84 m² of living space including a living room with access to the large west-facing balcony, a master bedroom with a large fitted wardrobe, a child’s room, a kitchen with a chic fitted kitchen, a bathroom modernized in 2019, a guest toilet modernized in 2019, and an entrance hall.
The windows in the living room were renewed in 2008, and the windows in the bedroom and child’s room were renewed in 2019.
Additional storage space is provided by the private cellar room. A separate laundry and drying room is available to the condominium community, featuring its own parking space and water connections for a washing machine and dryer.
For the car, there is a garage with an electrically operated sectional door.
The apartment is heated with a gas-fired floor heating system from 2008.
The external walls, cellar ceilings, the building’s roof, and the garages beneath the apartments are insulated.
The monthly service charge, including garden maintenance, winter service, and cable fee, amounts to €407 in total and is broken down as follows:
• Chargeable: €257.96
• Non-chargeable: €39.46
• Maintenance reserve: €109.58
As of 12.03.2026, the total amount of the maintenance reserve for the jointly owned houses was €136,918.24, of which €6,845.91 pertains to the apartment on offer.
The annual property tax amounts to €240.03.
Would you like to view the property immediately?
Then please send us an inquiry via the contact form or by email, and we will contact you promptly.
Written inquiries are processed significantly faster than telephone inquiries!
NO COMMISSION FOR THE BUYER
This beautiful apartment is located in a conveniently situated residential area in the popular Bochum district of Wiemelhausen, close to the well-known Königsallee.
The nearby, popular Kirchviertel in Bochum Wiemelhausen offers shops for daily necessities, cafés, restaurants, pharmacies, doctors, as well as kindergartens, primary schools, and a district library.
Excellent transport connections are provided by the nearby A43 motorway, the city motorway A448 (Opel-Ring), and University Street with the U35 light rail line.
• Stylish high ground floor condominium in a well-kept 9-family building
• Year built: 1969
• Solid construction
• Approximately 84 m² of living space
• Large west-facing balcony
• Chic fitted kitchen
• Private cellar room
• Garage with electrically operated sectional door
This is a non-binding offer from
FREIESLEBEN GmbH,
Viktoriastraße 45
44787 Bochum
Tel.: 0234 – 92 56 98 00
You can reach us by phone MONDAY through SUNDAY from 7:00 a.m. to 10:00 p.m. On weekends, we also offer our services for property valuation, property viewings, and getting to know you personally.
With regard to the property, we rely on the information provided by the owners and authorities. No liability can be assumed for the accuracy and completeness of the details provided. In addition, no warranty can be given for the property, and the liquidity of the contracting parties is not guaranteed.
Would you also like to have your property marketed professionally?
• Take advantage of our free service and have the current value of your property estimated by one of our real estate specialists.
• Optimize the sales potential of your property by letting us create a marketing plan specifically tailored to your property.
• Utilize our excellent nationwide network to promptly connect you with prospective buyers. Hundreds of interested buyers are waiting for you!
Call us – we look forward to hearing from you!
Münsterland Headquarters: Tel.: 0251 – 39 444 998
Ruhr Area Headquarters: Tel.: 0234 – 92 56 98 00
Property characteristics
| Age | Over 5050 years |
|---|---|
| Layout | 3+1 |
| EPC | D - Less economical |
| Price per unit | €4,062.50 / m2 |
| Condition | Good |
|---|---|
| Listing ID | 1010285 |
| Usable area | 80 m² |
What does this listing have to offer?
| Balcony | |
| Garage |
| Basement | |
| MHD 1 minute on foot |
What you will find nearby
Still looking for the right one?
Set up a watchdog. You will receive a summary of your customized offers 1 time a day by email. With the Premium profile, you have 5 watchdogs at your fingertips and when something comes up, they notify you immediately.















