House for sale 5+1 • 167 m² without real estate, Baden-Württemberg
, Baden-WürttembergPublic transport 3 minutes of walking • Parking • GarageThe modern single-family house features a daylight basement living area, a stunning lighting concept, two south-facing terraces with a unique view of Gräbelesberg, a high-quality fitted kitchen, two shower bathrooms, two studies, and two separate children's rooms. It is move-in ready, only 7 years old, and boasts an energy efficiency certificate KfW 55. The spacious plot includes a large lawn for playing children as well as a utility garden with various beds and fruit trees. The beautifully designed front garden is a real eye-catcher. An extra-wide garage, two parking spaces, and a beautiful garden house (2025) leave nothing to be desired.
/// Bidding process - Starting bid €725,000
Laufen is a part of Albstadt in the heart of the Swabian Alb. Gräbelesbergstraße is located in a quiet residential area and features a dead end with proximity to a forest. In the area, there is a newly built kindergarten (2021) and an elementary school, and there is also a train station for commuters to Tübingen or Stuttgart. Shopping opportunities and doctors can be reached within a few minutes by car. This year, construction will commence on the new Zollernalb Central Clinic in the neighboring town.
House manufacturer: Schwörer-Haus, timber frame construction
Extra-wide garage: 700 x 358 x 259 cm plus 2 parking spaces
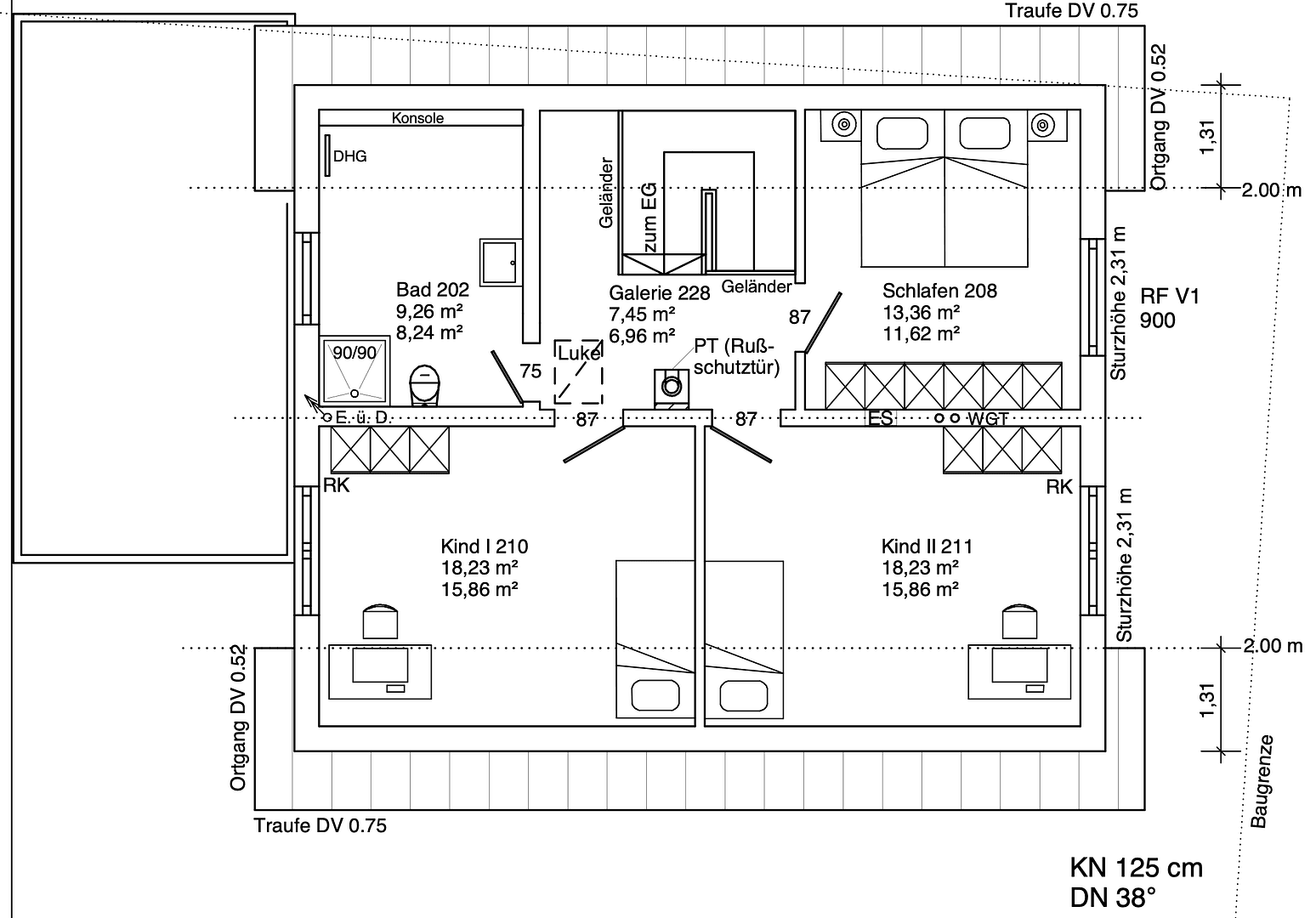
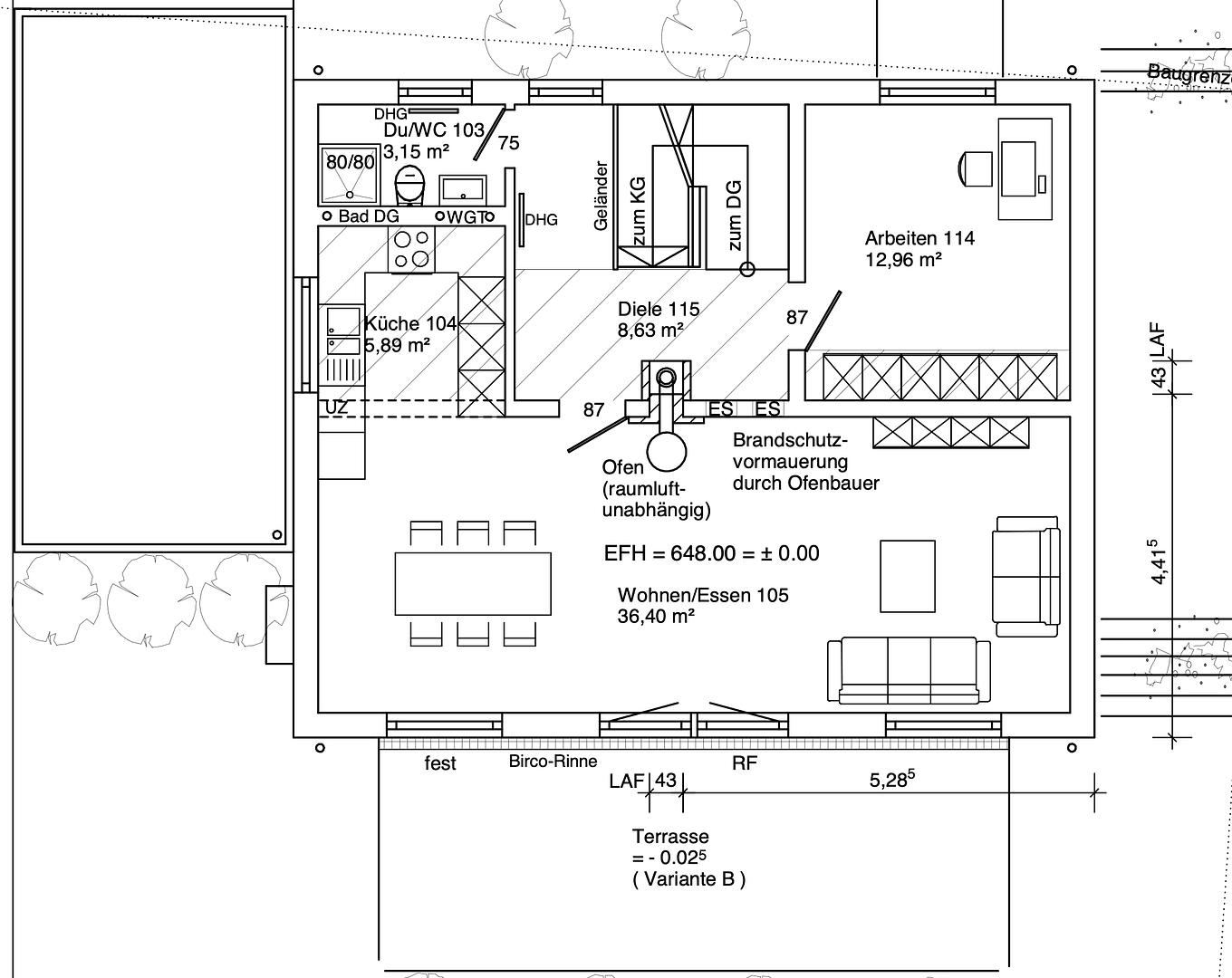
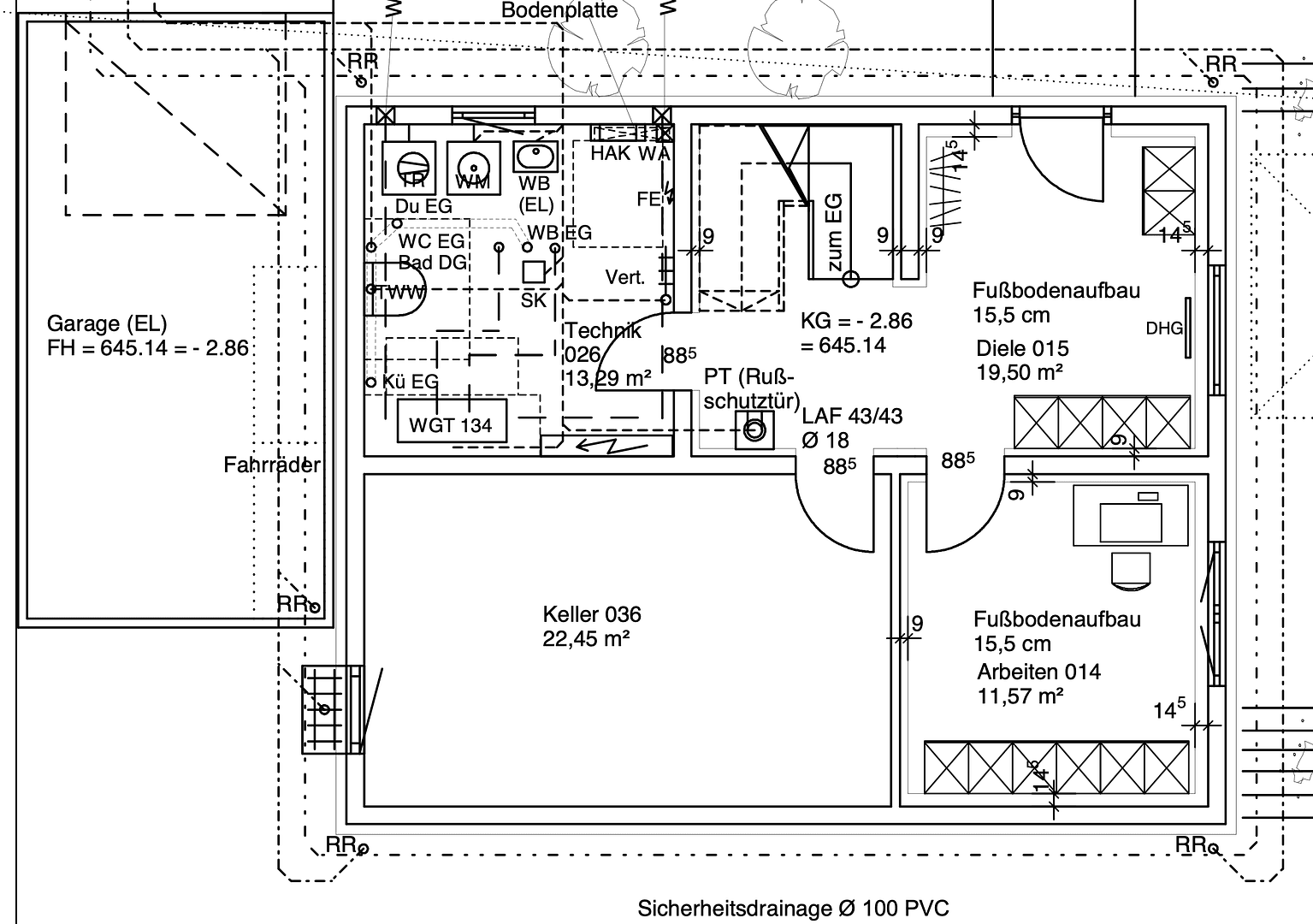
Rooms: 1 bedroom, 2 children's rooms, 2 shower bathrooms, 2 studies, a large living kitchen with dining and living room, 2 basement rooms
Heating: Air-to-air heat pump plus fireplace
Energy standard: KfW 55
PV system: 9.9 kWp system with a 9 kWh battery including a smart wallbox for charging with PV surplus
Cistern: 7000 l (with a 30-year warranty)
Water softener system: BWT system
Property characteristics
| Age | Over 5050 years |
|---|---|
| Condition | Very good |
| Listing ID | 1009524 |
| Land space | 741 m² |
| Price per unit | €4,341.32 / m2 |
| Available from | 01/08/2026 |
|---|---|
| Layout | 5+1 |
| Usable area | 167 m² |
| Total floors | 3 |
What does this listing have to offer?
| Basement | |
| Parking | |
| Terrace |
| Garage | |
| MHD 3 minutes on foot |
What you will find nearby
Still looking for the right one?
Set up a watchdog. You will receive a summary of your customized offers 1 time a day by email. With the Premium profile, you have 5 watchdogs at your fingertips and when something comes up, they notify you immediately.





