Flat for sale 4+kk • 66 m² without real estatePekárenská, České Budějovice - České Budějovice 3, Jihočeský Region
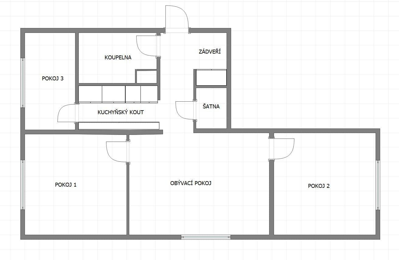
Nabízíme k prodeji krásný prosluněný byt, který spojuje výhody bydlení v centru města s promyšlenou dispozicí pro velkou rodinu. Tento kompletně zrekonstruovaný byt 4+kk (66 m²) v 8. podlaží 7. patro z 8 možných nabízí nejen moderní design, ale i výhled na Černou věž.
Čím je tento byt jedinečný?
Víc prostoru pro každého: Díky chytré změně dispozice z 3+1 na 4+kk získáte tři samostatné ložnice a obývací pokoj a kuchyňský kout. V bytě je taktéž k dispozici zádveří a šatna.
Jižní orientace obývacího pokoje vám každý den nabídne pohled na historické jádro města a Černou věž. Ostatní pokoje jsou orientovány na východ a západ, což zaručuje dostatek světla po celý den.
Vše na dosah ruky: Pár kroků od IGY Centra, 10 minut volnou chůzí na náměstí. Ideální pro ty, kteří chtějí nechat auto zaparkované v rezidentní zóně a užívat si město v dochozí vzdálenosti.
Veškerá občanská vybavenost v dochozí vzdálenosti do pár minut.
Stav a náklady:
Byt prošel kompletní rekonstrukcí. Včetně výměny elektrických rozvodů a rozvodů vody a odpadů.
V ceně je zahrnuta moderní kuchyňská linka a vestavné prvky.
Dům byl revitalizován, zateplen a taktéž jsou vyměněny stoupačky v celém domě. Disponuje moderním výtahem.
Měsíční náklady jsou díky úspornému hospodaření domu pouze 4 200 Kč + náklady za el. energie.
Rád zodpovím všechny případné dotazy skrze komunikační platformu.
Property characteristics
| Available from | 01/07/2026 |
|---|---|
| Building construction | Precast concrete |
| Fully furnished | Partly |
| Listing ID | 1009350 |
| EPC | B - Very economical |
| Usable area | 66 m² |
| Condition | Very good |
|---|---|
| Layout | 4+kk |
| Floor | 8. floor out of 9 |
| Ownership | Personal |
| Location | Centre |
| Price per unit | CZK 89,242.42 / m2 |
Are you choosing a apartment?
Make sure you have all the important information!
What does this listing have to offer?
| Wheelchair accessible | |
| Lift |
| Basement: 2 m² | |
| Parking |
What you will find nearby
Still looking for the right one?
Set up a watchdog. You will receive a summary of your customized offers 1 time a day by email. With the Premium profile, you have 5 watchdogs at your fingertips and when something comes up, they notify you immediately.










