
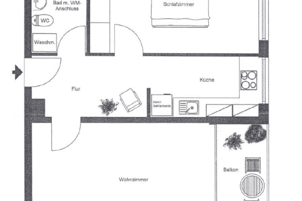
Flat to rent 1 bedroom • 39 m² without real estateFrankfurt Schwanheim Hessen 60528
Frankfurt Schwanheim Hessen 60528Public transport less than a minute of walking • Lift • GarageProject "MAINWALD"
Living between the urban forest and the skyline. High-quality rental apartments in a new construction, first occupancy.
Excellent public transport connections.
Shopping facilities reachable on foot.
Restaurants, bistros, cafés, and bars in the immediate vicinity.
Beautiful playgrounds and great recreational areas.
Five daycare centers in the immediate surroundings.
The Frankfurt-Niederrad S-Bahn station as well as additional stops (bus, tram) are reachable on foot in 5 to 7 minutes.
All everyday requirements, e.g. supermarkets and restaurants, are in the immediate vicinity of the building.
Highway A5 is a 3 to 5-minute drive.
The airport is 10 minutes away by car or 2 stops by S-Bahn (S8/S9).
Fitted kitchen.
Showers.
Property characteristics
| Age | Over 5050 years |
|---|---|
| Condition | Very good |
| Floor | 1. floor out of 7 |
| EPC | B - Very economical |
| Price per unit | €23.08 / m2 |
| Available from | 17/04/2026 |
|---|---|
| Layout | 1 bedroom |
| Listing ID | 1009321 |
| Usable area | 39 m² |
What does this listing have to offer?
| Balcony | |
| Basement | |
| Lift |
| Wheelchair accessible | |
| Garage | |
| MHD 0 minutes on foot |
What you will find nearby
Still looking for the right one?
Set up a watchdog. You will receive a summary of your customized offers 1 time a day by email. With the Premium profile, you have 5 watchdogs at your fingertips and when something comes up, they notify you immediately.













