
House for sale 5+1 • 130 m² without real estateWaldkraiburg Waldkraiburg Bayern 84478
Waldkraiburg Waldkraiburg Bayern 84478Public transport 1 minute of walking • GarageYou're looking for a house in a quiet location, with friendly neighbors. Then this is exactly right.
Your new home offers:
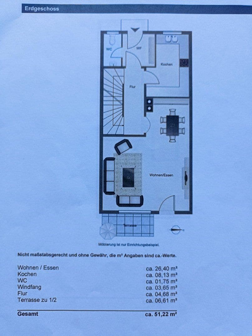
Ground floor:
• A lovely entrance area
• Kitchen with fitted kitchen
• Guest WC
• Large living room with a dining area and a cozy Swedish stove
Upper floor:
• Bathroom with a window and electric underfloor heating
• Office or children’s room – as you prefer
• A large bedroom with plenty of space
Attic:
• Two beautiful, bright children’s rooms
Loft with hatch
Basement:
• Fully cellarized
Quiet location with good infrastructure.
Right in the midst of friendly neighbors and in a safe environment.
The row house features a gas central heating system with a Swedish stove in the living room. The bathroom is equipped with electric underfloor heating. The central heating was renewed approximately 3 years ago, and a new front door was installed about 4 years ago. A playhouse in the garden and further construction projects have been carried out. Parquet flooring, tiles, and cork flooring. Very good room layout. It’s worth a visit. Good condition.
Property characteristics
| Age | Over 5050 years |
|---|---|
| Condition | Good |
| Listing ID | 1008871 |
| Usable area | 130 m² |
| Total floors | 3 |
| Available from | 01/05/2026 |
|---|---|
| Layout | 5+1 |
| EPC | C - Economical |
| Land space | 114 m² |
| Price per unit | €3,300 / m2 |
What does this listing have to offer?
| Basement | |
| MHD 1 minute on foot |
| Garage | |
| Terrace |
What you will find nearby
Still looking for the right one?
Set up a watchdog. You will receive a summary of your customized offers 1 time a day by email. With the Premium profile, you have 5 watchdogs at your fingertips and when something comes up, they notify you immediately.


















