
Flat to rent 2 bedroom • 59 m² without real estateZiegelstraße 47 Dessau-Roßlau Roßlau (Elbe) Sachsen-Anhalt 06862
Ziegelstraße 47 Dessau-Roßlau Roßlau (Elbe) Sachsen-Anhalt 06862Public transport 3 minutes of walkingWe rent three freshly renovated 2-room apartments in a well-maintained multi-family house in Dessau-Roßlau. The apartments are currently being completed. Built-in kitchens and infrared heaters are still being installed at the moment. The planned move-in date is from May 2026; an earlier move-in is also possible after consultation.
Note: Some of the pictures were created with the support of AI for illustration purposes.
APARTMENT 1 – Ground Floor, approx. 57 m²
Bright 2-room apartment with a balcony facing the inner courtyard, fully equipped kitchen with electrical appliances, and a bathroom with a bathtub. Only 3 steps to the entrance – largely barrier-free. Cold rent: €428 | Additional costs: €60 | Deposit: €1,284
APARTMENT 2 – Ground Floor, approx. 37 m²
Compact 2-room apartment with a balcony facing the inner courtyard, fully equipped kitchen with electrical appliances, and a bathroom with a bathtub. Only 3 steps to the entrance – largely barrier-free. Cold rent: €278 | Additional costs: €50 | Deposit: €834
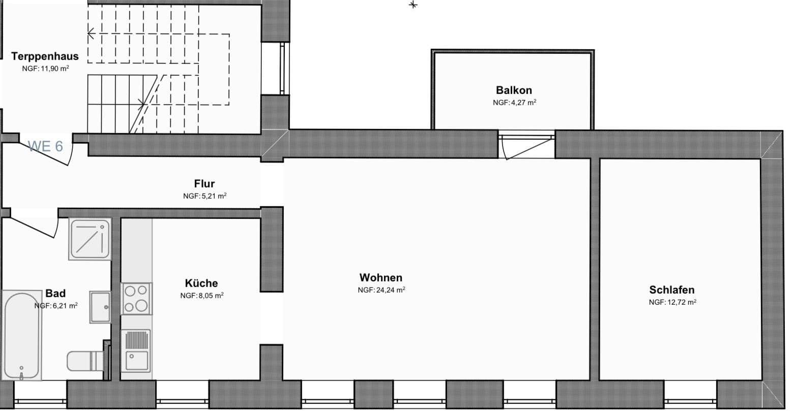
APARTMENT 3 – 1st Floor, approx. 59 m²
Spacious 2-room apartment with a balcony facing the inner courtyard, fully equipped kitchen with electrical appliances, and a bathroom with a bathtub and a shower. Cold rent: €443 | Additional costs: €60 | Deposit: €1,329
The building is located in a quiet residential area in the Roßlau district with excellent access to nearby amenities. REWE, dm, and medical practices are within about a 500 m walk. The nearest bus stop is approximately 200 m away, and Roßlau Station is about a 600 m walk, offering direct train connections to the region as well as links to Leipzig, Magdeburg, Berlin, and Potsdam. There are plenty of free parking spaces available in front of the house. The location combines quiet living with short distances to daily necessities.
All apartments have been freshly renovated. Built-in kitchens with electrical appliances and modern ceiling-mounted infrared heating panels are currently being installed and will be fully completed by move-in. The heating is centrally controlled via a regulator – the tenant independently concludes the electricity contract, ensuring that heating costs are completely transparent and controllable. The building has an energy efficiency rating of B.
Each apartment features a balcony facing the quiet inner courtyard.
Apartments 1 (57 m², ground floor) and 2 (37 m², ground floor) offer a bathroom with a bathtub. The entrance is accessible with only 3 steps and is largely barrier-free. For tenants classified as requiring care level 1, I offer, upon request within the first year of tenancy, a free conversion of the bathroom to a disabled-accessible design with a level-access shower.
Apartment 3 (59 m², 1st floor) offers a bathroom with both a bathtub and a shower.
Property characteristics
| Age | Over 5050 years |
|---|---|
| Condition | After reconstruction |
| Floor | 1. floor out of 3 |
| Usable area | 59 m² |
| Available from | 04/04/2026 |
|---|---|
| Layout | 2 bedroom |
| Listing ID | 1008774 |
| Price per unit | €8 / m2 |
What does this listing have to offer?
| Balcony | |
| MHD 3 minutes on foot |
| Basement |
What you will find nearby
Still looking for the right one?
Set up a watchdog. You will receive a summary of your customized offers 1 time a day by email. With the Premium profile, you have 5 watchdogs at your fingertips and when something comes up, they notify you immediately.


























