Flat to rent 4+1 • 115 m² without real estatePirnaer Landstraße 14, , Saxony
The last of our 5 apartments in the historic renovation at Pirnaer Landstraße 14, Stolpen.
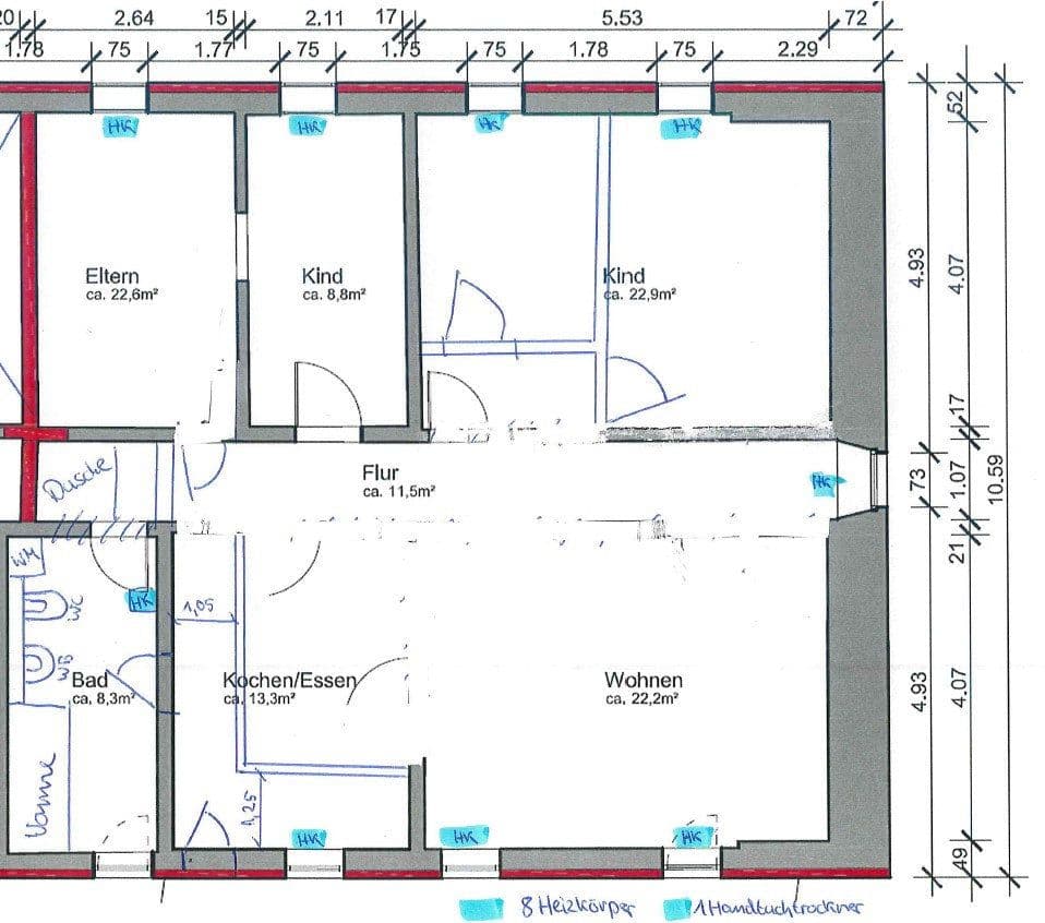
Spacious and bright, this apartment includes the use of an attic compartment as storage and a laundry drying area; there is a basement available, however it is damp; a bicycle room is located on the ground floor; balcony; 2 parking spaces across from the property, one of which is under a carport.
VIEWINGS available immediately!
Quiet location in the old town of Stolpen, yet very close to the centre. All educational and medical facilities are quickly reachable on foot.
Every room features a radiator, there is a towel dryer in the bathroom, along with a shower, bathtub, and washing machine—all new; interior doors, designer flooring, ceiling/walls/floor insulated.
Property characteristics
| Age | Over 5050 years |
|---|---|
| Condition | Very good |
| Floor | 1. floor out of 2 |
| Usable area | 115 m² |
| Available from | 01/06/2026 |
|---|---|
| Layout | 4+1 |
| Listing ID | 1008584 |
| Price per unit | €7 / m2 |
What does this listing have to offer?
| Balcony | |
| Parking |
| Basement |
What you will find nearby
Still looking for the right one?
Set up a watchdog. You will receive a summary of your customized offers 1 time a day by email. With the Premium profile, you have 5 watchdogs at your fingertips and when something comes up, they notify you immediately.






