
House for sale 4+kk • 115 m² without real estateMergenthalerstr. 4/1 Heilbronn Biberach Baden-Württemberg 74078
Mergenthalerstr. 4/1 Heilbronn Biberach Baden-Württemberg 74078Public transport 5 minutes of walking • Parking • GarageThis lovingly and high-quality renovated end-of-terrace house combines modern living, a well-thought-out layout, and an exceptionally quiet location with a view of nature. As an end-of-terrace house, you benefit from significantly more light, privacy, and a unique sense of home.
The light-filled living and dining area forms the heart of the house. Large windows open up views of the spacious terrace facing southwest, which—thanks to the dense canopy of trees—is completely shielded from prying eyes, making it a true refuge for relaxed hours outdoors.
The separate, spacious kitchen impresses with a modern fitted kitchen and a charming bay window that is ideal for a small breakfast table—the perfect spot to start your day.
With a total of four rooms, including three bedrooms, the house offers ample space for couples, families, or home office use. Two small balconies provide additional private retreats on the upper floor.
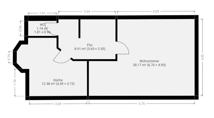
The daylight-filled bathroom is comfortably equipped with a corner bathtub and a spacious XXL shower. A separate guest WC ideally complements the available space.
Additional Highlights:
• Practical basement storage room
• Separate washing machine area
• Storage/utility room
• Large attic with expansion potential
• Garage as well as an additional outdoor parking space
Technical Data:
• Year built: 1995
• Gas heating from 2018
• Roof from 1995 with intermediate rafter insulation and attic insulation
• PVC windows with double glazing
• High-quality, solid construction
You can move in directly here without any major hassle.
All information provided is without guarantee. No inquiries from real estate agents.
The Biberach district in Heilbronn features a moderate population density and good infrastructure. Public transportation is well developed, with bus lines such as line 12 providing a direct connection to the city center, and the S-Bahn line S4 offering quick links to surrounding towns. Biberach is characterized by single-family homes and offers a pleasant atmosphere for families and professionals. With green parks, schools, and shopping facilities nearby, Biberach is an attractive place to live for anyone who desires a quiet environment with good connectivity.
See description.
Property characteristics
| Age | Over 5050 years |
|---|---|
| Layout | 4+kk |
| EPC | E - Wasteful |
| Land space | 320 m² |
| Price per unit | €4,339 / m2 |
| Condition | After reconstruction |
|---|---|
| Listing ID | 1008063 |
| Usable area | 115 m² |
| Total floors | 3 |
What does this listing have to offer?
| Balcony | |
| Garage | |
| MHD 5 minutes on foot |
| Basement | |
| Parking | |
| Terrace |
What you will find nearby
Still looking for the right one?
Set up a watchdog. You will receive a summary of your customized offers 1 time a day by email. With the Premium profile, you have 5 watchdogs at your fingertips and when something comes up, they notify you immediately.












