
Flat to rent 3+kk • 106 m² without real estateMulheim an der Ruhr Speldorf Nordrhein-Westfalen 45479
Mulheim an der Ruhr Speldorf Nordrhein-Westfalen 45479Public transport less than a minute of walking • ParkingHistoric Charm Meets Designer Modernization in Speldorf/Broich
Move in. Settle in. Feel at home.
This exceptionally stylish, partially furnished 3.5-room old building apartment on the first floor of a very well-maintained and orderly three-family house (built in 1933, extensively modernized in 2001, and luxuriously renovated in 2025) combines the best of two worlds: classic old-world elegance and modern living comfort.
From the moment you step inside, you can feel the unique atmosphere: approximately 3-meter high ceilings, a harmonious sense of space, and a thoughtful, modern design. The apartment is entirely equipped with real hardwood flooring – including the staircase – which creates a warm, high-quality, and utterly timeless feel.
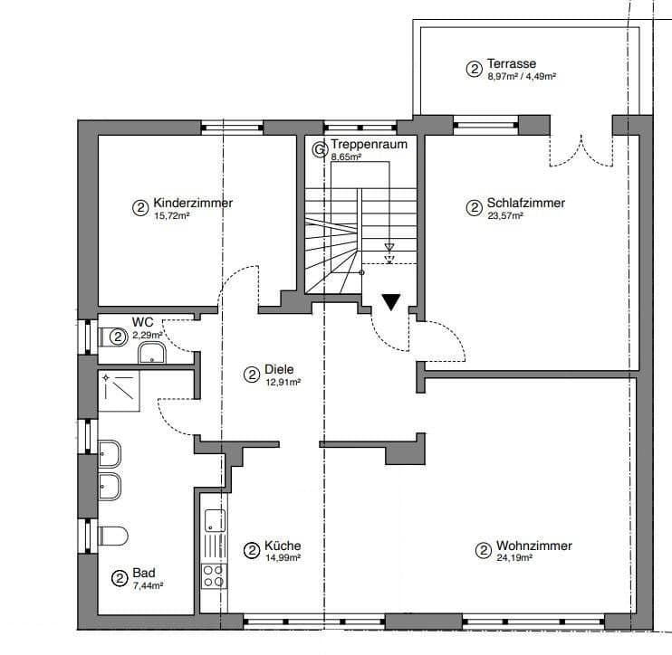
Living with Style – Approximately 105.9 m², Perfectly Designed
The apartment offers approximately 105.9 m² of living space, including:
- A generous hallway area
- A spacious living kitchen that serves as the heart of the apartment
- A bedroom with access to the balcony and views of the garden (a quiet rear aspect)
- An office/children’s room
- A modern bathroom along with a separate guest WC
Highlights That Are Hard to Find
- Old building charm combined with modern renovation (2025)
- Over 3-meter high ceilings – spacious and bathed in natural light
- Real hardwood flooring throughout the apartment, including the staircase
- A new, high-quality fitted kitchen with appliances (including dishwasher, fridge/freezer combination, oven, microwave, and hob) – all included in the rental price
- Air conditioning
- A bathroom featuring a bathtub and a spacious shower
- A separate guest WC
Key Data
- Additional costs: €350 per month
- Available: Immediately
Location – Speldorf/Broich: Quiet, Green, and Ideally Connected
The apartment is located in one of Mülheim’s most popular residential areas: Speldorf/Broich, just a few minutes away from Uhlenhorster Wald. The surroundings, with the Mülheimer Parkstadt, offer a beautiful landscape that invites you to relax and unwind. Shopping facilities, schools, and day-care centers are nearby, and the access to the A40 and A3 highways allows for short commutes to the surrounding cities.
All mirrors and the fitted kitchen are part of the apartment and are included in the rental price.
Property characteristics
| Age | Over 5050 years |
|---|---|
| Condition | After reconstruction |
| Floor | 1. floor |
| EPC | E - Wasteful |
| Price per unit | €17 / m2 |
| Available from | 06/04/2026 |
|---|---|
| Layout | 3+kk |
| Listing ID | 1007980 |
| Usable area | 106 m² |
What does this listing have to offer?
| Balcony | |
| Parking |
| Basement | |
| MHD 0 minutes on foot |
What you will find nearby
Still looking for the right one?
Set up a watchdog. You will receive a summary of your customized offers 1 time a day by email. With the Premium profile, you have 5 watchdogs at your fingertips and when something comes up, they notify you immediately.










