House for sale 3+1 • 200 m² without real estate, Mecklenburg-Vorpommern
, Mecklenburg-VorpommernPublic transport 1 minute of walking • ParkingArchitect House (2023) with Gallery, ELW & Dream Garden near the Baltic Sea
A+ | Almost energy self-sufficient | Ready for occupation | No commission
Modern, high-quality designed architect house in 18317 Saal (Mecklenburg-Western Pomerania) – set between a Bodden landscape and the Baltic coast.
Completed in 2023, the house combines clear architecture, light-flooded rooms, and a well-thought-out floor plan with exceptional energy quality.
Property Details:
Purchase Price: €825,000
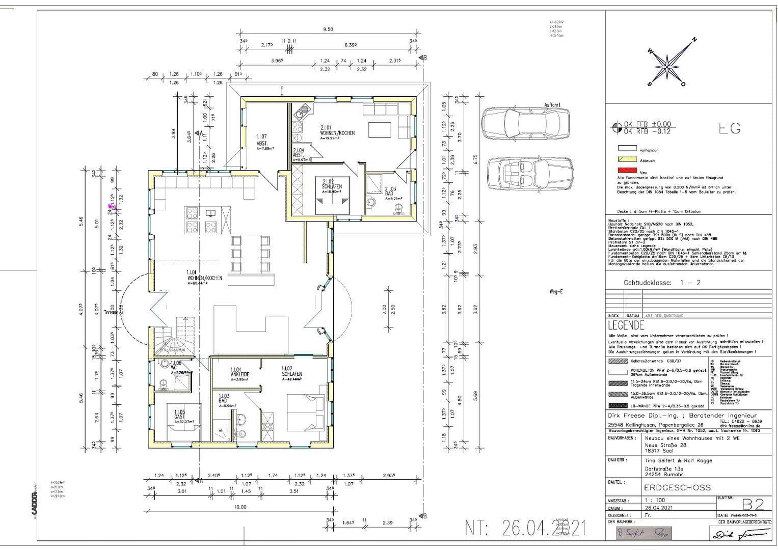
Living Area: approx. 200 m² (including a secondary apartment of approx. 36.5 m²)
Plot: approx. 753 m²
Year Built: 2023
Energy Efficiency Class: A+
Complete property documents (floor plans, energy certificate, construction description, etc.) are available and can be provided for financing inquiries.
The sale is commission-free and directly from the owner.
Property Description:
The open-plan living area of around 100 m² with approximately 7 m high ceilings creates an extraordinary sense of space. The impressive gable glazing and large windows fill the space with natural light, establishing a harmonious connection between the interior and the exterior.
The house was built using sustainable construction methods and meets the highest energy standards. Modern architecture is combined with long-term cost efficiency and future security.
Technical Equipment & Energy:
• Air source heat pump
• Photovoltaic system
• Underfloor heating
• Fiber optic connection
With modern building technology, near electricity self-sufficient living is possible. The current total annual costs, including additional expenses and building insurance, amount to only approx. €2,800.
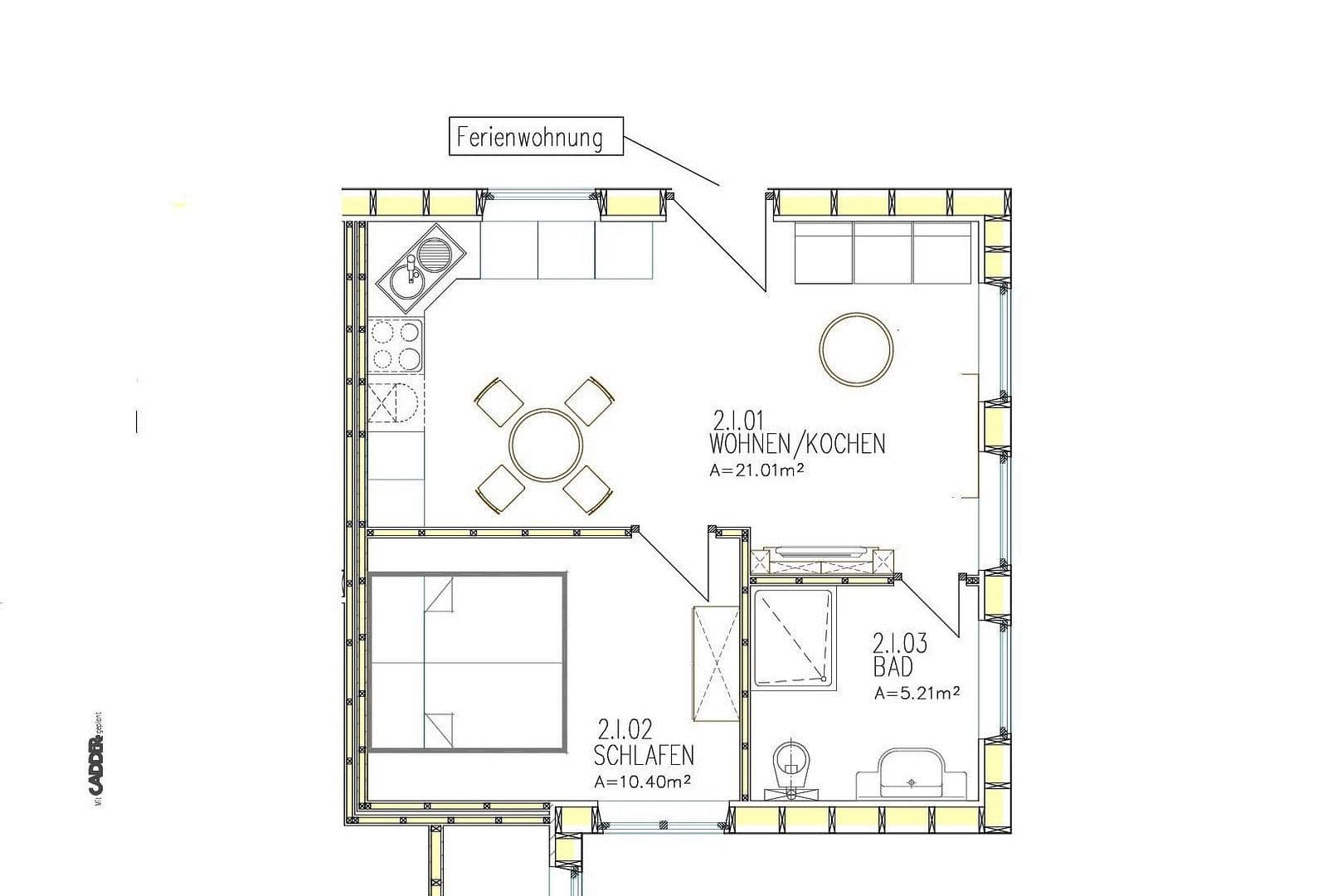
The separate secondary apartment (approx. 36.5 m²) is versatile in use and features its own entrance, fitted kitchen, and a modern bathroom with a level-access shower.
The usage is approved by local building regulations – a significant advantage as similar approvals in the region are increasingly handled restrictively.
Ideal For:
– Vacation rentals (approved)
– Guests or multi-generational living
– Separate home office
Planning & Timing Advantage:
New construction projects are often associated with long planning and approval phases as well as construction times of 2–3 years.
Here, you acquire a high-quality, already completed house – without construction cost risks, without waiting, and without uncertainties. Move in instead of planning.
The sale is commission-free directly from the owner – resulting in significant cost savings for buyers compared to usual real estate agent commissions.
The house is fully ready for occupancy. Handover will take place by individual arrangement. Viewings are carried out by appointment.
We look forward to serious inquiries from interested parties who appreciate the architectural quality and exceptional energy efficiency of this property.
Location Description:
Saal near Ribnitz-Damgarten in Mecklenburg-Western Pomerania is situated in a quiet and nature-oriented setting between the Bodden landscape and the Baltic Sea coast. The surrounding area offers a high quality of life with plenty of nature, water, and openness – ideal for those who value peace and space.
The Baltic Sea is reachable in about 25 minutes. Shopping facilities, schools, kindergartens, and medical care are located in nearby Ribnitz-Damgarten and are conveniently reachable within approximately 10–15 minutes by car.
This location combines a natural living environment between Bodden and the Baltic Sea with practical everyday infrastructure – ideal for anyone who wishes to enjoy the tranquility of nature without sacrificing good connectivity.
Usage & Potential:
Ideal for couples with a taste for architecture and energy efficiency, for multi-generational living, or as a combination of owner-occupied and rental property.
The approved secondary apartment provides additional income opportunities or offers flexible space for guests, a home office, or private retreats.
With its energy-efficient construction (A+) and modern building technology, the property offers long-term cost security along with sustainable value retention.
Additionally:
Custom-made pleated blinds in the main house and the secondary apartment, as well as selected pieces of furniture, lighting, and TV devices, can optionally be purchased if desired.
Please Note:
Due to high demand, we kindly ask interested parties to provide a brief introduction (e.g., planned usage or timeframe).
Property characteristics
| Age | Over 5050 years |
|---|---|
| Layout | 3+1 |
| EPC | A - Extremely economical |
| Land space | 753 m² |
| Condition | Very good |
|---|---|
| Listing ID | 1007466 |
| Usable area | 200 m² |
| Price per unit | €4,125 / m2 |
What does this listing have to offer?
| Balcony | |
| MHD 1 minute on foot |
| Parking | |
| Terrace |
What you will find nearby
Still looking for the right one?
Set up a watchdog. You will receive a summary of your customized offers 1 time a day by email. With the Premium profile, you have 5 watchdogs at your fingertips and when something comes up, they notify you immediately.



























