House for sale 5+1 • 137 m² without real estate, Brandenburg
This well-maintained terraced mid-house, built in 2002, offers approximately 137 m² of living space spread over three floors – providing generous room for the entire family. Five rooms are intelligently distributed over the ground floor, the upper floor, and a fully developed attic floor.
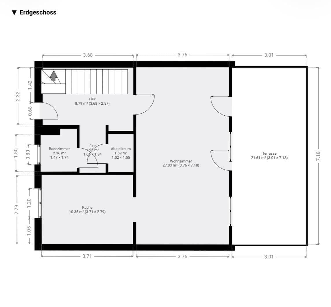
On the ground floor, you are greeted by a bright living and dining area with direct access to a southwest-facing terrace. The separate kitchen is fully equipped and included in the purchase price. A bathroom with a shower, a practical storage room, and a hallway with an inviting wooden staircase complete the ground floor.
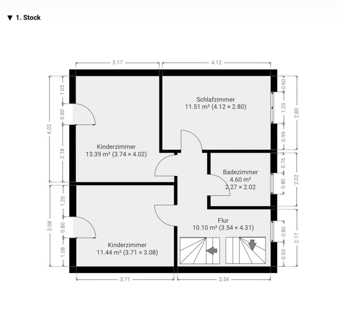
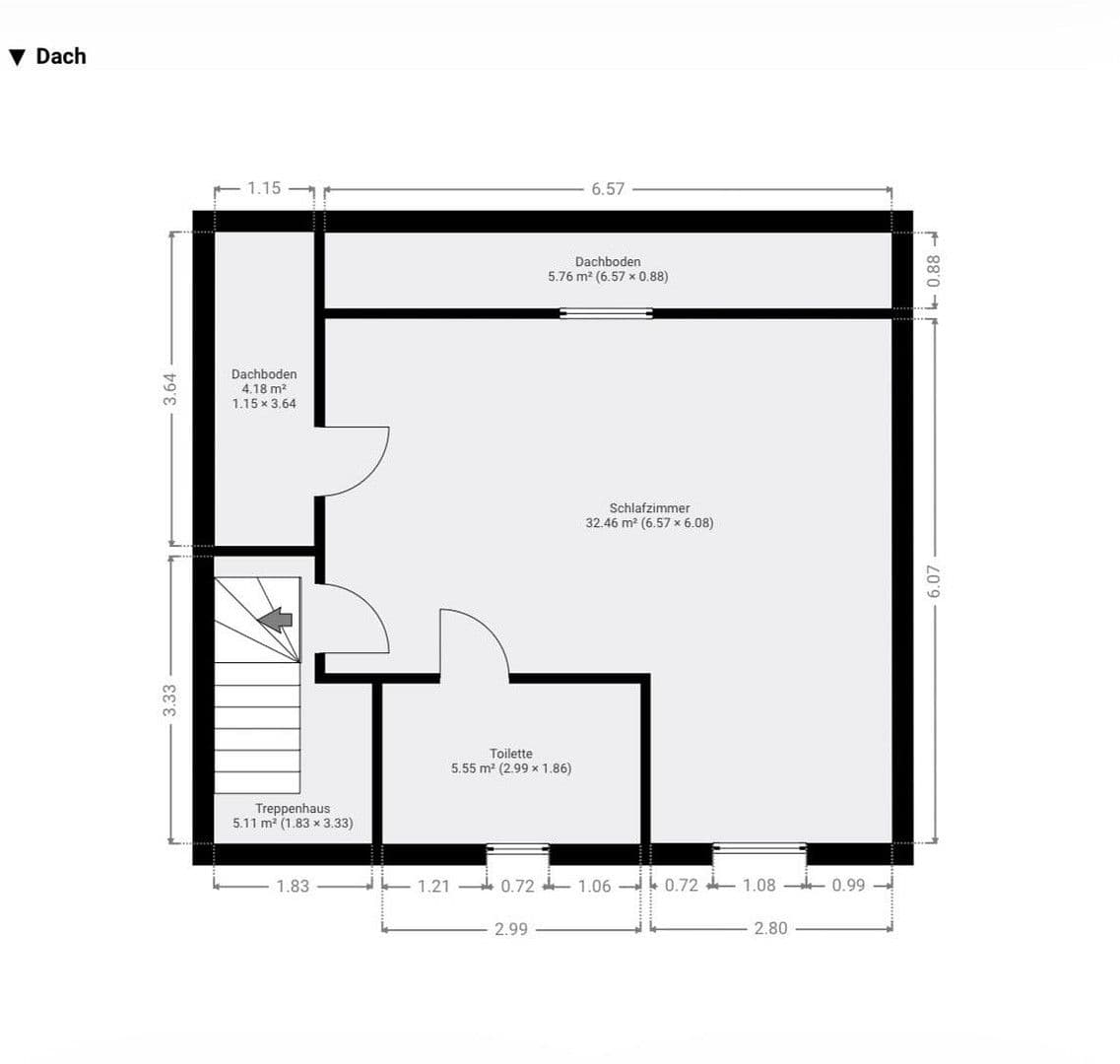
The upper floor features three rooms that are ideal for use as a master bedroom and children’s rooms, as well as a bathroom with a bathtub. A further wooden staircase leads you to the developed attic, which offers a spacious room that is perfect for a youth room, home office, or hobby room. A separate WC and an additional storage room round off the available space.
The highlight of the house is the lovingly designed garden with a wooden terrace, lawn area, and a pool – perfect for relaxing summer days. Its southwest orientation ensures sunshine well into the evening.
The property also includes a garage with an electric sectional door and a carport, so two vehicles can be conveniently housed.
The property is available immediately and is offered without commission.
The house is located in a quiet residential street in Ludwigsfelde, a growing town with around 25,000 inhabitants in the Teltow-Fläming district, south of Berlin.
The neighborhood is characterized by single-family homes and terraced houses, making it a family-friendly environment with short distances to amenities. Shopping opportunities are within walking distance: a REWE supermarket can be reached in about a ten-minute walk. In the immediate vicinity, there is also a daycare center, and a new primary school is currently under construction in the area – a clear sign of the neighborhood’s growing family-friendliness.
Transportation is a major advantage of this location. With the regional train, you can reach Berlin Airport in only about 10 minutes. Using the nearby on-ramps to the A10 motorway (Berliner Ring) and the B101 federal highway, you can quickly get to either Berlin or Potsdam. The inner-city bus network is also well developed.
Ludwigsfelde itself offers a complete infrastructure with several day care centers, schools of all levels, a music and art school, doctors, pharmacies, and a diverse range of clubs. At the same time, the town benefits as a regional growth center from a strong job market, especially in the areas of automotive, logistics, and crafts. Those who want to live in the Berlin metropolitan area without sacrificing urban infrastructure will find this location ideal.
The house is in well-maintained condition and has been modernized in several areas since its construction.
Air conditioning has been retrofitted in the sleeping areas to ensure comfortable temperatures even on hot summer days. Some of the floors have been renewed – modern laminate is found in the living areas, while high-quality tiled flooring is in the kitchen, bathrooms, and hallway. The windows are uniformly double-glazed with plastic frames. External blinds, some of which are electrically operated, provide sun and privacy protection.
The open wooden staircase made of light natural wood connects the three floors and gives the house a warm, welcoming character.
The ground floor features a bathroom with a level-entry shower, the upper floor has a bathroom with a bathtub – a practical arrangement for family life. The attic includes an additional WC.
The fitted kitchen with wooden fronts, an oven, a ceramic cooktop, a sink, and ample storage space is included in the purchase price.
The outdoor area has been redesigned: the wooden terrace with its fixed installed pool forms the heart of the garden.
The garage is equipped with an electric sectional door, and the covered carport offers an additional parking space.
Heating is provided by a natural gas system. The energy performance certificate shows a final energy consumption of 136.32 kWh/(m²·a) with an energy efficiency rating of E.
Property characteristics
| Age | Over 5050 years |
|---|---|
| Condition | Good |
| Listing ID | 1007361 |
| Usable area | 137 m² |
| Total floors | 3 |
| Available from | 31/03/2026 |
|---|---|
| Layout | 5+1 |
| EPC | E - Wasteful |
| Land space | 156 m² |
| Price per unit | €3,066 / m2 |
What does this listing have to offer?
| Garage | |
| MHD 1 minute on foot |
| Parking | |
| Terrace |
What you will find nearby
Still looking for the right one?
Set up a watchdog. You will receive a summary of your customized offers 1 time a day by email. With the Premium profile, you have 5 watchdogs at your fingertips and when something comes up, they notify you immediately.

















