
Office to rent • 75 m² without real estateHöchster Straße 18, , Hesse
For rent is a bright and versatile commercial space located on the attic floor of a well-maintained building in the central part of Groß-Umstadt.
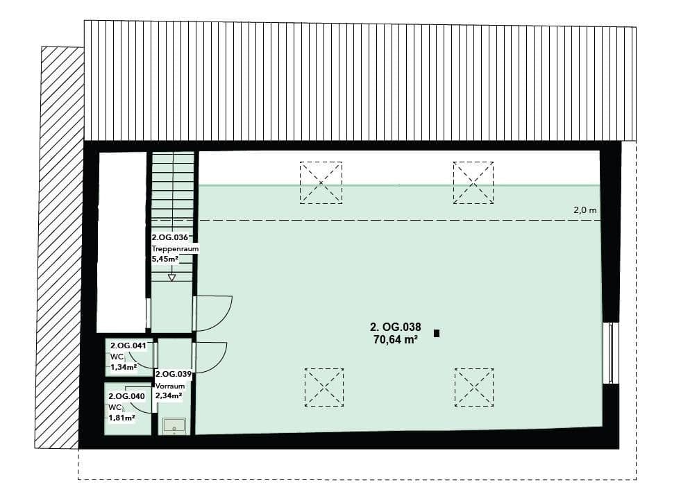
The unit offers approximately 75 m² of open space, making it ideal for various commercial uses such as an office, coaching or consultancy rooms, a practice, a studio, or classrooms.
Thanks to several skylights and a large floor-to-ceiling window, the space enjoys a very bright and pleasant working atmosphere. The open layout allows for flexible use of the area.
The building’s structure and windows also provide excellent conditions for more intensive uses, such as lessons or musical applications.
A particular advantage is the available storage area in the sloping ceilings, which is perfect for use as storage, an archive, or an additional storage area.
Features
• Approximately 75 m² of commercial space
• Large open area
• 4 skylights
• Large floor-to-ceiling window
• Very bright rooms
• Practical storage space in the sloping ceilings
• 2 separate restrooms
• Own parking spaces at the building
• Versatile usage possibilities
The space is located on the attic floor (2nd floor) of the building.
Rental Terms
Cold rent: €750 per month
Additional costs: approximately €180
The space will be available from 01.06.2026.
Other
The commercial space is ideal for various uses such as:
• Office
• Coaching/Consultation
• Practice/Therapy
• Lessons/Training
• Musical or creative use
• Atelier/Studio
Viewings are possible by appointment.
The property is centrally located in Groß-Umstadt with excellent infrastructure. Shopping opportunities, restaurants, and other services are in the immediate vicinity.
The location is easily accessible for both customers and employees.
Property characteristics
| Age | Over 5050 years |
|---|---|
| Condition | Good |
| Listing ID | 1007282 |
| Price per unit | €10 / m2 |
| Available from | 01/06/2026 |
|---|---|
| Floor | 2. floor out of 2 |
| Land office | 75 m² |
What does this listing have to offer?
| MHD 1 minute on foot |
What you will find nearby
Still looking for the right one?
Set up a watchdog. You will receive a summary of your customized offers 1 time a day by email. With the Premium profile, you have 5 watchdogs at your fingertips and when something comes up, they notify you immediately.






