
Flat to rent 2 bedroom • 58 m² without real estateKubánské náměstí, Prague - Vršovice
Interested?
Communicate all private owners and save CZK 24,100 on commissions.
Pronájem bytu 2+1, 58 m², Vršovice – klidná lokalita, skvělá dostupnost, ihned k nastěhování
Nabízíme k pronájmu světlý a prakticky řešený byt o dispozici 2+1 a celkové ploše cca 58 m², situovaný ve 3. patře udržovaného domu s výtahem v oblíbené lokalitě Vršovic, v bezprostřední blízkosti zastávky Kubánské náměstí. I přes blízkost tramvajové dopravy je byt příjemně klidný.
Byt prošel částečnou rekonstrukcí v roce 2023 (nové WC, rozvody elektřiny a vody, kuchyňská linka, podlahy v chodbě, kuchyni, WC a komoře, nová výmalba) a nabízí komfortní zázemí pro jednotlivce i pár. Je částečně vybavený – k dispozici je kuchyň s elektrickou troubou, indukční varnou deskou a základním kuchyňským náčiním (rychlovarná konvice, nádobí, příbory apod.), dále se v bytě nachází několik praktických skříní. Po dohodě je možné dodat také pračku.
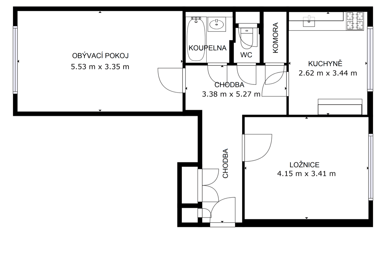
Dispozici bytu tvoří vstupní chodba s vestavěnou skříní, koupelna s vanou, samostatné WC, technická místnost (komora), kuchyně (9 m²) a dva neprůchozí pokoje (14 m² a 18,5 m²).
Vytápění i ohřev vody jsou řešeny dálkově.
Velkou výhodou je nejen výborná dopravní dostupnost (tramvaj, autobus, metro), ale i kompletní občanská vybavenost v okolí. V docházkové vzdálenosti se nachází nákupní centrum Eden, Fakultní nemocnice Královské Vinohrady, školy, školky, různá sportoviště v areálu Slavia (bazén, atletický stadion,...), stejně jako množství kaváren, restaurací a kulturních podniků, které dávají Vršovicím jejich jedinečnou atmosféru.
Parkování je možné přímo před domem či v okolních ulicích v rámci parkovacích zón (s parkovací kartou).
Byt je k dispozici ihned. Preferován je pronájem v délce cca 2–3 roky, konkrétní podmínky je však možné nastavit individuálně dle dohody.
V případě zájmu o více informací nebo sjednání prohlídky nás neváhejte kontaktovat skrz platformu Bezrealitky.
Property characteristics
| Available from | 31/03/2026 |
|---|---|
| Building construction | Mixed |
| Fully furnished | Partly |
| Heating | Central |
| Location | Busy area |
| Price per unit | CZK 416 / m2 |
| Condition | Very good |
|---|---|
| Layout | 2 bedroom |
| Floor | 4. floor out of 6 |
| Listing ID | 1007253 |
| Usable area | 58 m² |
What does this listing have to offer?
| Lift |
What you will find nearby
Interested?
Communicate all private owners and save CZK 24,100 on commissions.
Still looking for the right one?
Set up a watchdog. You will receive a summary of your customized offers 1 time a day by email. With the Premium profile, you have 5 watchdogs at your fingertips and when something comes up, they notify you immediately.














