Plot for sale • 1000 m² without real estate, Lower Saxony
, Lower SaxonyPublic transport 8 minutes of walking- Direct contact: Dieter Büge 01728118000
- For private buyers, commission-free! For commercial buyers—such as those planning to build a multi-family home (with initial rental applicants already available)—a fee of 3% plus 19% VAT applies. Your building plot is located in an exclusive new development area in a unique top-notch lakeside location!
- These attractive plots (e.g., house number 21) can be purchased INCLUDING a city villa as a build-out house – see https://www.allkauf-ausbauhaus.de/de/haeuser/hausserie/city-villa/city-villa-4 – for a total starting at EUR 595,000. The inclusive services for this city villa (price starting at EUR 355,999 as a build-out house) with 250 m² include: architectural services, a construction security package, a heating system and electricity package, triple-glazed windows with aluminum roller shutters, an air-to-water heat pump, a solid wood staircase, flooring and wallpaper, an airtightness test, a clear room height of 2.75 m, an insulation and cladding package, building services including piping, a controlled supply and exhaust ventilation system with heat recovery, sanitary fixtures, interior doors, door frames and tiling, and electrical outlets!
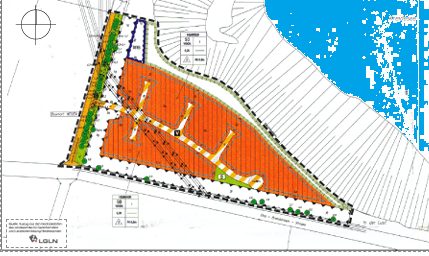
Only a few plots for single-family homes, semi-detached houses, and multi-family houses are available. The arguably most exclusive new development area in Hemmoor with a lake view is only a few minutes by car or bike from the center of Hemmoor (Cuxhaven district).
Secure your prime piece today, as there will be no further designated or approved new construction area with a lake view! The number of plots is limited to 18.
9 available plots for private home construction (see WA 1): from 839 to 1,990 m². Suitable for single and semi-detached houses, one-story (+ loft) constructions up to a front height of 8.50 m.
Plots for single- and multi-family houses (WA2, WA3) start at 1,000 m². Gable heights are 10 m (WA2) and 11.50 m (WA3) with two or three full floors. Floor space index (GFZ): 0.4.
Soon, experience the privilege and magic of a breathtaking panoramic view over the crystal-clear Kreidesee, which you can enjoy as a discerning owner of a luxurious property or as a tenant of an exclusive condominium in a prime location!
Build your dream home in Bauhaus style, a city villa, a semi-detached house, or, as a developer or investor, construct your multi-unit building on a generously sized plot from 810 to 1,990 m²—designed to your specifications!
The lakeside building plots in the first row are permitted for single, two-story, and semi-detached houses with 1 full floor plus 1 loft with a building height up to 8.50 m, and the single- and multi-family house plots in the second row may be built with 2-3 floors up to a height of 10 m or 11.50 m respectively.
If you, as a private or commercial plot buyer, are looking for a location in a central and tranquil top-notch lakeside setting, you should arrange a viewing appointment as soon as possible! Only a few plots are available! Note: No further building plots in this lakeside location will be approved.
The contact person for tenants, as well as private and commercial buyers, is Dieter Büge. Telephone availability is daily (including Sat./Sun.) from 9:30 to 20:00! Phone: 01728118000 or info@win-marketing.de; Internet: www.wain-marketing.de. Sole distributor/contact: Dieter Büge – Real Estate Agent & Appraiser
WIN-MARKETING, owned by DIETER BÜGE – EXCLUSIVE PLOT AND REAL ESTATE MARKETING SINCE 1992!
We look forward to accompanying you from the very start in your search for a building plot, whether you are buying a house or apartment or renting an apartment, as you bring your project to life.
The Kreidesee is located in Lower Saxony, in the Cuxhaven district. The lake is situated in the western part of the town Hemmoor-Warstade. Discover Hemmoor – an idyllic oasis on the western bank of the Oste in the picturesque Cuxhaven district, Lower Saxony! This charming town, surrounded by unspoiled nature, not only offers a high quality of life but also the perfect location for your new home.
Just a stone’s throw from the popular Kreidesee awaits a plot of approximately 1,000 m² with a unique panoramic view over the lake, ideal for nature lovers and outdoor enthusiasts alike. The Kreidesee is not only a popular diving spot but also a place of relaxation and rejuvenation—here you can unwind and enjoy the beauty of nature.
With about 8,700 inhabitants, Hemmoor offers a warm community and a pleasant living environment. The town is strategically located between Stade and the district town of Cuxhaven, making it the perfect starting point for excursions in the region.
The center of Hemmoor, just about 3,000 m away, offers a wide variety of shopping opportunities. In the immediate vicinity, you'll find doctors, bus stops, a kindergarten, and various schools. Everything you need for everyday life is conveniently and quickly accessible.
The connection to the B73 allows you quick access to the cities of Cuxhaven (approximately 45 km), Stade (approximately 30 km), Bremerhaven (approximately 55 km), and Hamburg (approximately 83 km). Hemmoor’s train station is only a 15-minute bus or bicycle ride away and offers excellent public transportation connections.
Take the opportunity to become part of this charming small town and realize your dream of owning a home in Hemmoor—a place that unites quality of life, nature, and community!
Information in accordance with § 5 TMG
WIN-MARKETING, owned by Dieter Büge
Business Division DBI – DIETER BÜGE REAL ESTATE
Licensed according to § 34c GewO.
Address:
Süderende 12
D – 21782 Bülkau
Contact D/A/CH:
info(at)win-marketing.de
https://www.win-marketing.de
Phone: 0172/8118000
VAT identification number according to §27a of the VAT Act: DE204939419.
Dispute Resolution:
The European Commission provides a platform for online dispute resolution (ODR): https://ec.europa.eu/consumers/odr.
You can find our email address above in the imprint.
We are not willing or obliged to participate in dispute resolution proceedings before a consumer arbitration board.
Liability for Content:
As a service provider, we are responsible for our own content on these pages in accordance with § 7(1) TMG under general laws. According to §§ 8 to 10 TMG, however, we are not obligated as a service provider to monitor transmitted or stored third-party information or to investigate circumstances that indicate illegal activity.
Obligations to remove or block the use of information under general laws remain unaffected. However, liability in this regard is only possible from the moment we become aware of a specific infringement. Upon becoming aware of infringements, we will remove such content immediately.
Liability for Links:
Our offer contains links to external websites of third parties, over whose content we have no influence. Therefore, we cannot assume any liability for external content. The respective provider or operator of the linked pages is always responsible for their content. The linked pages were checked for possible legal violations at the time of linking. No illegal content was recognizable at that time.
A permanent content control of the linked pages is not reasonable without concrete evidence of a violation. Upon becoming aware of legal violations, we will immediately remove such links.
Copyright:
The content and works created by the site operators on these pages are subject to German copyright law. Duplication, processing, distribution, and any type of exploitation beyond the limits of copyright require the written consent of the respective author or creator. Downloads and copies of this page are only permitted for private, non-commercial use.
Insofar as the content on this page was not created by the operator, the copyrights of third parties are respected. Third-party content is particularly marked as such. Should you nonetheless become aware of a copyright infringement, please inform us accordingly. Upon becoming aware of such violations, we will remove the relevant content immediately.
Property characteristics
| Available from | 05/04/2026 |
|---|---|
| Land space | 1,000 m² |
| Listing ID | 1007078 |
|---|---|
| Price per unit | €170 / m2 |
What does this listing have to offer?
| MHD 8 minutes on foot |
What you will find nearby
Still looking for the right one?
Set up a watchdog. You will receive a summary of your customized offers 1 time a day by email. With the Premium profile, you have 5 watchdogs at your fingertips and when something comes up, they notify you immediately.
























