Flat for sale 5+1 • 149 m² without real estateAm Gemeindeweiher 9, , Bavaria
This spacious 5-room apartment is located on the 2nd floor (attic) of a three-family house, which will soon be energetically refurbished. The apartment itself is bright, spacious, and family-friendly, and it impresses with an outstanding price-performance ratio.
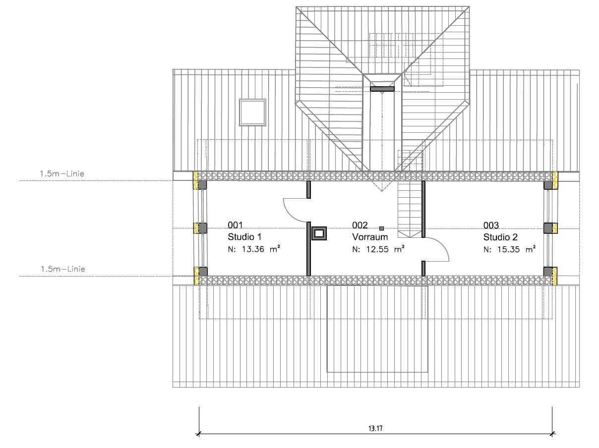
On the top floor, you will have the following rooms available for flexible use:
- Living/Dining approximately 32.5 m² with optional access to the west balcony (approximately 16 m²)
- Bedroom approximately 22.1 m²
- Children's room approximately 15.4 m²
- Bathroom with daylight approximately 7.7 m²
- WC approximately 2.2 m²
- Kitchen including fitted kitchen and high-quality appliances (Siemens, Liebherr) approximately 11.6 m²
- Storage room 1.9 m²
- Hallway approximately 13.7 m² with access to the developed attic
The developed attic provides a real bonus in space (approximately 41.8 m²), comprising two additional, tastefully designed rooms – ideal as an office, children’s room, or hobby area.
The apartment truly impresses with its outstanding price-performance ratio, allowing you to move in immediately. Optionally, you have the possibility to redesign walls and floors on your own.
Note: All area specifications are according to DIN 277.
The apartment is located amidst well-kept residential buildings in Herzogenaurach in the Niederndorf district.
Shops for everyday needs are very easily accessible.
A bakery, a butcher, several doctors, and a pharmacy can be reached on foot.
Two bus stops (heading towards Herzogenaurach and Erlangen) are reachable within a few minutes on foot.
About 2 km away is the city center of Herzogenaurach, and approximately 8 km will take you to the center of Erlangen. Nürnberg and Fürth can be reached within about 15-20 minutes by car.
Global companies such as Adidas, Puma, and Schaeffler are also in the immediate vicinity and can be conveniently reached by bicycle.
The following, partially energy-related refurbishments will still be carried out by the seller and are already included in the stated purchase price:
- Energy-efficient facade insulation including new facade plaster and exterior window sills
- Thermally insulating uPVC windows with triple glazing and new interior window sills
- External roller shutters with pivoting cord reels
- Apartment entrance door
- Main entrance door
- Gutters and downpipes
- 2 outdoor parking spaces
- Outdoor balcony in the size of 5.6 x 2.5 m (as opposed to the floor plan)
Apartment equipment:
- Includes fitted kitchen with high-quality appliances (Siemens, Liebherr)
- Includes a fireplace stove
- Attractive bathroom with bathtub, shower, and skylight, as well as connection options for a washing machine and dryer
- Additional storage room
- Interior staircase leading to the spacious attic
Current condition of the apartment:
- Electrical installation complies with the currently valid VDE regulations
- Pipework is in accordance with the technical standard of the year of construction (1989)
- WOLF oil central heating, year of manufacture: 2015 (According to the Building Energy Act [GEG 2024], this condensing boiler may still be operated with fossil fuels until December 31, 2044, meaning at least another 19 years)
Götz Immobilienentwicklung GmbH
Registered office: Ringstraße 31c, 91341 Röttenbach
Commercial Register: District Court of Fürth, HRB 21673
Tax No.: 216/127/60001
Property characteristics
| Age | Over 5050 years |
|---|---|
| Layout | 5+1 |
| Listing ID | 1007044 |
| Price per unit | €2,805 / m2 |
| Condition | Good |
|---|---|
| Floor | 2. floor out of 1 |
| Usable area | 149 m² |
What does this listing have to offer?
| Balcony | |
| MHD 2 minutes on foot |
| Parking |
What you will find nearby
Still looking for the right one?
Set up a watchdog. You will receive a summary of your customized offers 1 time a day by email. With the Premium profile, you have 5 watchdogs at your fingertips and when something comes up, they notify you immediately.










