Flat for sale 3+1 • 103 m² without real estateObinger Str. 1A Eggstätt Eggstätt Bayern 83125
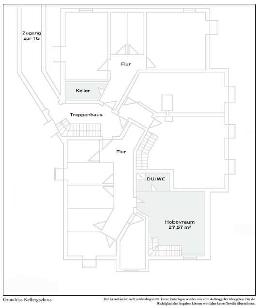
This charming apartment is located in an exceptionally well-maintained multi-family home in a quiet setting. The exclusive impression continues inside the eight-unit building with an underground garage. On the ground floor, the apartment comprises two bedrooms, a bathroom, a guest toilet, a hallway and corridor as well as a separate kitchen and the spacious living-dining area. To the south and west, the private garden area and terrace envelop the rooms. White mullioned windows, white interior doors, and the apartment’s own white lacquered wooden staircase to the lower level emphasize the friendly, light-filled character of the apartment. The developed area in the basement of approximately 28 m² is included in the living area measurement with 14 m². This room has a clear height of 2.36 m and a window with a slight pitch, measuring about 1.34 m² in the masonry. Large French doors open from the living area to a garden designed like a park. An outdoor parking space and two underground parking spaces (each valued at 25,000 EUR) are already included in the purchase price. The apartment is sold as a complete package including the parking spaces.
Five kilometers northwest of Lake Chiemsee, nestled among rolling hills and numerous lakes, lies the town of Eggstätt. The Eggstätter-Hemhof lake district is Eggstätt’s pride, as it belongs to Bavaria’s oldest nature reserve (1939). Over 100 years ago, the first “summer residents” discovered the charm of this place for themselves. Dreamlike hiking and cycling trails wind through an enchanting and unique lake landscape. A multitude of cultural and entertainment offerings in and around Eggstätt invite you: at the Guest House or other venues, a varied program takes place throughout the year—from the Hoagascht to local heritage and traditional evenings, from chamber concerts to street concerts, from folk theatre to forest festivals. For active leisure, Lake Chiemsee and the Eggstätter lake district offer optimal swimming and sailing opportunities. Hiking, climbing, cycling, and all forms of winter sports are available in the nearby Chiemgau Alps. There are also options nearby for golf enthusiasts and equestrians. Bad Endorf, at 8 km away, Prien am Chiemsee at 10 km, and Rosenheim and Traunstein, each 23 km away, are all in the vicinity. In Bad Endorf, you will find train connections both toward Munich and toward Salzburg. Furthermore, the town offers shopping facilities, kindergartens, and a primary school. All secondary schools can be found in Prien am Chiemsee, Traunstein, and Rosenheim. Salzburg Airport can be reached in approximately 40 minutes, and Munich Airport in about 90 minutes. Eggstätt is a charming town with Bavarian allure and genuine hospitality.
In recent years, the following renovations have been carried out in the apartment:
• Oak parquet flooring in the living room and hallway.
• A new high-quality fitted kitchen (included in the purchase price).
Property characteristics
| Age | Over 5050 years |
|---|---|
| Layout | 3+1 |
| Usable area | 103 m² |
| Condition | Good |
|---|---|
| Listing ID | 1007029 |
| Price per unit | €5,388 / m2 |
What does this listing have to offer?
| Basement | |
| Parking | |
| Terrace |
| Garage | |
| MHD 2 minutes on foot |
What you will find nearby
Still looking for the right one?
Set up a watchdog. You will receive a summary of your customized offers 1 time a day by email. With the Premium profile, you have 5 watchdogs at your fingertips and when something comes up, they notify you immediately.












