
Flat for sale 2 bedroom • 75 m² without real estateBremen Mitte Bremen 28203
Apartment – Completely Reimagined in 2026
The approximately 75 m² have been comprehensively renovated:
• New electrical systems
• New, modern switch series
• New flooring
• New walls
• New bathroom
• Open, exceptionally bright layout
• Small utility room within the apartment
• Small home office nook behind the kitchen
• Separate basement/storage room
The result: Move in, bring your own furniture, and feel right at home.
No deferred maintenance. No renovation stress.
The apartment is located on the 2nd floor of a well-maintained building constructed in 1982 and impresses with its open layout and plenty of sunlight – both in the morning and in the evening.
My tip for your individual kitchen design: A modern kitchen with a cooking or work island – perfect for sociable evenings.
(Example images have been visualized with AI assistance.)
The small home office nook behind the kitchen creates a cleverly separated work area without sacrificing living space.
The Building & the Homeowners’ Association (WEG):
• Very well-maintained multi-family house
• Built in 1982
• Excellent, functional community of owners
• Central heating dating from 2019
• Economically sound
• No major renovations planned
A True Original:
The homeowners’ association boasts a huge garden area for communal use – right in the heart of the Bremer Viertel – almost one-of-a-kind.
Space for:
• Children to play
• Summer barbecues
• Relaxing after work
• Meeting with friends
• A green retreat in an urban setting
Service charge (including heating according to the 2025 budget)
Total: €327.00 per month
Of that:
Approximately €300.00 are allocatable
Approximately €27.00 are non-allocatable
Heating costs are already included.
Also ideal for renting out – top location with strong rental dynamics
The apartment is excellently suited as a capital investment in an absolutely “best neighborhood” location.
Freshly renovated 2-room apartments like this one are currently achieving very good price per square meter in the Ostertor / Steintor area.
Financing Example
Purchase price: €329,000
100% financing
3.8% interest rate
1.0% repayment
€329,000 × 4.8% / 12 = approx. €1,316 monthly rate
The Location – As Urban as It Gets
In the morning: head down to grab fresh organic produce from the organic supermarket.
Have a cappuccino at the Harbour Café across the street.
In the evening, quickly pick up your favorite magazine at the in-house kiosk – all right at your doorstep.
Here you live in Ostertor/Steintor – an absolute prime location.
Restaurants, bars, culture, theater, tram – all within walking distance.
And yet: inside the building, everything is pleasantly quiet.
Key Facts at a Glance
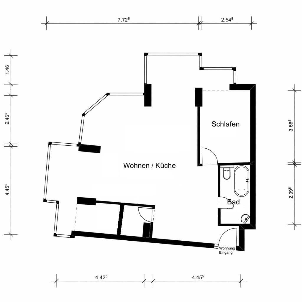
• 75 m² living area
• 2 rooms
• 2nd floor
• Built in 1982
• Completely renovated in 2026
• High-quality Schüco windows from 2009
• Small home office nook
• Utility room in the apartment
• Basement/storage room
• Large communal garden area
• Central heating from 2019
• Service charge including heating: €327
• No deferred maintenance
• Ready for immediate occupancy
Commission-free by private sale.
No broker fee.
Broker inquiries are expressly not desired.
Property characteristics
| Age | Over 5050 years |
|---|---|
| Condition | After reconstruction |
| Floor | 2. floor |
| EPC | E - Wasteful |
| Price per unit | €3,987 / m2 |
| Available from | 30/03/2026 |
|---|---|
| Layout | 2 bedroom |
| Listing ID | 1007024 |
| Usable area | 75 m² |
What does this listing have to offer?
| Basement |
| MHD 2 minutes on foot |
What you will find nearby
Still looking for the right one?
Set up a watchdog. You will receive a summary of your customized offers 1 time a day by email. With the Premium profile, you have 5 watchdogs at your fingertips and when something comes up, they notify you immediately.






























