House to rent 5+1 • 104 m² without real estateWeilheim in Oberbayern Weilheim in Oberbayern Bayern 82362
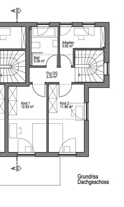
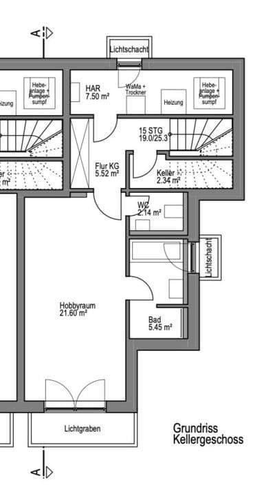
This modern, light-filled semi-detached house with an attractive floor plan is situated on a sunny plot in a quiet and sought-after residential area in eastern Weilheim. The living area features a generous window front that offers an unobstructed view of the sunny, south-facing garden with mountain views. On the upper floor, you will find three rooms and a bathroom equipped with both a bathtub and a shower. The basement boasts a converted hobby room with a large window and a spacious bathroom complete with a shower and WC. A carport and a parking space complete the property.
Situated in a quiet, desirable, and centrally located residential area in Weilheim, the property offers quick access to Munich, Lake Starnberg, and the Upper Bavarian Mountains. The newly built house is outfitted throughout with high-quality, tasteful finishes.
Property characteristics
| Age | Over 5050 years |
|---|---|
| Condition | Very good |
| Listing ID | 1006907 |
| Usable area | 104 m² |
| Total floors | 3 |
| Available from | 01/08/2026 |
|---|---|
| Layout | 5+1 |
| EPC | A - Extremely economical |
| Land space | 183 m² |
| Price per unit | €22 / m2 |
What does this listing have to offer?
| Basement | |
| MHD 2 minutes on foot |
| Parking | |
| Terrace |
What you will find nearby
Still looking for the right one?
Set up a watchdog. You will receive a summary of your customized offers 1 time a day by email. With the Premium profile, you have 5 watchdogs at your fingertips and when something comes up, they notify you immediately.






