Flat for sale 4+1 • 113 m² without real estateKassel Kassel Hessen 34128
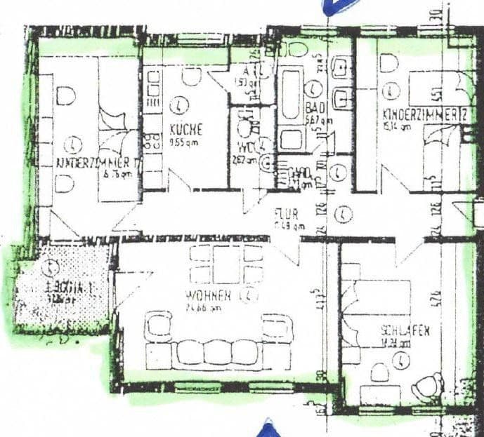
Kassel Kassel Hessen 34128Public transport 2 minutes of walkingThis is a very appealing, almost new, well-equipped, and generously laid-out condominium located on a quiet side street. It is protected by its rear location and nestled in greenery, making it private and secluded. The condominium is situated on the 1st floor and the living area is divided into a living room with access to the balcony, a bedroom, a children’s room, a children’s/office room (also with access to the balcony), a modern daylight bathroom (2011) with a bathtub, shower, toilet, and bidet, a modern guest toilet (2011, internal), a kitchen with a fitted kitchen (2022) and a pantry, as well as a hallway.
A bakery (about 50 meters away), a pharmacy, various doctors, and shopping facilities can be reached within a few minutes on foot. The Harleshausen Mitte bus stop is also nearby. There is an on-site daycare, and the “Am Krauthof” elementary school is 450 meters away. In front of the house, there are several (public) parking spaces available free of charge. The park “Am Kubergraben,” which features an adventure playground, begins directly behind the building.
Kassel-Harleshausen is located in the far northwest of the city area and is surrounded by greenery, interspersed with fields and meadows, making it one of Kassel’s most popular and attractive neighborhoods with a very high quality of life.
Shopping options are available locally. With excellent public transport connections or by car, the city center is easily accessible, as is the A 44 motorway. There are plenty of opportunities for sporty or nature-related leisure activities.
The apartment is modern and mostly equipped as new. Important features and chronological investments in the condominium include:
• 2011: Complete and high-quality renovation of the daylight bathroom and guest toilet, including wall and floor tiles as well as electric underfloor heating.
• 2014: New apartment entrance door with an aluminum insert, profile cylinder lock with triple locking, and shell seals.
• 2020: Installation of oak real wood parquet throughout the apartment (except in the kitchen and bathroom) and the laying of high-quality vinyl in the kitchen.
• 2020: New white interior doors and repainting of door frames and radiators.
• 2020: Electrical work – installation of a residual-current device and replacement/expansion of switches and outlets.
• 2022: New modern fitted kitchen (Burger) with lacquered fronts on the reverse side, including all electrical appliances (all Siemens and an extractor hood from Berbel).
• 2025: Apartment renovated (all rooms except the full bathroom were newly papered and painted).
Room sizes:
• Living room: 24.60 m²
• Bedroom: 18.28 m²
• Children’s/office room: 16.76 m²
• Children’s room: 15.14 m²
• Kitchen with fitted kitchen: 9.63 m²
• Pantry: 1.93 m²
• Daylight bathroom with underfloor heating: 6.67 m²
• Guest toilet: 2.62 m²
• Hallway/intercom area: 11.49 m²
• Cloakroom: 2.23 m²
• Loggia: 7.16 m²
Property characteristics
| Age | Over 5050 years |
|---|---|
| Condition | After reconstruction |
| Floor | 1. floor out of 3 |
| EPC | C - Economical |
| Price per unit | €2,912 / m2 |
| Available from | 01/04/2026 |
|---|---|
| Layout | 4+1 |
| Listing ID | 1006742 |
| Usable area | 113 m² |
What does this listing have to offer?
| Balcony |
| MHD 2 minutes on foot |
What you will find nearby
Still looking for the right one?
Set up a watchdog. You will receive a summary of your customized offers 1 time a day by email. With the Premium profile, you have 5 watchdogs at your fingertips and when something comes up, they notify you immediately.
















