House for sale 5+1 • 134 m² without real estate, Hesse
, HessePublic transport 3 minutes of walkingThis property is ideally suited for couples, self-employed individuals, or independent-minded people who appreciate urban living in a historic setting—and do not require a large garden or the conveniences of a new build.
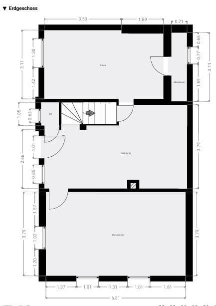
The half-timbered semi-detached house (built before 1900) offers about 134 m² of living space with five rooms and a spacious living kitchen with fitted appliances as the central meeting point.
The open dining area creates a warm living atmosphere. A separate, generous living room completes the ground floor.
On the upper floor, there are three bedrooms and a bathroom with a bathtub.
Creating an additional room is entirely possible, for example for a home office or similar purpose.
Typical of an old town are a steep staircase and partially uneven floors—structural peculiarities that contribute to the charm of historic houses. The high natural sand-stone cellar offers practical storage space. The attic provides ample storage and additional potential.
In the outdoor area there is a courtyard terrace; however, a garden or parking space at the house is not available. The location compensates with short distances and an established infrastructure characteristic of a district town.
Technically, the house is solidly constructed:
Gas heating from 2018, insulated windows, and no heritage protection.
This property is particularly suitable for buyers who are deliberately seeking a house with character in a central urban location.
If this sounds like what you’re looking for, please feel free to contact us. We are happy to show you around this property and answer all your questions.
Dietzenbach, a district town in the southern Rhein-Main area, combines urban infrastructure with plenty of green spaces and short distances to Frankfurt.
The old town forms the historic center and impresses with its developed charm, quiet residential streets, and a pleasant sense of community.
Shops, cafés, schools, kindergartens, and doctors are conveniently within walking distance.
Thanks to the S-Bahn connection and the quick access to motorways A3 and A661, Frankfurt’s city center can be reached in a short time.
Thus, the location combines historical atmosphere, good accessibility, and a high quality of life.
All information is based on the documents available.
Even private sellers are subject to the GDPR. By contacting us through this portal, you are transmitting personal data. This data is processed solely for handling your inquiry and conducting the property sale in accordance with Art. 6(1)(b) of the GDPR. It will only be passed on as far as necessary for contract processing. Deletion will occur once the purpose has been fulfilled, provided there are no legal retention obligations.
Property characteristics
| Age | Over 5050 years |
|---|---|
| Condition | Good |
| Listing ID | 1006003 |
| Usable area | 134 m² |
| Total floors | 4 |
| Available from | 04/04/2026 |
|---|---|
| Layout | 5+1 |
| EPC | G - Extremely uneconomical |
| Land space | 247 m² |
| Price per unit | €2,903 / m2 |
What does this listing have to offer?
| Basement | |
| Terrace |
| MHD 3 minutes on foot |
What you will find nearby
Still looking for the right one?
Set up a watchdog. You will receive a summary of your customized offers 1 time a day by email. With the Premium profile, you have 5 watchdogs at your fingertips and when something comes up, they notify you immediately.



















