
House for sale 7+1 • 190 m² without real estateDarmstadt Arheilgen Hessen 64291
Darmstadt Arheilgen Hessen 64291Public transport 1 minute of walking • GarageThis two-family house with a flat roof consists of two nearly equally sized apartments. Even in the staircase hall it is evident that this house is well lit, solidly built, and well maintained.
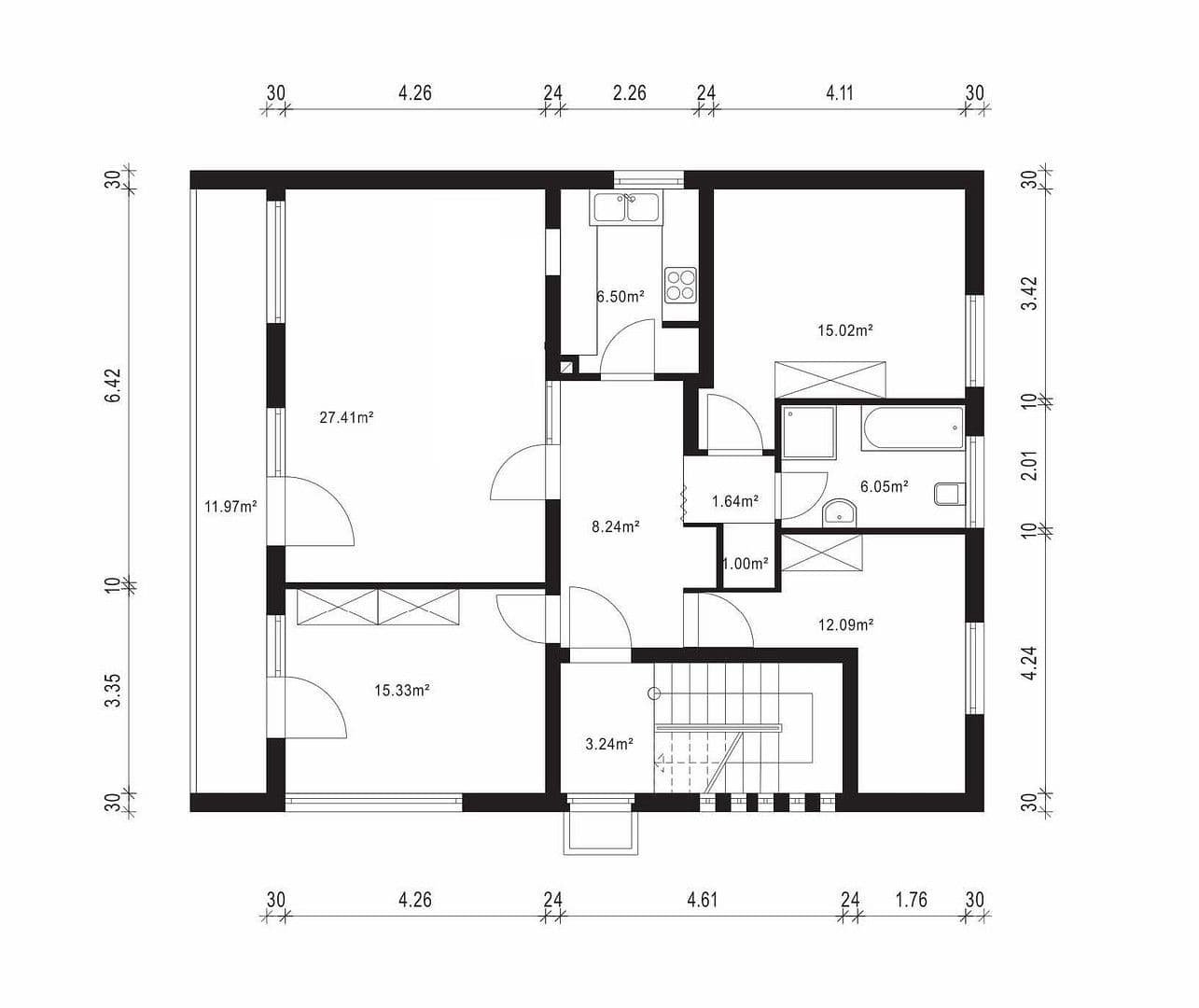
On the ground floor there is a large living/dining room with access to the terrace and a fireplace stove, which provides cozy moments and serves as an additional heat source. The living and dining area on the upper floor is smaller, which created an additional large room; both rooms have direct access to the glazed and covered balcony. The kitchens are of sufficient size and each has a serving hatch to the dining area. They are equipped with fitted kitchens that, if desired, remain in the house. In addition, there is one large and one small room on each floor. The bathroom on the ground floor features a walk-in shower and is therefore barrier-free, while the upstairs bathroom is equipped with both a bathtub and a shower.
The basement is dry, largely tiled, and partially heated. In addition to a larger room that was sometimes used as living space, there is another well-lit basement room, a small bathroom in need of renovation, a basement bar, and two storage cellars. The room for the district heating unit is used as a laundry room, and a sauna is also located there. The basement can additionally be accessed via an external staircase.
The beautifully matured garden with a small garden pond is oriented to the south. The property measures 547m² and adjoins a building plot, which is also for sale. On the neighboring plot there are two garages that also belong to the house. The land share for the garages is 62m², and the portion of the shared access road corresponds to approximately 20m².
The house is in good, age-appropriate condition.
In 1995 the roof was newly sealed. The major renovations took place in 2000: bathrooms on the ground floor and upper floor were renewed, the staircase was renovated, a fireplace stove was installed on the ground floor, and the front door was renewed. The district heating unit and water heater were replaced in 2001. In 2024 the garage roofs were renovated. In 2025 the ground floor bathroom was converted to barrier-free use (installation of a walk-in shower).
This house is located in the southern part of the Darmstadt-Arheilgen district. The tram stop, schools, kindergarten, doctors, shopping facilities, the Arheilgen city center, restaurants, sports fields, and the Merck company can all be reached on foot. Nordbahnhof, the Darmstadt-Dieburg district administration, the riding club, the public outdoor swimming lake, Bürgerpark Nord, and the hardware store are also in the immediate vicinity.
The Darmstadt city center can be easily reached by tram or by bicycle. By car there is good access to the A5 and the A661.
• Free-standing two-family house
• Solid construction
• Two full floors plus basement, flat roof
• 3-room apartment on the ground floor, terrace, barrier-free bathroom
• 4-room apartment on the upper floor, glazed balcony, full bathroom
• Additional fireplace stove on the ground floor
• Basement utility room usable as a laundry room
• Two heated, well-lit basement rooms + basement bar + 2 storage cellars
• Additional in the basement: sauna + bathroom in need of renovation
• District heating
• Additional external basement staircase
• Not rented
• Two garages on the adjoining property
• Large garden with southern orientation
• No commission for the buyer
• Adjoining building plot can be purchased additionally
The sale is commission-free for the buyer. The house is currently only in use on the upper floor and can be handed over promptly by arrangement.
All information is provided without guarantee and is based solely on information transmitted to me by the clients. I assume no liability for the completeness, accuracy, and timeliness of this information. Prior sale remains reserved.
Cornelia Krüger
Construction Financing and Real Estate
Schöneweibergasse 89
64347 Griesheim
Germany
Person responsible in accordance with § 18 (2) MStV:
Cornelia Krüger, Schöneweibergasse 89, 64347 Griesheim
Permission according to § 34c and § 34i of the Trade Regulation was granted by the District Committee of Darmstadt-Dieburg
Jägertorstraße 287
64289 Darmstadt
Permission according to § 34d was granted by the competent Chamber of Commerce and Industry
Industrie- und Handelskammer Wiesbaden
Wilhelmstraße 24-26
65183 Wiesbaden
Broker Register
The register number for §34C is: S/4 130-04
The register number for § 34d is: D-UZJT-6OCHI-70
The register number for § 34i is: D-W-115-PZZH-66
Property characteristics
| Age | Over 5050 years |
|---|---|
| Layout | 7+1 |
| EPC | G - Extremely uneconomical |
| Land space | 629 m² |
| Price per unit | €3,816 / m2 |
| Condition | Before reconstruction |
|---|---|
| Listing ID | 1005593 |
| Usable area | 190 m² |
| Total floors | 2 |
What does this listing have to offer?
| Balcony | |
| Garage | |
| Terrace |
| Basement | |
| MHD 1 minute on foot |
What you will find nearby
Still looking for the right one?
Set up a watchdog. You will receive a summary of your customized offers 1 time a day by email. With the Premium profile, you have 5 watchdogs at your fingertips and when something comes up, they notify you immediately.



































