
Flat to rent 2 bedroom • 64 m² without real estate, Baden-Württemberg
This modernized apartment impresses with its high-quality fittings and comprehensive energy renovation. Originally built in 1965, the property is currently undergoing a complete, serial renovation in 2025/2026 so that it meets today’s living and energy standards.
Note: The images shown of the apartment’s interior are AI-generated visualizations. As the apartment is still under construction, the illustrations are provided solely to demonstrate the possible spatial impression and furnishings. The apartment is rented unfurnished.
The apartment features parquet flooring and a new fitted kitchen, creating a modern and cozy living atmosphere. The west-facing balcony offers plenty of space for a seating area.
Additional comfort is provided by a modern ventilation system, a heat pump, and underfloor heating in all living areas. All roof windows are equipped with shutters or awnings, ensuring optimal sun and heat protection.
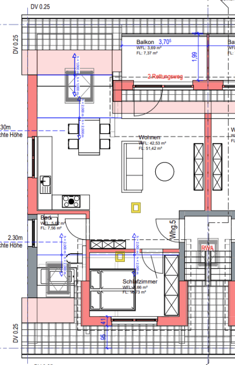
Also included with the apartment is a cellar storage room and a parking space, offering extra storage and convenience.
The apartment will be ready for occupancy in mid to late March 2026 and is ideal for tenants who value modern, energy-efficient living with high-quality fittings.
Located on the outskirts of Erdmannhausen, near a school and kindergarten in a quiet setting, the town center—with its shops, pharmacy, doctor, and town hall—is within easy walking distance and can be reached in a short time.
The living area, including the kitchen, as well as the bedroom, are fitted with high-quality oak parquet flooring, which creates a warm, modern living ambiance. The bathroom impresses with stylish tiles in an elegant beige-gray tone and features a high-quality real glass shower partition. A modern fitted kitchen with a dishwasher and premium appliances completes the attractive living concept.
Property characteristics
| Age | Over 5050 years |
|---|---|
| Condition | New-build |
| Floor | 2. floor |
| EPC | A - Extremely economical |
| Price per unit | €16 / m2 |
| Available from | 15/03/2026 |
|---|---|
| Layout | 2 bedroom |
| Listing ID | 1005175 |
| Usable area | 64 m² |
What does this listing have to offer?
| Balcony | |
| MHD 2 minutes on foot |
| Parking |
What you will find nearby

Flat to rentMörgelenstraße 2 Stuttgart Obertürkheim Baden-Württemberg 70329- 2 bedroom
- 57 m²
€870 + €128



Still looking for the right one?
Set up a watchdog. You will receive a summary of your customized offers 1 time a day by email. With the Premium profile, you have 5 watchdogs at your fingertips and when something comes up, they notify you immediately.










