Flat to rent 2 bedroom • 119 m² without real estate, Bavaria
Here is the translation:
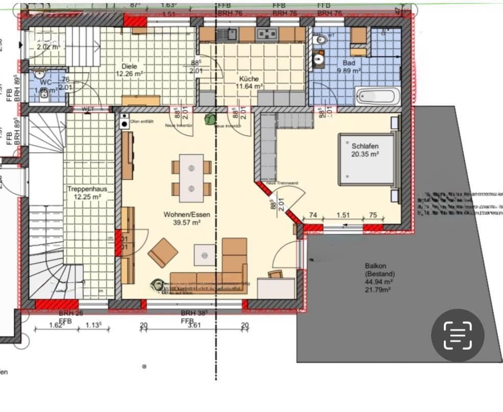
These freshly completely renovated 2-room apartment on the ground floor (situated on a slope facing south) of an EE70 building (completely renovated in 2025, built in 1975) offers first-class living comfort on approximately 119 m².
The sunny, partially covered balcony facing south (approx. 45 m², of which about 22 m² is counted as living space, accessible through more than 2 rooms) extends the living area outdoors. This outdoor area is located on a south-facing slope.
The rooms are very spacious and filled with light thanks to large windows. The apartment is ideal for singles or couples.
It is located in a three-party building.
In the basement, there is a commercial unit/practice.
On the ground floor and the upper floor, there is one rental apartment on each floor.
Floor plan:
– 1 bedroom
– 1 very spacious living/dining area
– 1 kitchen with fitted kitchen
– 1 en-suite bathroom (accessible only from the bedroom) with a level-access open shower and bathtub (newly renovated)
– 1 guest WC
– Large entrance area with a separate front door (steps)
– Possible entrance via the back yard or through the existing garage via the communal corridor
– Approximately 29 m² garage with an electric door as well as wiring for an e-charging station
– Courtyard driveway in front of the garage as an additional parking space
Warm rent including garage/fitted kitchen 1,590.00€
Centrally located on Bahnhofstraße – only about a 2-minute walk from the train station. Shops, restaurants, and nature (Rezat) are all in the immediate vicinity. Despite its proximity to the train station, the area is quiet – ideal for people seeking peace and couples.
– Underfloor heating via a heat pump
– Triple-glazed windows
– Electric shutters
– Hot water provided by an instantaneous water heater (tenant electricity)
– Locking system
– Built-in spotlights throughout the apartment
– High-quality vinyl flooring, and in the bathroom high-quality ceramic tiles
– White interior doors
– Controlled ventilation system
– Private garage directly in front of the entrance for €50 per month (with wiring for an e-charging station)
– Fitted kitchen including all appliances (except refrigerator) for €50.00 monthly.
We place great importance on responsible and reliable tenants.
Ideal for singles or couples.
Pets can be discussed.
Requirements:
Steady income, non-smoking apartment, Schufa or tenant self-disclosure.
If you are seriously interested, we look forward to your messages.
Property characteristics
| Age | Over 5050 years |
|---|---|
| Condition | After reconstruction |
| Listing ID | 1004829 |
| Price per unit | €11 / m2 |
| Available from | 24/03/2026 |
|---|---|
| Layout | 2 bedroom |
| Usable area | 119 m² |
What does this listing have to offer?
| Balcony | |
| Parking |
| Garage | |
| MHD 2 minutes on foot |
What you will find nearby
Still looking for the right one?
Set up a watchdog. You will receive a summary of your customized offers 1 time a day by email. With the Premium profile, you have 5 watchdogs at your fingertips and when something comes up, they notify you immediately.






















