Commercial property to rent • 950 m² without real estateBoschstraße 22, , Lower Saxony
This versatile multi-use commercial hall, located in a quiet area within the Winsen (Luhe) industrial zone, impresses with its functional facilities and spacious layout. The free-standing structure was built in 1996 using solid construction methods and offers ideal conditions for storage, logistics, or production purposes.
The hall is especially well-lit: large window areas on both of the longer sides provide plenty of natural daylight and create a friendly work environment. The durable warehouse floor is ideally suited for heavy machinery, storage racks, or industrial use. The ceiling height in the hall is approximately 3.60 meters.
Access at ground level is conveniently provided by two electric sectional doors, allowing for easy delivery even with large trucks.
In addition to the spacious hall area, functional ancillary rooms are available, including a break room for employees, a separate foreman’s office, and separate restroom facilities for women and men.
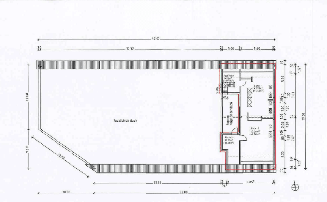
The upper floor features additional office space in a peaceful atmosphere, ideally suited for management and administration.
Furthermore, the property offers extensive storage capacity as well as sufficient parking directly on the premises, with up to nine parking spaces available.
The building is heated by an economical gas heating system with comparatively low consumption.
All in all, this is an attractive commercial property with flexible usage possibilities in a quiet yet easily accessible location.
The address, Boschstraße, 21423 Winsen (Luhe), is situated in a dedicated industrial area in the eastern part of the city and is specifically associated with a crafts and industrial environment.
• Good transport connection via Tönnhäuser Weg (the main entrance to the industrial area)
• Proximity to the A39 → quick access to Hamburg and Lüneburg
• Bus stops approximately 200–300 meters away
• A quiet location outside the city center, yet easily accessible
Suitable for numerous sectors, for example:
• Production & Manufacturing
• Carpentry & Wood Processing
• Scaffolding Construction
• Road and Civil Engineering
• Trade (Import & Export)
• Automotive Workshops
• TÜV and Testing Services
• Car Dealerships (especially used vehicles)
• Locksmithing & Metal Construction
and many other commercial uses.
Property characteristics
| Age | Over 5050 years |
|---|---|
| Land non-residential space | 950 m² |
| Price per unit | €6 / m2 |
| Listing ID | 1004637 |
|---|---|
| Land space | 1,898 m² |
What does this listing have to offer?
| Garage |
What you will find nearby
Still looking for the right one?
Set up a watchdog. You will receive a summary of your customized offers 1 time a day by email. With the Premium profile, you have 5 watchdogs at your fingertips and when something comes up, they notify you immediately.









