House for sale • 303 m² without real estateLohstraße 12, , Bavaria
Lohstraße 12, , BavariaPublic transport 2 minutes of walking • ParkingAt Lohstraße 12 in 94469 Deggendorf, a modern multi-family house is being built featuring a total of five high-quality, well-planned residential units built to the energy-efficient KfW-55 standard. The town square is reachable within a 10-minute walk.
This new construction project combines contemporary architecture, thoughtful floor plans, and a sustainable energy concept for forward-thinking living. Bright living and dining areas, functional room layouts, as well as terraces, balconies, or attractive attic apartments create a pleasant living environment for owner-occupiers and investors. The energy-efficient construction not only ensures low operating costs but also long-term property value.
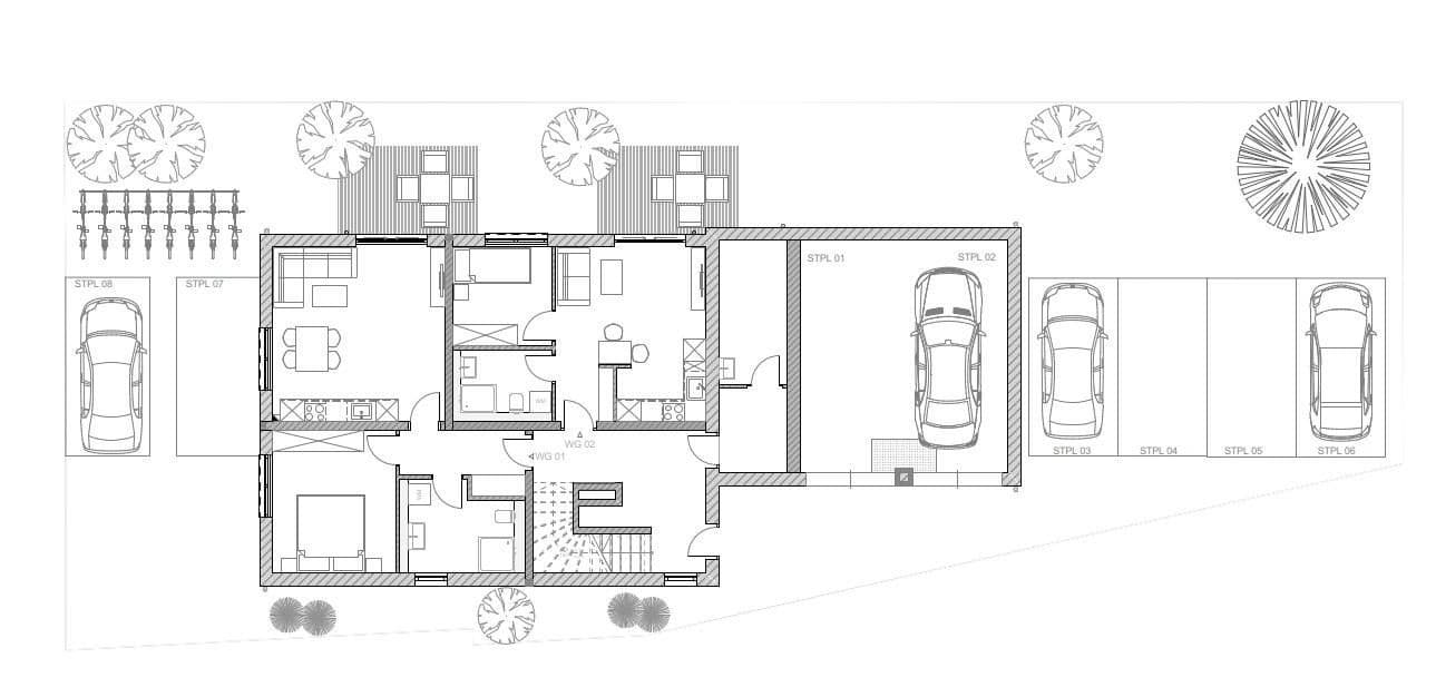
The offering is further enhanced by carport and outdoor parking spaces, as well as a quiet yet centrally located residential area with excellent access to the town center and the infrastructure of Deggendorf.
The apartments are allocated as follows:
Apartment No. 1 – 2-room apartment – Ground floor – 51.53 m² of living space
Apartment No. 2 – 2-room apartment – Ground floor – 34.46 m² of living space
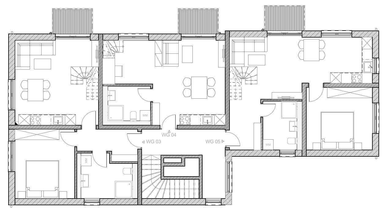
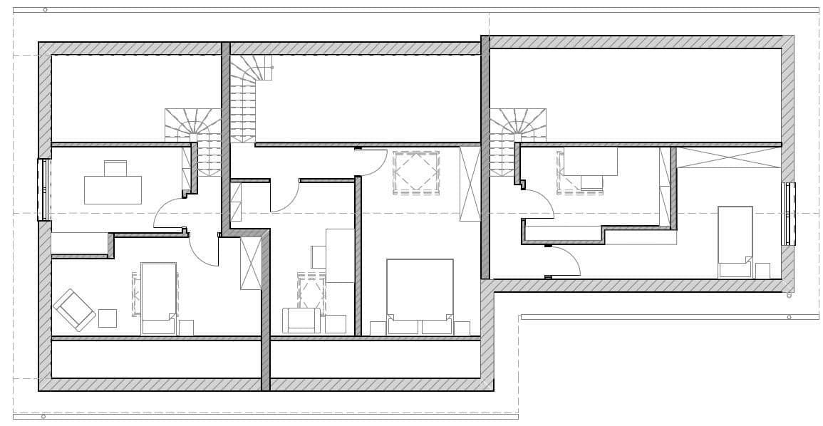
Apartment No. 3 – 4-room apartment – 1st + 2nd floor – 73.79 m² of living space
Apartment No. 4 – 3-room apartment – 1st + 2nd floor – 63.03 m² of living space
Apartment No. 5 – 4-room apartment – 1st + 2nd floor – 79.88 m² of living space
The apartments can be rented out cold for 14-16 € per month. The two carport spaces can each be rented for 70 €, and the five outdoor parking spaces for 50 € each per month. In total, this generates monthly rental income of 4,781.03 €, corresponding to a gross rental yield of approximately 3%.
For all five apartments, KfW loans have already been applied for under Program 296, with terms of 11-25 years, a grace period of 1-3 years, and an effective interest rate of 0.76%. These will be transferred to the buyer upon completion of the construction project.
Economics & Location Quality: An established residential location in an economically stable university and district town.
Central Location / Connectivity:
Motorway connection – the Deggendorf motorway interchange (connecting the A92 and A3) is nearby.
Demographic Development and Demand:
According to the land market report, there is stable demand, especially for residential properties and developed plots.
Price Development: The price per square meter for condominiums in Deggendorf is rising moderately.
All apartments will be equipped with high-quality tiles and premium vinyl flooring. Each apartment comes with a fitted kitchen including appliances. As the multi-family house is still under construction, the interior design can also be customized.
The purchase price becomes due only after the complete completion of the property.
Property characteristics
| Age | Over 5050 years |
|---|---|
| Condition | New-build |
| Usable area | 303 m² |
| Total floors | 3 |
| Available from | 01/07/2027 |
|---|---|
| Listing ID | 1004617 |
| Land space | 510 m² |
| Price per unit | €6,353 / m2 |
What does this listing have to offer?
| Balcony | |
| MHD 2 minutes on foot |
| Parking | |
| Terrace |
What you will find nearby
Still looking for the right one?
Set up a watchdog. You will receive a summary of your customized offers 1 time a day by email. With the Premium profile, you have 5 watchdogs at your fingertips and when something comes up, they notify you immediately.











