
Flat to rent 3+kk • 54 m² without real estatePeštukova, Prague - Veleslavín
Peštukova, Prague - VeleslavínEquipped • Cellar 3 m²Liability insurance requiredVerification of debt-free status requiredInterested?
Communicate all private owners and save CZK 22,000 on commissions.
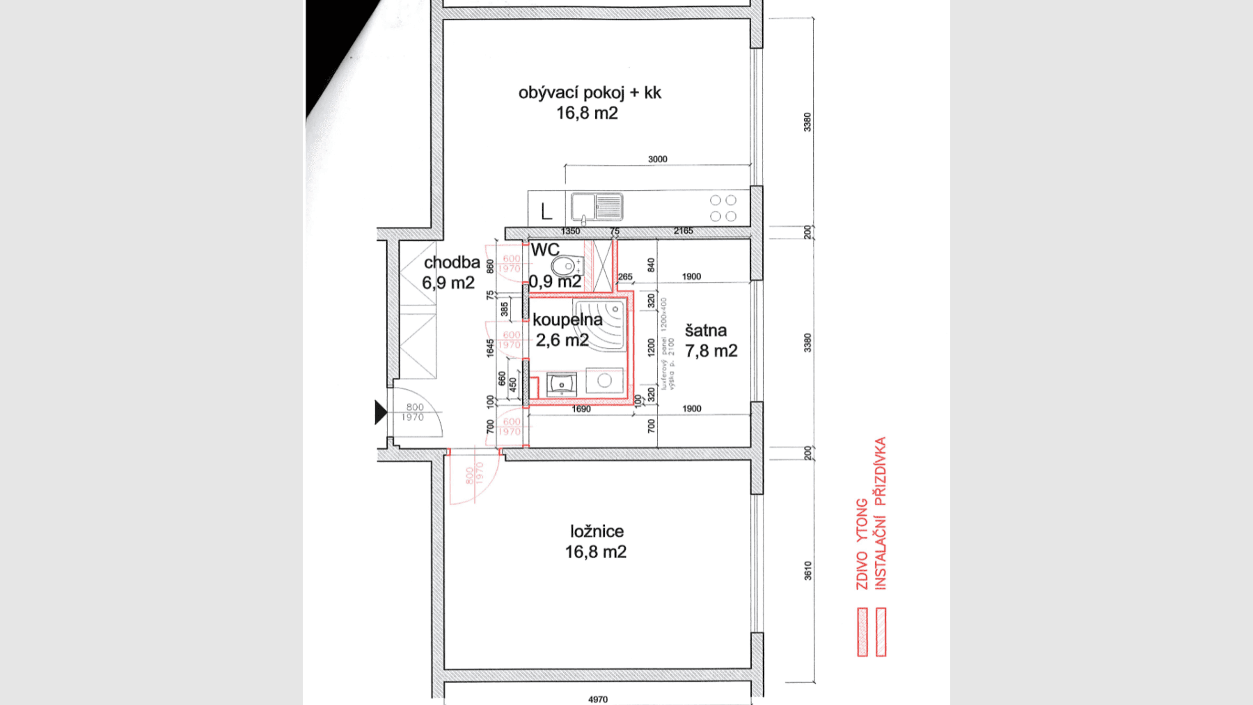
Nabízím k pronájmu moderní a prostorný byt 3+kk o rozloze 54 m² nacházející se v panelové budově o pěti podlažích. Byt se nachází ve třetím patře a je ve velmi dobrém stavu, pravidelně udržován a kompletně vybaven, což zaručuje komfortní bydlení ihned od nastěhování.
Okouzlí Vás promyšlené uspořádání interiéru, které nabízí dostatek prostoru pro volný život i pro stylové zařízení dle Vašich představ. K bytu náleží také sklep o ploše 3 m², ideální pro uskladnění osobních věcí.
Pro více informací a domluvení prohlídky mě prosím kontaktujte prostřednictvím zpráv na komunikační platformě.
I am offering for rent a modern and spacious 3-room apartment with a kitchenette, covering an area of 54 m², located in a five-story panel building. The apartment is situated on the third floor and is in very good condition, regularly maintained and completely furnished, ensuring comfortable living from the moment you move in.
You will be charmed by the thoughtful layout of the interior, which provides plenty of space for a relaxed lifestyle as well as stylish furnishing according to your preferences. The apartment also includes a 3 m² cellar, ideal for storing personal belongings.
For more information and to arrange a viewing, please contact me via messages on the communication platform.
Property characteristics
| Available from | 01/08/2026 |
|---|---|
| Building construction | Precast concrete |
| Fully furnished | Fully furnished |
| Design | Standard |
| Listing ID | 1004569 |
| EPC | C - Economical |
| Location | Quiet area |
| Price per unit | CZK 407.41 / m2 |
| Condition | Very good |
|---|---|
| Layout | 3+kk |
| Floor | 3. floor out of 5 |
| Heating | Central |
| Ownership | Personal |
| Reconstruction | Complete |
| Usable area | 54 m² |
What does this listing have to offer?
| Basement: 3 m² |
What you will find nearby
Interested?
Communicate all private owners and save CZK 22,000 on commissions.
Still looking for the right one?
Set up a watchdog. You will receive a summary of your customized offers 1 time a day by email. With the Premium profile, you have 5 watchdogs at your fingertips and when something comes up, they notify you immediately.


















