
Flat to rent 2 bedroom • 40 m² without real estateHernalser Hauptstraße 22 Wien 17. Bezirk Wien 1170
Hernalser Hauptstraße 22 Wien 17. Bezirk Wien 1170Public transport 2 minutes of walking • Lift • GarageSunny, well-divided 2-room apartment near AKH – close to U6 near Alserstraße – central location
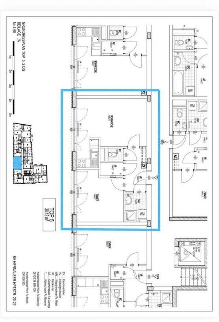
This perfectly arranged two-room apartment of approximately 40m² is located in a building constructed in 2002 on the 4th floor (lift available). All rooms are accessible separately. The living room features a small open kitchen equipped with all necessary appliances. From the entrance hall, you can access the bedroom and the bathroom. Additionally, the WC and the storage room can be reached separately from the hallway area. Due to its southern exposure on the 4th floor, the apartment is bright and sunny. There is a cellar storage compartment of 2m². If needed, a parking space (garage spot in the building) can be rented.
Room layout:
Living room with open kitchen, bedroom, bathroom, WC, hallway, storage room, cellar storage compartment
Features:
Parquet, tiles, kitchen with dishwasher, refrigerator, oven, ceramic hob, external shutters, bathroom with shower and washing machine connection
Infrastructure:
U6 within walking distance, as well as the AKH, various bus lines, trams, many shops, supermarkets, doctors, etc. Everything is reachable on foot within a few minutes.
The total rent already includes heating and hot water costs. Electricity, TV, and internet are to be paid separately.
Property characteristics
| Age | Over 5050 years |
|---|---|
| Layout | 2 bedroom |
| Listing ID | 1004326 |
| Price per unit | €21 / m2 |
| Condition | Very good |
|---|---|
| Floor | 2. floor |
| Usable area | 40 m² |
What does this listing have to offer?
| Basement | |
| Lift |
| Garage | |
| MHD 2 minutes on foot |
What you will find nearby
Still looking for the right one?
Set up a watchdog. You will receive a summary of your customized offers 1 time a day by email. With the Premium profile, you have 5 watchdogs at your fingertips and when something comes up, they notify you immediately.














