
Flat to rent 2 bedroom • 55 m² without real estateUrbánkova, Brno - Komín, Jihomoravský Region
Interested?
Communicate all private owners and save CZK 19,000 on commissions.
Nabízíme Vám pronájem útulného bytu 2+1 po částečné rekonstrukci v panelovém domě.
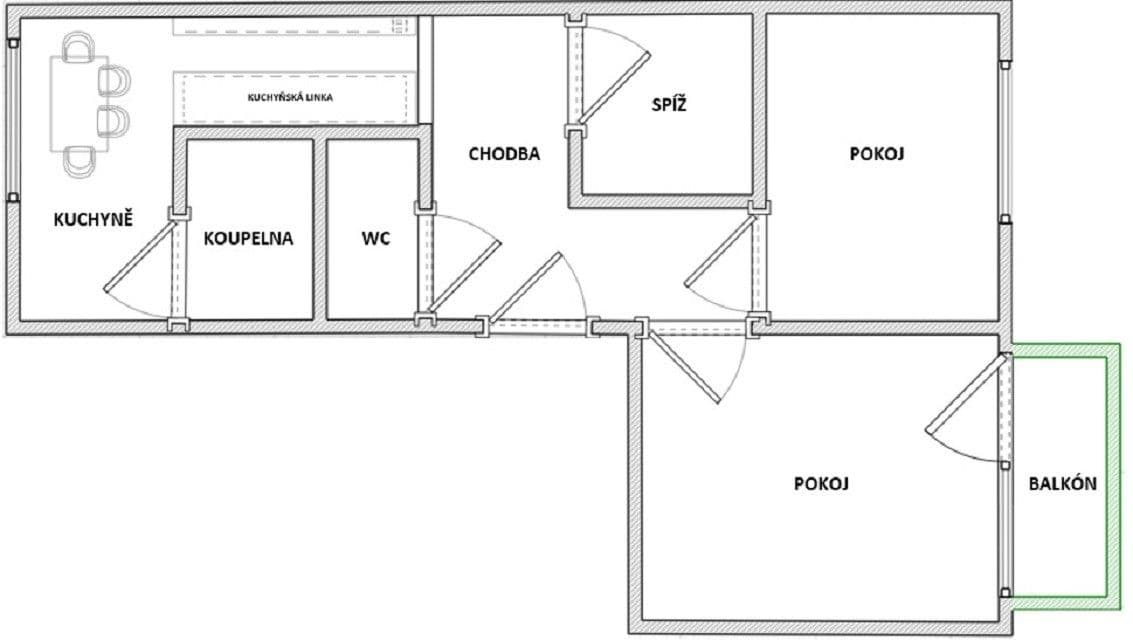
Poloha bytu je ve velmi atraktivní lokalitě klidné městské části Brno – Komín. Cca 100m je zastávka trolejbusu. V blízkosti bytu je veškerá občanská vybavenost (pošta, lékárna, obchod, škola, školka, restaurace). Byt se nachází v posledním patře čtyřpodlažní budovy bez výtahu. Celková plocha bytu je 55 m2, byt se sestává z chodby, 2 obytných pokojů, kuchyně s kuchyňskou linkou, samostaného wc, koupelny se sprchovým koutem a spíže. V bytě je vybavená kuchyňská linka včetně indukční varné desky a elektrické trouby, digestoř. Byt je vytápěn centrálně.
Byt se nabízí jako částečně zařízený a je ihned k dispozici (od 1.4.2026). V případě zájmu o prohlídku nás kontaktujte.
Property characteristics
| Available from | 22/03/2026 |
|---|---|
| Building construction | Precast concrete |
| Fully furnished | Partly |
| Listing ID | 1004227 |
| Usable area | 55 m² |
| Condition | Good |
|---|---|
| Layout | 2 bedroom |
| Floor | 4. floor out of 4 |
| Location | Quiet area |
| Price per unit | CZK 345 / m2 |
What does this listing have to offer?
| Balcony: 3 m² | |
| Parking |
| Basement: 2 m² |
What you will find nearby
Interested?
Communicate all private owners and save CZK 19,000 on commissions.


Flat to rentPalackého třída, Brno - Královo Pole, Jihomoravský Region- 2+kk
- 74 m²
CZK 18,000 + CZK 7,000CZK 22,000
Save CZK 4,000


Still looking for the right one?
Set up a watchdog. You will receive a summary of your customized offers 1 time a day by email. With the Premium profile, you have 5 watchdogs at your fingertips and when something comes up, they notify you immediately.














