Commercial property to rent • 2160 m² without real estate, Hesse
, HessePublic transport less than a minute of walking*** Do you wish for more space, new opportunities? We have the property for you:
1,400 Euro pallet positions + 5,000 meters of small parts storage + an additional 400-660 m² of multipurpose rooms: production, processing, office, meeting, training, canteen ... ***
* High-quality fittings, excellent condition
* Including a high-bay shelving system with an integrated freight elevator
* Modern white sanitary facilities
* Optional 260 m² of office space with a fitted kitchen in the adjacent office building
* Underfloor heating throughout all areas
* External blinds or roller shutters throughout for flexible shading
* Fiber-optic connection
* Intrusion detection system
* Fully fenced area with electric access gates
* New gas central heating installed in 2023
* Parking spaces
* Commission-free from a private provider
Gelnhausen Hailer-Ost: The popular, expanding industrial area of the district town of Gelnhausen on the eastern edge of the Rhine-Main area
Located directly on the A66 motorway (logistics route Frankfurt-Fulda); only 45 minutes from the international airport; city bus stop conveniently within a short walk, just about 3 minutes to Gelnhausen station
In the immediate vicinity you will find a variety of retail and service businesses, as well as restaurants, hotels, and a fitness center
The logistics building:
* 1,900 m²
- 1,500 m² of logistics area with ceilings up to 12 meters high, fully equipped with high-bay shelving and a small parts storage spread over 4 floors with a freight elevator
- An additional 400 m² for production, processing, and office areas for warehouse management, training, meetings, and versatile use
* Built in 2003
* Solid construction using aerated concrete with a cantilevered ceiling
* Compressed air pipelines in the production areas
* Level sectional door with daylight segments
* Thermal insulation glass façade facing north: plenty of natural light without unwanted heat
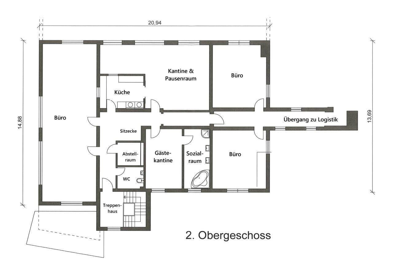
Optional in the office building:
* Upper office floor, directly connected to the logistics area via an opening
* 260 m²
* Increased in 2014
* Solid construction
* Bright rooms with abundant daylight
* In 2014, completely thermally insulated with a newly designed façade
How to reach us:
If you are interested, please send us a message with:
* Your name and company, address
* Telephone number
* E-mail address
* A brief description of how you intend to use the property
Thank you.
Property characteristics
| Age | Over 5050 years |
|---|---|
| Listing ID | 1004091 |
| Land space | 8,156 m² |
| Condition | After reconstruction |
|---|---|
| Land non-residential space | 2,160 m² |
| Price per unit | €0 / m2 |
What does this listing have to offer?
| MHD 0 minutes on foot |
What you will find nearby
Still looking for the right one?
Set up a watchdog. You will receive a summary of your customized offers 1 time a day by email. With the Premium profile, you have 5 watchdogs at your fingertips and when something comes up, they notify you immediately.

























