House for sale 6+1 • 233 m² without real estateBerlin Zehlendorf Berlin 14129
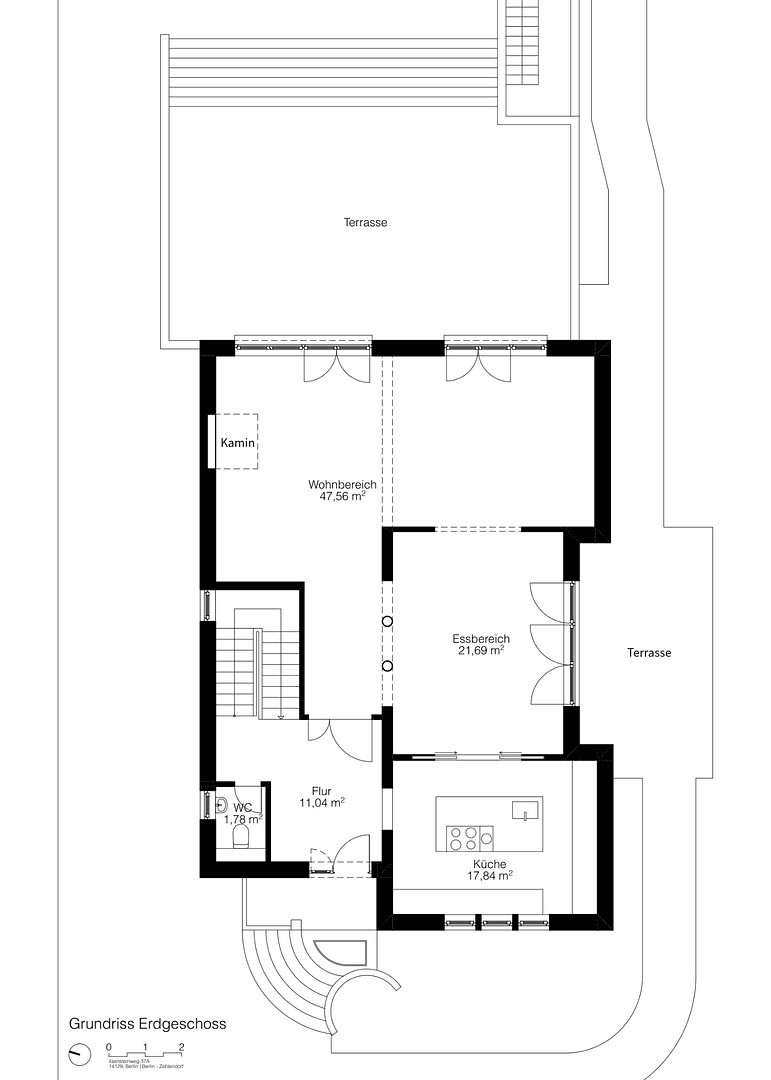
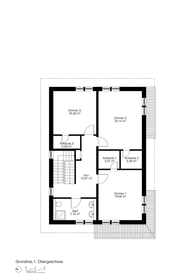
Provision-free from the owner: Nestled in the green tranquility of Berlin’s southwest, this free-standing, meticulously maintained urban villa is presented in move-in ready top condition. Set on a sunny lot of approximately 920 m², the property, built in 2003, offers around 330 m² of living and usable space spread over three levels, featuring a high-quality finished basement. The ground floor impresses with an approximately 100 m² living and dining area with floor-to-ceiling windows, an open-design kitchen with a cooking island (Gaggenau) and a fireplace. A free-standing staircase leads from the terrace directly to the heated pool with a counter-current system and motorized cover. On the upper floor, there are three bedrooms each with a walk-in dressing room and a modern shower bathroom. The top floor is designed as a private master area with an en-suite bathroom and balcony. In the basement: a wellness area with a sauna, fitness room, a home office with a separate entrance, as well as utility rooms. An approximately 20 m² garden house completes the ensemble.
Zehlendorf combines the best of both worlds: the tranquility of a well-established villa district with the full infrastructure of a major city. Located on the edge of the Grunewald and within walking distance of Schlachtensee and Krumme Lanke, the residential environment is unparalleled in Berlin, characterized by mature trees, generous plots, and a neighborhood with a high quality of life. Kindergartens, primary schools, and high schools are within cycling distance. Shopping opportunities along Teltower Damm and Clayallee as well as doctors and pharmacies are located in the immediate vicinity. Schlachtensee and Grunewald offer ideal conditions for jogging, swimming, and dog walking.
Open design kitchen with a cooking island and Gaggenau appliances. Herringbone parquet flooring and travertine stone as floor coverings. Walk-in dressing rooms in every bedroom. Heated pool with counter-current system and motorized pool cover. Private wellness area with sauna and fitness room. Fireplace in the living area. Separate entrance in the basement (ideal for a home office). Approximately 20 m² garden house. Energy performance certificate: 115.77 kWh/m²a, energy efficiency class D, gas heating.
Detailed brochure and virtual tour available at villa-zehlendorf.webflow.io
Property characteristics
| Age | Over 5050 years |
|---|---|
| Layout | 6+1 |
| EPC | D - Less economical |
| Land space | 920 m² |
| Price per unit | €14,163 / m2 |
| Condition | Good |
|---|---|
| Listing ID | 1003365 |
| Usable area | 233 m² |
| Total floors | 3 |
What does this listing have to offer?
| Balcony | |
| MHD 1 minute on foot |
| Basement | |
| Terrace |
What you will find nearby
Still looking for the right one?
Set up a watchdog. You will receive a summary of your customized offers 1 time a day by email. With the Premium profile, you have 5 watchdogs at your fingertips and when something comes up, they notify you immediately.











