
Flat to rent 2 bedroom • 77 m² without real estateHeinrich-Heine-Straße 48, , Brandenburg
Heinrich-Heine-Straße 48, , BrandenburgPublic transport 3 minutes of walking • Lift • ParkingFor rent from April 2026 is an attractive and well-proportioned 2-room apartment with approximately 76.13 m² of living space in a quiet, green area that is still within walking distance of the downtown area.
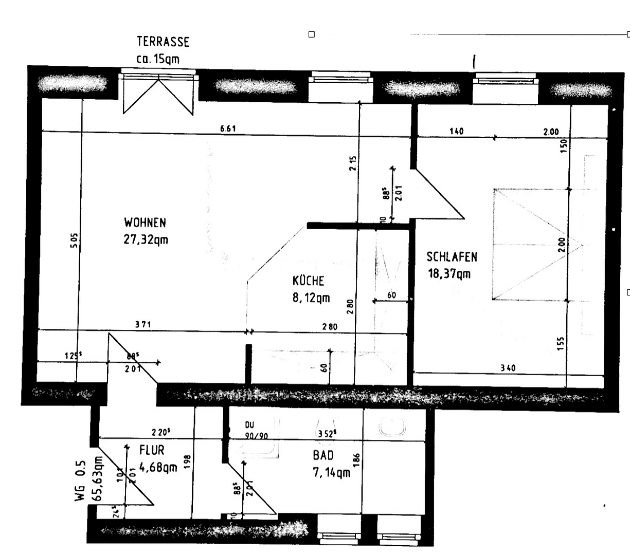
The apartment is located in a historic, well-maintained multi-family building with an elevator and features an open-plan living, cooking, and dining area. Large windows provide a bright, light-filled atmosphere and offer direct access to the private terrace. The apartment features vinyl flooring with a wood-effect and white walls. The bathroom is equipped with a shower and WC, and both the bathroom and the entire apartment are designed to be barrier-free or wheelchair accessible.
Facilities & Details:
• Living space: 76.13 m²
• 1 bedroom
• Open-plan living, cooking, and dining area
• 1 bathroom with shower and WC
• Terrace
• Vinyl flooring & white walls
• Barrier-free / wheelchair accessible
• Elevator in the building
• Bicycle shed available
• Optional parking space (separate)
Rental Conditions:
• Base rent: €912 per month
• Additional costs: Heating costs €150 + other costs €118
• Rental period: indefinite
Location:
The apartment is located in a quiet and green area with excellent connections. Shopping options, restaurants, and downtown are conveniently within walking distance.
Please refer to the floor plan for further details regarding the layout.
Property characteristics
| Age | Over 5050 years |
|---|---|
| Layout | 2 bedroom |
| EPC | D - Less economical |
| Price per unit | €12 / m2 |
| Condition | After reconstruction |
|---|---|
| Listing ID | 1003364 |
| Usable area | 77 m² |
What does this listing have to offer?
| Wheelchair accessible | |
| Parking | |
| Terrace |
| Lift | |
| MHD 3 minutes on foot |
What you will find nearby
Still looking for the right one?
Set up a watchdog. You will receive a summary of your customized offers 1 time a day by email. With the Premium profile, you have 5 watchdogs at your fingertips and when something comes up, they notify you immediately.










