
House for sale 4+1 • 83 m² without real estateGrotelertwiete 4g Hamburg-Harburg Eißendorf Hamburg 21075
A HOUSE TO FALL IN LOVE WITH AND MAKE YOUR OWN – END-OF-TERRACE HOUSE WITH A GARDEN PARADISE!
This charming end-of-terrace house in the quiet area of Hamburg-Eißendorf offers young families a wonderful opportunity to realize their dream of owning a home.
On approximately 82.25 m², you will find 2 2/2 rooms, a bright full bathroom, and a cozy kitchen with a view of the greenery.
The spacious 585 m² plot with a terrace and mature trees creates a sheltered, green atmosphere.
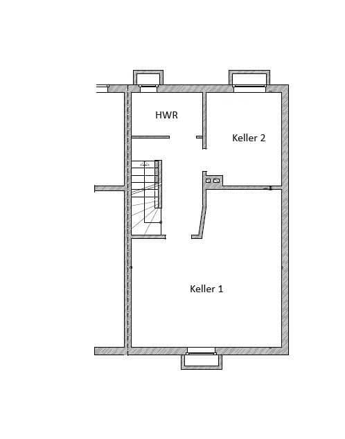
A large basement – including a former party cellar – offers additional potential for hobbies, storage, or play areas.
The gas central heating was installed in 2015.
Ideal for anyone looking for a house with character and plenty of design freedom.
The end-of-terrace house is located on Grotelertwiete in the popular Hamburg-Eißendorf district – a residential area that harmoniously combines tranquility, closeness to nature, and urbanity. The surroundings are characterized by tree-lined streets, well-kept detached houses, and a relaxed neighborhood where families instantly feel at home. Eißendorf ranks among the most popular residential areas in southern Hamburg: urban yet peaceful – green, yet well-connected. An ideal place to put down roots.
+ Charming end-of-terrace house in the family-friendly area of Hamburg-Eißendorf
+ Approximately 87 m² of living space • 4 rooms
+ Large plot (585 m²) with mature trees
+ Terrace with awning
+ Cozy kitchen with garden view
+ Bright full bathroom with window
+ Spacious basement with storage and former party cellar
+ Ideal for young families and handy individuals
+ Quiet residential street, good connections, plenty of nature in the surroundings
HAFERKAMP GMBH
Strandallee 11
23683 Scharbeutz (Haffkrug)
Phone: 04563 / 423998-0
Fax: 04563 / 423998-9
Email: info(at)haferkamp-grundbesitz.de
Managing Director: Jens-Hendrik Haferkamp
District Court Lübeck HRB 23030 HL
VAT ID: DE304113136
Haferkamp Grundbesitz is a trade name of Haferkamp GmbH.
License-required activity according to Section 34c (1) of the Trade Regulation Act
Supervisory Authority:
Municipality of Scharbeutz (Trade Office) · At Bürgerhaus 2, 23683 Scharbeutz
Person responsible for content according to Section 6 MDStV:
Jens-Hendrik Haferkamp
Real estate inquiries are not welcome! According to Section 7 of the UWG, unsolicited contacts by brokers without the explicit consent of the recipient are prohibited!
Property characteristics
| Age | Over 5050 years |
|---|---|
| Condition | Before reconstruction |
| Listing ID | 1003326 |
| Land space | 585 m² |
| Price per unit | €4,084 / m2 |
| Available from | 22/03/2026 |
|---|---|
| Layout | 4+1 |
| Usable area | 83 m² |
| Total floors | 2 |
What does this listing have to offer?
| Basement | |
| Terrace |
| MHD 4 minutes on foot |
What you will find nearby
Still looking for the right one?
Set up a watchdog. You will receive a summary of your customized offers 1 time a day by email. With the Premium profile, you have 5 watchdogs at your fingertips and when something comes up, they notify you immediately.












