
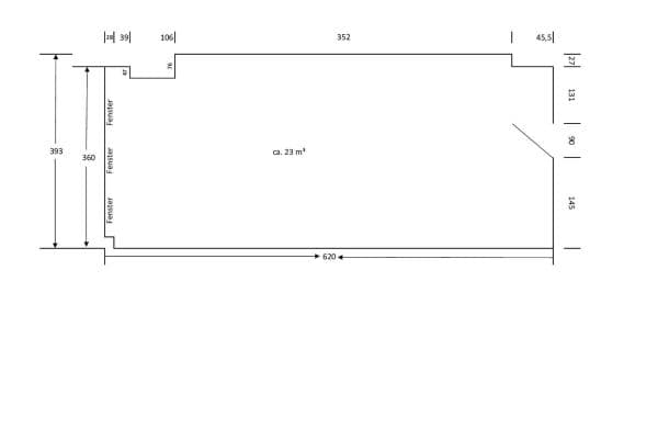
Office to rent • 320 m² without real estateVoerder Straße 14 Hagen Hagen Nordrhein-Westfalen 58135
Voerder Straße 14 Hagen Hagen Nordrhein-Westfalen 58135Public transport 1 minute of walkingThe offered commercial space is located on the ground floor of a well-maintained residential and commercial building and has a total area of approximately 320 m². The unit has been modernized, is in excellent condition, and is available for occupancy on short notice.
Thanks to the spacious and flexible floor plan, the area is ideally suited for use as an office, medical practice, law firm, or service location. Different room configurations – such as reception areas, individual or team offices, meeting rooms, as well as ancillary and technical spaces – can be implemented efficiently and customized to meet specific needs.
Particularly noteworthy are the large display windows facing the pedestrian zone and the high-traffic Voerder Street. These features provide excellent visibility, ample natural light, and offer optimal opportunities for outdoor advertising and corporate presentations.
The barrier-free entrance ensures comfortable access for employees, customers, and patients, meeting the important requirements of modern office and practice environments.
The commercial space is situated in an attractive corner location at Voerder Straße 14 in the Hagener district of Haspe. The location is characterized by high pedestrian and traffic volume.
The immediate proximity to the pedestrian zone as well as to a heavily frequented main traffic route ensures constant presence and easy discoverability – a clear advantage for service-oriented uses.
A bus stop directly in front of the property ensures very good connections to public transport. Optionally available parking spaces further enhance the convenience for employees and visitors.
The established vicinity, with its mix of retail, gastronomy, local services (including a REWE supermarket) and other service providers, creates additional foot traffic and underscores the central location in the district.
The space offers a functional and well-maintained setup that is ideal for office and practice use:
· Approximately 320 m² total area
· Flexible room layout (e.g., reception, offices, meeting rooms, ancillary areas)
· Modernized and well-maintained condition
· IT network cabling as well as a separate server/technical room
· Representative entrance area
· Large display windows with visibility and sun protection
· Pleasant room acoustics thanks to carpet flooring
· Air conditioning available
· Separate restroom facilities for women and men
· Social room with a fitted kitchen
· Barrier-free access
· 2–5 optional parking spaces
· Available for occupancy on short notice
The setup allows for a quick move-in and an economical start without the need for major structural adjustments.
Viewing Appointments
For further information or to arrange a viewing appointment, please feel free to leave an inquiry or contact us by phone.
Additional Information
The energy certificate is available for inspection.
All information is provided to the best of our knowledge. Errors and interim rentals are reserved. This exposé is preliminary information; the signed lease agreement is the only legally binding document. No liability can be assumed for the accuracy and completeness of the information.
Imprint
Information in accordance with § 5 TMG
Immobilienberatung Tobias Segieth
Holzstraße 79
58453 Witten
Phone: +49 2302 7601670
E-mail: info@immobilienberatung-segieth.de
www.immobilienberatung-segieth.de
Owner:
Tobias Segieth
Legal Form:
Sole Proprietorship
Supervisory Authority
Ordnungsamt der Stadt Witten
Marktstraße 16
58452 Witten
Permit granted in accordance with § 34c of the Gewerbeordnung (GewO)
Ennepe-Ruhr-Kreis
Hauptstraße 92
58332 Schwelm
Professional Designation and Professional Regulations
Professional Designation:
Real Estate Agent
Relevant Chamber:
IHK Mittleres Ruhrgebiet
Ostring 30-32
44787 Bochum
Awarded in:
Germany
EU Online Dispute Resolution
The European Commission provides a platform for online dispute resolution (ODR): https://ec.europa.eu/consumers/odr/.
You can find our e-mail address above in the imprint.
Consumer Dispute Resolution/Universal Dispute Settlement Body
We are neither willing nor obliged to participate in dispute resolution procedures before a consumer arbitration board.
Central Contact Point under the Digital Services Act - DSA (Regulation (EU) 2022/265)
Our central contact point for users and authorities in accordance with Articles 11 and 12 of the DSA can be reached as follows:
Phone: +49 2302 7601670
E-mail: info@immobilienberatung-segieth.de
Property characteristics
| Age | Over 5050 years |
|---|---|
| Condition | After reconstruction |
| Land office | 320 m² |
| Available from | 19/03/2026 |
|---|---|
| Listing ID | 1002911 |
| Price per unit | €0 / m2 |
What does this listing have to offer?
| MHD 1 minute on foot |
What you will find nearby
Still looking for the right one?
Set up a watchdog. You will receive a summary of your customized offers 1 time a day by email. With the Premium profile, you have 5 watchdogs at your fingertips and when something comes up, they notify you immediately.





















