
Flat for sale 3+kk • 110 m² without real estateSchwartauer Allee 121a Lübeck Holstentor Nord Schleswig-Holstein 23554
Vintage Vibes & Garden Delights – Spacious Historic Apartment for Free Spirits:
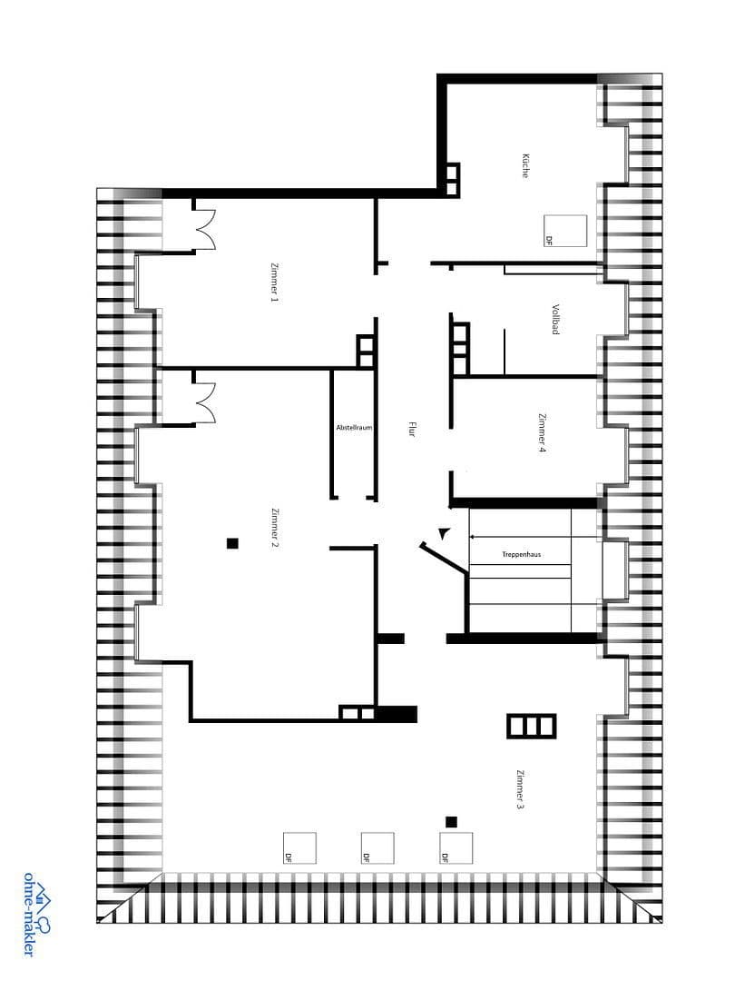
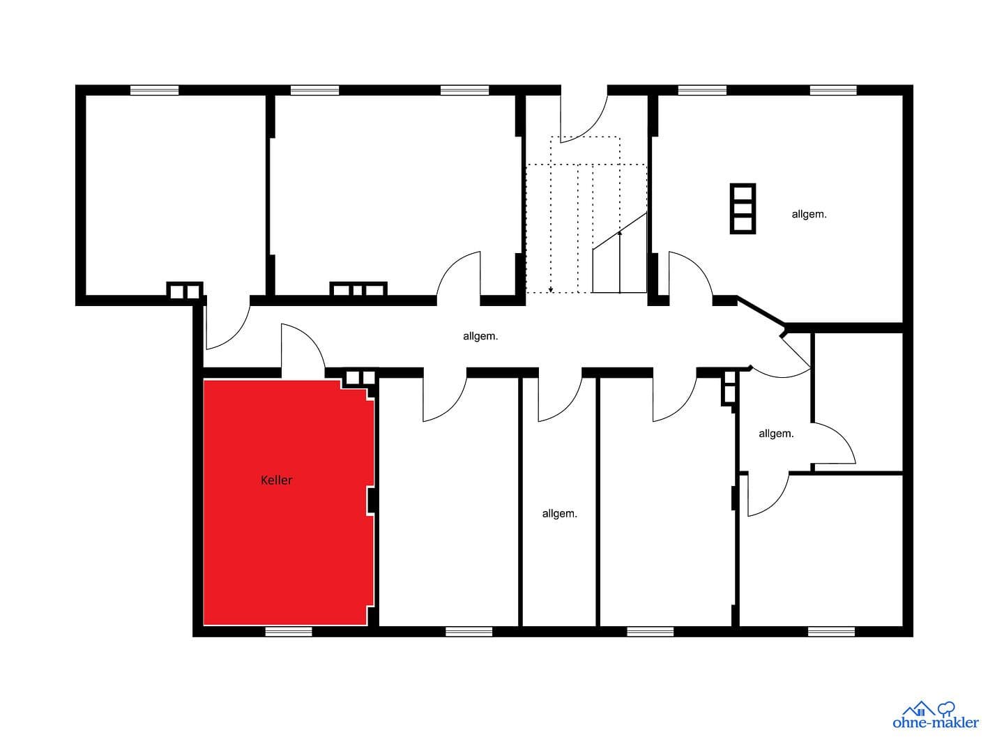
With its 4 bright, separate rooms, full bathroom with window, new fitted kitchen, large historic communal garden, and its own storage room in the basement, this property is a true all-rounder!
This light-filled 110m² apartment is suitable as a studio or artist shared flat, as well as for families or student friends alike. And as an investment, the property offers a secure yield.
The top-floor apartment is located in a well-maintained historic building in the characteristic Hanseatic red brick style from 1900 – with a total of 11 residential units.
The spacious and sheltered communal garden, featuring beautiful mature trees and an old brick wall as a secure garden boundary, offers smaller children the opportunity to play carefree and safely.
The apartment has been freshly renovated and has received a brand-new fitted kitchen. It boasts many romantic historic details such as dormer windows, plank floors, and wooden doors.
Additionally, just a few months ago a new gas condensing boiler (built in 2025) from the brand Vaillant was installed. (The hot water is provided separately.)
The monthly maintenance fee is €300.00
Purchase Price: €349,000 (no commission)
In the immediate vicinity, all everyday shopping facilities are available; likewise, kindergartens and schools are within walking distance or can quickly be reached by public transport.
Lübeck is an old, well-preserved Hanseatic city located only about 65 kilometers from Hamburg. Its enchanting old town, which is situated on an island in the Trave, is part of the UNESCO World Heritage. Moreover, Lübeck boasts a rich and diverse cultural scene and is world-famous for its Buddenbrook House at Mengestraße 4 as well as the traditional Niederegger Marzipan manufactory.
freshly renovated
- new fitted kitchen
- new gas condensing boiler by Vaillant
- plank floors and tiling
- white full bathroom with a window
- romantic communal garden
- own storage room in the basement
HAFERKAMP GMBH
Strandallee 11
23683 Scharbeutz (Haffkrug)
Phone: 04563 / 423998-0
Fax: 04563 / 423998-9
Email: info(at)haferkamp-grundbesitz.de
Managing Director: Jens-Hendrik Haferkamp
Local Court Lübeck HRB 23030 HL
VAT ID: DE304113136
Haferkamp Grundbesitz is a trade name of Haferkamp GmbH.
Business activity requiring a permit pursuant to § 34c (1) of the Trade Regulation Act
Supervisory Authority:
Municipality of Scharbeutz (Trade Office) · Am Bürgerhaus 2, 23683 Scharbeutz
Content Responsible in accordance with § 6 MDStV:
Jens-Hendrik Haferkamp
Real estate agent inquiries are not welcome! According to § 7 UWG, unsolicited contact by real estate agents is prohibited without the express consent of the recipient!
Property characteristics
| Age | Over 5050 years |
|---|---|
| Condition | After reconstruction |
| Floor | 3. floor out of 3 |
| EPC | C - Economical |
| Price per unit | €3,173 / m2 |
| Available from | 19/03/2026 |
|---|---|
| Layout | 3+kk |
| Listing ID | 1002558 |
| Usable area | 110 m² |
What does this listing have to offer?
| Basement |
| MHD 0 minutes on foot |
What you will find nearby
Still looking for the right one?
Set up a watchdog. You will receive a summary of your customized offers 1 time a day by email. With the Premium profile, you have 5 watchdogs at your fingertips and when something comes up, they notify you immediately.








