
Flat to rent 2+kk • 76 m² without real estateGerberstraße 19, , Mecklenburg-Vorpommern
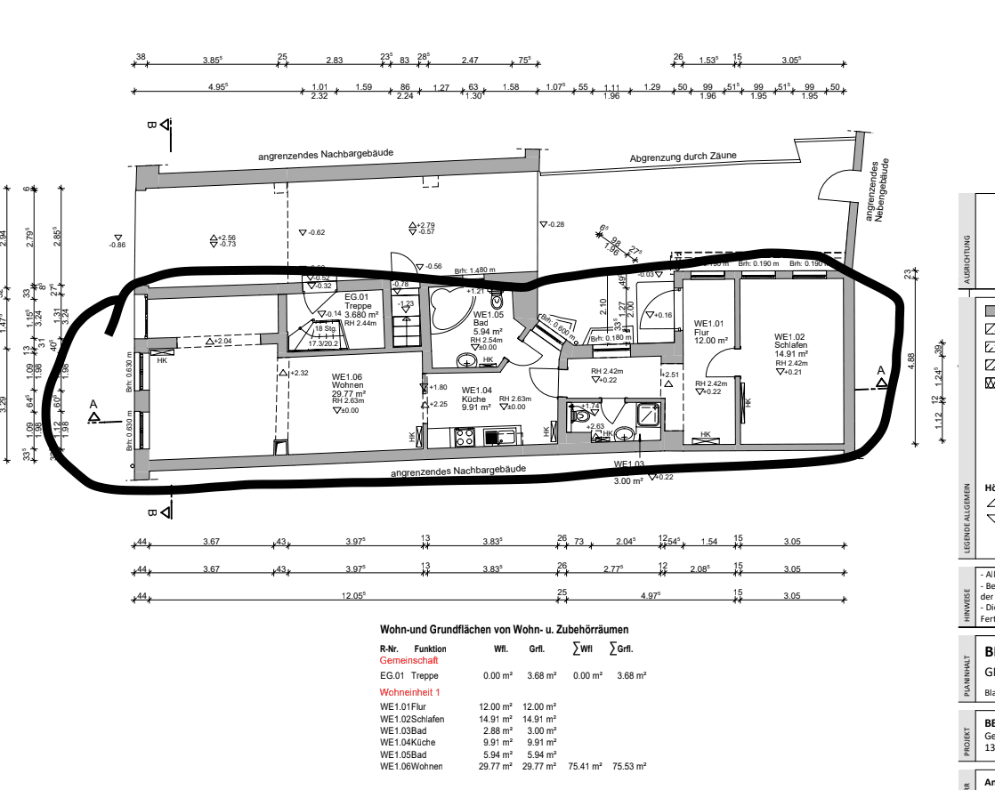
Gerberstraße 19, , Mecklenburg-VorpommernPublic transport 1 minute of walking • ParkingA beautiful apartment in the old town is looking for a new tenant starting on June 1, 2026. The apartment features two bathrooms, an open dining area, a bedroom in the courtyard area of the building, and a large living room. It is located in an old building from the year 1900 and was extensively renovated in 2023. It is possible to rent a parking space in the courtyard directly in front of the apartment for 50 EUR per month. The additional costs exclude heating, which the tenant must arrange independently.
Property characteristics
| Age | Over 5050 years |
|---|---|
| Condition | After reconstruction |
| Listing ID | 1002410 |
| Price per unit | €10 / m2 |
| Available from | 01/06/2026 |
|---|---|
| Layout | 2+kk |
| Usable area | 76 m² |
What does this listing have to offer?
| Parking |
| MHD 1 minute on foot |
What you will find nearby
Still looking for the right one?
Set up a watchdog. You will receive a summary of your customized offers 1 time a day by email. With the Premium profile, you have 5 watchdogs at your fingertips and when something comes up, they notify you immediately.











