House for sale 4+1 • 170 m² without real estate, Lower Saxony
, Lower SaxonyPublic transport 2 minutes of walking • ParkingThis charming thatched-roof house is located in the heart of Luhmühlen.
In 2007, the house was converted from a semi-detached house into a single-family home. The floor plan was changed and large, family-friendly rooms were created.
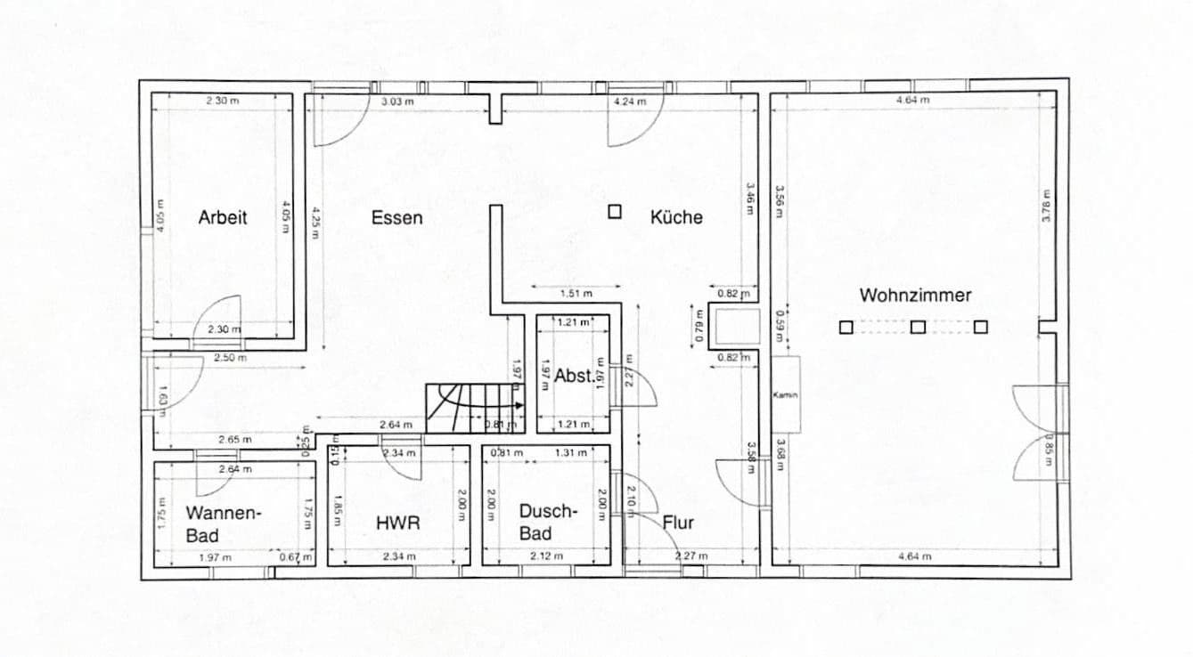
At the center of the house lies its heart, the large open-plan kitchen and living area. The soft green country-style fitted kitchen was newly installed in 2018 and offers plenty of storage space. From here, you can step directly onto the south terrace and into the lovely garden.
The kitchen comes with a stove featuring an induction cooktop, a dishwasher, and a refrigerator. The utility room provides ample space for a freezer, washing machine, and dryer.
On the ground floor, there is a beautiful, wide oak plank floor, except in the bathrooms and the living room (which have tile and laminate). Floor heating is installed throughout the ground floor, except in the living room.
Both the shower room and the bathtub room are bright and modern.
On the west-facing gable side is the large, cozy living room with a stove. Partially floor-to-ceiling windows have been installed here.
Another small room, currently used as a dressing room, is located on the east side.
A lovely wooden staircase leads to the upper floor. Here you will find two more spacious rooms and a large corridor. Radiators are installed on the upper floor.
In the garden, there is a wooden sauna house, which was built about 7 years ago.
The entire property is fenced. A lightning rod is installed on the roof.
At the beginning of 2023, the house was retrofitted with an alarm system. At the end of 2023, a new gas heating system was installed. Early in 2024, a large new carport was built with 3 parking spaces, a small room for bins, and a large room for garden tools and furniture. In early 2025, the thatched roof was replastered and repaired.
The house is not a listed building.
Luhmühlen is a small, rural village that belongs to the Samtgemeinde Salzhausen. The village center is about 2 km away and offers many shops, several small businesses, doctors, and pharmacies. An outdoor swimming pool is also within cycling distance.
Salzhausen has a school center with an elementary and secondary school as well as a gymnasium.
For equestrians, Luhmühlen offers the AZL and several other stables, which are also accessible by bicycle.
Property characteristics
| Age | Over 5050 years |
|---|---|
| Condition | Very good |
| Listing ID | 1002208 |
| Land space | 943 m² |
| Price per unit | €3,706 / m2 |
| Available from | 15/11/2025 |
|---|---|
| Layout | 4+1 |
| Usable area | 170 m² |
| Total floors | 1 |
What does this listing have to offer?
| Parking | |
| Terrace |
| MHD 2 minutes on foot |
What you will find nearby
Still looking for the right one?
Set up a watchdog. You will receive a summary of your customized offers 1 time a day by email. With the Premium profile, you have 5 watchdogs at your fingertips and when something comes up, they notify you immediately.
























