Commercial property for sale • 2000 m² without real estate, Hesse
, HessePublic transport 2 minutes of walkingFor sale by private owner, * COMMISSION-FREE *
A versatile residential and commercial property is available in the Dieburg industrial area.
Whether used as a warehouse, mail order business, automotive service, craft workshop, retail store, restaurant, sports facility, leisure center, etc., many possibilities exist here. This is your opportunity to flourish. Ample parking spaces are available. Additionally, this property includes living accommodations, making it easy to combine working and living. The building is not rented and will be handed over vacant.
Plot size: 2000 m²
Construction: Ytong, completed in 1985
Hall: with sectional rolling door (4 x 3.7 m); the ceiling is currently suspended,
Clear height: approx. 3.67 m, Eaves height: approx. 4.87 m, Ridge height: approx. 5.02 m
No basement
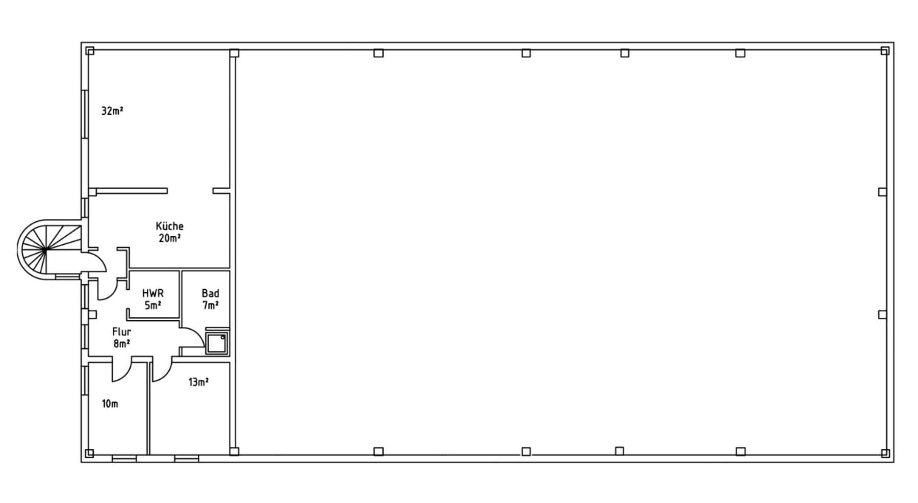
Total storage area: 346 m² – heated
Office: 30 m²
Staff break room: 7.5 m²
Staff toilets
Heating room
Sales area: 23 m²
Storage room: 15 m² (unfinished)
Additionally:
Basement: office spaces with kitchen, WC, and break rooms, approx. 110 m² on the ground floor
Upper floor: apartment with kitchen, bathroom/WC, and office, approx. 95 m²
The entire property is enclosed by a fence with a 6 m sliding gate system,
Approximately 26 car parking spaces.
The rear part of the property is currently used as a garden (approx. 480 m²).
Further development may be possible.
Liquid gas tank: 4200 liters
Heating: gas boiler from August 2010 with a central hot water supply (200 L),
Energy consumption: approx. 89 kWh/m²
New in 2024/25: water supply and 2 balcony power plants.
An energy certificate is available.
All information is provided without any guarantee as to its accuracy or completeness.
A detailed brochure with the property address and contact details will be provided upon receipt of your complete address.
Conveniently located in Dieburg, North Industrial Area, with excellent access.
Please check BEFORE your inquiry whether the property is fundamentally suitable for your needs and whether financing for a commercial property can be secured.
Internal viewings are only possible upon presentation of a current FINANCING CONFIRMATION.
Thank you for your understanding.
Property characteristics
| Age | Over 5050 years |
|---|---|
| Listing ID | 1002169 |
| Land space | 2,000 m² |
| Condition | Good |
|---|---|
| Land non-residential space | 2,000 m² |
| Price per unit | €445 / m2 |
What does this listing have to offer?
| Wheelchair accessible | |
| Terrace |
| MHD 2 minutes on foot |
What you will find nearby
Still looking for the right one?
Set up a watchdog. You will receive a summary of your customized offers 1 time a day by email. With the Premium profile, you have 5 watchdogs at your fingertips and when something comes up, they notify you immediately.














