
Flat to rent 3+1 • 70 m² without real estateLevinstr. 52 Essen Borbeck-Mitte Nordrhein-Westfalen 45356
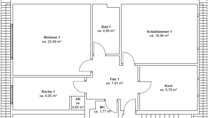
For rent is a well-maintained 3.5-room apartment with approximately 70 m² of living space in Essen (Levinstr. 52, 45356 Essen) in a multi-family house (built in 1980). The apartment impresses with a practical floor plan and is ideal for singles, couples, or a small family.
Apartment Details:
3.5 rooms (living room, bedroom, another room e.g., children's room/office)
Approximately 70 m² of living space
Separate kitchen
Bathroom
Year built: 1980
Energy certificate: Class D
Available immediately!
Location:
The apartment is located in Essen (Levinstr. 52, 45356). A bus stop is directly at the door, and there are good connections to shopping, public transport, and major traffic routes. Daily amenities are quickly accessible.
Additional Information:
Viewings are possible by appointment. If interested, please send a brief message including the number of people, occupation/employment status, and desired move-in date.
Property characteristics
| Age | Over 5050 years |
|---|---|
| Condition | Good |
| Floor | 2. floor out of 3 |
| EPC | D - Less economical |
| Price per unit | €9 / m2 |
| Available from | 17/03/2026 |
|---|---|
| Layout | 3+1 |
| Listing ID | 1002155 |
| Usable area | 70 m² |
What does this listing have to offer?
| Garage |
| MHD 0 minutes on foot |
What you will find nearby
Still looking for the right one?
Set up a watchdog. You will receive a summary of your customized offers 1 time a day by email. With the Premium profile, you have 5 watchdogs at your fingertips and when something comes up, they notify you immediately.














