
House for sale 3+1 • 105 m² without real estate, Hesse
For sale is a stylish single-family house with a double garage and a large terrace (50 sqm). The property is completed by a spacious garden with a roomy shed.
The single-family house is located in a very quiet area within a fully developed residential area, which is in a prime location with short connections to the nearby city of Darmstadt as well as the local motorways (A3, A5). Frankfurt Airport is reachable within 30 minutes. There is no need for any renovation. The heating is new; the windows are in excellent condition, etc.
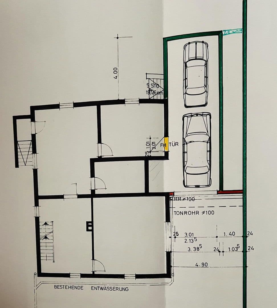
Ground Floor approx. 105 sqm: Through the hallway, you proceed straight past the kitchen and guest WC to reach the spacious living room with an integrated dining area, which faces south. The large south-facing terrace is accessible from the living room. A five-meter wide electric awning is part of the amenities. Also on the ground floor is a modern bathroom with both a shower and a bathtub, as well as a study/children’s room, and the bedroom, which also has direct access to the terrace.
Basement approx. 85 sqm: The basement is accessible via both an external staircase and an internal staircase. There, a large room is available, which can be used as a youth or hobby room. A private shower room is also located in the basement. In addition to generously sized storage and utility rooms, a stylish bar has been set up. There is direct access to the garage.
Garden: A broad staircase and the entrance area lead to the garden, which features a large lawn and a solid garden shed that can not only be used for storing gardening tools.
Property characteristics
| Age | Over 5050 years |
|---|---|
| Condition | Good |
| Listing ID | 1001714 |
| Land space | 501 m² |
| Price per unit | €4,762 / m2 |
| Available from | 16/03/2026 |
|---|---|
| Layout | 3+1 |
| Usable area | 105 m² |
| Total floors | 1 |
What does this listing have to offer?
| Basement | |
| Parking | |
| Terrace |
| Garage | |
| MHD 3 minutes on foot |
What you will find nearby
Still looking for the right one?
Set up a watchdog. You will receive a summary of your customized offers 1 time a day by email. With the Premium profile, you have 5 watchdogs at your fingertips and when something comes up, they notify you immediately.





