
House for sale 6+1 • 138 m² without real estateCurt- Goetz- Str. 6 Hamburg Bramfeld Hamburg 22175
Well-maintained single-family house in a quiet southern location on an approximately 550 m² private plot.
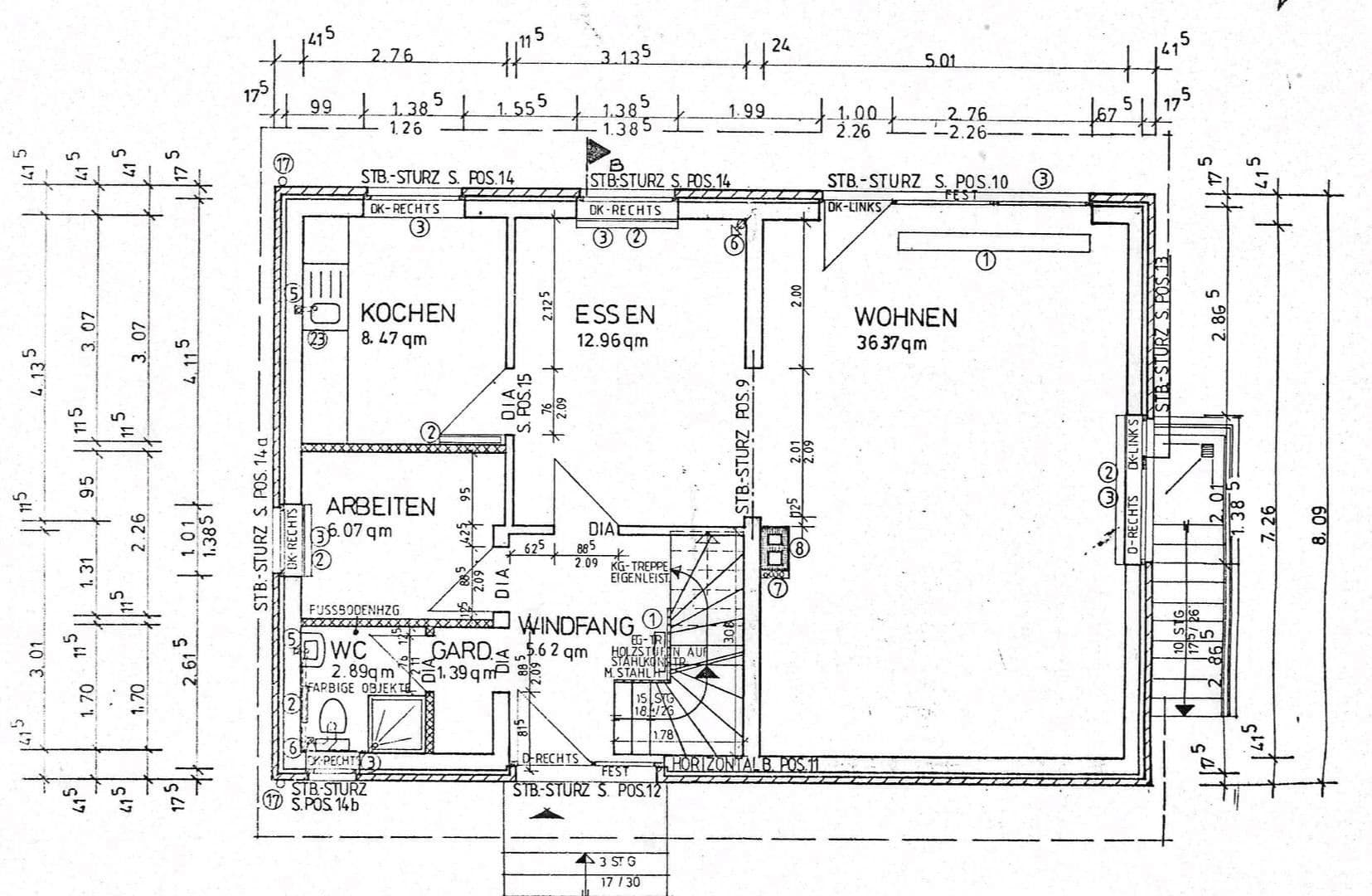
The ground floor features a separate fitted kitchen; immediately beyond it is the spacious and bright living-dining area with a fireplace stove and low-maintenance tiles.
Next to the entrance area, there is a shower room and a small office.
On the upper floor, there are 4 bedrooms and a large full bathroom.
The entire house is equipped with underfloor heating.
The basement is accessible from the outside and includes a small guest area with an additional bathroom.
The nearest bus stop (line 27) is about a 6-minute walk away, with further bus lines (18, 17) about 10 minutes away. There are also attractive recreational opportunities in the surrounding area.
The house is located at the border of Bramfeld, Wellingsbüttel, and Sasel and sits in a dead-end street with a turnaround loop.
The street is used exclusively by residents and their guests. The S-Bahn station in Wellingsbüttel is approximately 2.5 km away.
Property characteristics
| Age | Over 5050 years |
|---|---|
| Layout | 6+1 |
| EPC | G - Extremely uneconomical |
| Land space | 550 m² |
| Price per unit | €5,572 / m2 |
| Condition | Good |
|---|---|
| Listing ID | 1001670 |
| Usable area | 138 m² |
| Total floors | 2 |
What does this listing have to offer?
| Basement | |
| Terrace |
| Parking |
What you will find nearby
Still looking for the right one?
Set up a watchdog. You will receive a summary of your customized offers 1 time a day by email. With the Premium profile, you have 5 watchdogs at your fingertips and when something comes up, they notify you immediately.












