
Flat to rent 3+1 • 85 m² without real estateKrkoškova, Brno - Černá Pole, Jihomoravský Region
Interested?
Communicate all private owners and save CZK 7,500 on commissions.
Premium studentské bydlení v Černých Polích - ul. Krkoškova.
Hledáte bydlení, kde se nebudete mačkat a kde se budete cítit jako doma? Nabízíme čerstvě zařízený, prostorný byt v cihlovém rodinném domě v krásných Černých Polích v Brně. Žádný panelák, ale klid, vysoké stropy a zahrada za dohem pro letní grilovačky či studium nebo relax na čerstvém vzduchu.
Byt je kompletně vybaven zcela novým nábytkem (vše u nás zůstává, ale můžete si ho přeskládat podle sebe nebo doplnit o to, co potřebujete).
Společné části
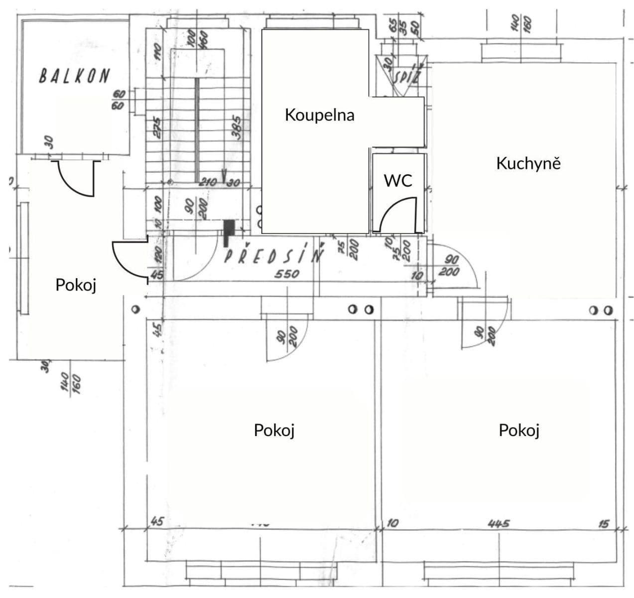
Společná Kuchyně: Velká společná kuchyně s myčkou (už žádné hádky o nádobí!), lednicí, plynovým sporákem, mikrovlnkou a šikovnou spížkou na zásoby. U velkého stolu se v pohodě sejde 6 lidí.
Koupelna jako v lázních: Máme vanu pro relax i sprchový kout pro rychlé ráno. Pračka je samozřejmostí, WC je samostatné.
Rychlá Wi-Fi: Internet, který utáhne všechny vaše Zoomy i Netflix.
Vyberte si svůj pokoj:
Dva obří pokoje (necelých 21 m²): Každý pro max. 2 osoby. Jsou tu postele, pracovní stoly a spousta úložného prostoru.
Pokoj A: Má prostorné vestavné skříně.
Pokoj B: Má vlastní klimatizaci – v létě k nezaplacení!
Tip: Postele jdou k sobě srazit jako letiště, ideální pro pár.
Mini pokojík „Kajuta“ (necelých 6 m²) s terasou: Pro jednoho sólistu, který chce klid. Je tu postel, skříň, sklápěcí stůl a hlavně vlastní terasa (5 m²) jen pro tento pokoj.
Cena a podmínky
Jdeme cestou férovosti a jednoduchosti.
Cena za osobu: 7 500 Kč / měsíc
Co je v ceně? Všechno! Nájemné, energie, voda, internet i služby. Žádné doplatky vás nepřekvapí.
Jste parta 5 lidí? Pokud si vezmete byt jako celek, máme pro vás bonus:
Nájemné za celý byt 30 000 Kč + zálohy na energie 4 000 Kč, které jsou ale formou vyučtovatelných záloh. Máte tedy ve svých rukou hospodaření s energiemi a šanci na nižší náklady na bydlení.
Doplňková služba: Nechcete řešit úklid společných prostor? Za příplatek vám ho rádi zajistíme, stejně jako pravidelnou výměnu ložního prádla.
Lokalita: Krkoškova
Černá Pole jsou brněnský highlight. Kousek na MENDELU, pár minut na tramvaj směr centrum, park Lužánky v docházkové vzdálenosti a les pár zastávek autobusem. Ze zastávky Štefánikova čtvrt jede MHD na všechny strany.
Mrkněte na fotky i video prohlídku.
Chcete se přijít podívat osobně? Napište mi pár slov o sobě a domluvíme se na prohlídce!
Premium student accommodation in Černá Pole – Krkoškova Street
Are you looking for a place where you won’t feel cramped and where you can truly feel at home? We offer a freshly furnished, spacious apartment in a brick family house located in the beautiful Černá Pole area of Brno. No high-rise apartment block here – just peace, high ceilings, and a garden within walking distance for summer barbecues, studying, or simply relaxing in the fresh air.
The apartment comes fully equipped with brand-new furniture (all of which stays with us, but you’re welcome to rearrange it to your liking or add anything you need).
Shared Areas
Common Kitchen: A large shared kitchen featuring a dishwasher (say goodbye to dishwashing disputes!), refrigerator, gas stove, microwave, and a handy pantry for your supplies. A big table comfortably seats six people.
Spa-Like Bathroom: Enjoy a bathtub for relaxing and a shower for those quick mornings. A washing machine is provided, and the toilet is in a separate room.
Speedy Wi-Fi: Internet robust enough to handle all your Zoom meetings and Netflix streaming.
Choose Your Room
Two Spacious Rooms (just under 21 m² each): Each room accommodates up to 2 people, and comes with beds, desks, and plenty of storage.
• Room A: Features ample built-in wardrobes.
• Room B: Comes with its own air conditioning – an unbeatable bonus in the summer!
Tip: The beds can be pushed together, ideal for a couple.
Mini Room “Kajuta” (just under 6 m²) with Terrace: Perfect for a solo individual seeking quiet. It includes a bed, wardrobe, a folding desk, and most importantly, its own private terrace (5 m²) exclusively for this room.
Price and Terms
We believe in fairness and simplicity.
Price per person: 7,500 CZK/month
What’s included? Everything! Rent, utilities, water, internet, and services – with no unexpected extra charges.
Are you a group of 5? If you rent the entire apartment, we have a bonus for you:
Rent for the whole apartment is 30,000 CZK plus a utility deposit of 4,000 CZK, which is billed through an accountable deposit system. This way, you control your energy usage and have the chance to lower your living costs.
Additional Service: Don’t want to deal with cleaning the shared areas? For an extra charge, we’d be happy to take care of it for you, as well as provide regular linen changes.
Location – Krkoškova
Černá Pole is one of Brno’s highlights. It’s a stone’s throw from MENDELU, just a few minutes by tram to the city center, with Lužánky Park within walking distance, and a forest only a few bus stops away. From the Štefánikova Čtvrť station, public transport will take you in every direction.
Check out the photos and video tour.
Want to see it in person? Write me a few words about yourself and we’ll arrange a viewing!
Property characteristics
| Available from | 15/03/2026 |
|---|---|
| Building construction | Brick |
| Fully furnished | Fully furnished |
| Listing ID | 1001619 |
| Usable area | 85 m² |
| Condition | Good |
|---|---|
| Layout | 3+1 |
| Floor | 2. floor out of 3 |
| Location | Quiet area |
| Price per unit | CZK 88 / m2 |
What does this listing have to offer?
| Front garden 25 m² |
| Terrace: 6 m² |
What you will find nearby
Interested?
Communicate all private owners and save CZK 7,500 on commissions.
Still looking for the right one?
Set up a watchdog. You will receive a summary of your customized offers 1 time a day by email. With the Premium profile, you have 5 watchdogs at your fingertips and when something comes up, they notify you immediately.
























