
Flat to rent 1 bedroom • 37 m² without real estateZenklova, Prague - Kobylisy
Interested?
Communicate all private owners and save CZK 15,000 on commissions.
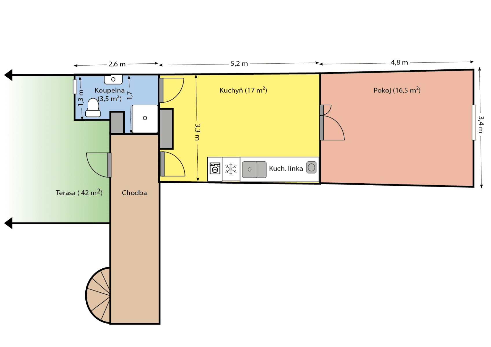
Nabízím k pronájmu útulný a kompletně zařízený byt o dispozici 1+1 a výměře 37 m², který se nachází v 1. patře rodinného domu. Byt tvoří samostatnou bytovou jednotku a nabízí příjemné a klidné bydlení s dostatkem soukromí.
Byt je plně vybavený – k dispozici je kuchyňská linka se spotřebiči, lednice, pračka a koupelna se sprchovým koutem a toaletou. Díky praktickému uspořádání je byt vhodný pro jednotlivce nebo pár, kteří hledají pohodlné bydlení na dobře dostupném místě.
Velkou výhodou je výborná lokalita nedaleko stanice metra Kobylisy. V okolí se nachází veškerá občanská vybavenost, obchody, plavecký bazén i parky pro volnočasové aktivity a relaxaci.
Pouze česky mluvící nájemníci, nekuřáci.
Property characteristics
| Available from | 15/03/2026 |
|---|---|
| Building construction | Brick |
| Fully furnished | Fully furnished |
| Listing ID | 1001553 |
| Usable area | 37 m² |
| Condition | Good |
|---|---|
| Layout | 1 bedroom |
| Floor | Ground floor |
| Location | Centre |
| Price per unit | CZK 405 / m2 |
What you will find nearby
Interested?
Communicate all private owners and save CZK 15,000 on commissions.
Still looking for the right one?
Set up a watchdog. You will receive a summary of your customized offers 1 time a day by email. With the Premium profile, you have 5 watchdogs at your fingertips and when something comes up, they notify you immediately.
















