
Flat for sale 2+kk • 100 m² without real estateBlissestraße 55 Berlin Wilmersdorf Berlin 10713
100 m² apartment privately owned in a sought-after location in Berlin-Wilmersdorf.
The apartment is located on the 2nd floor of a well-maintained multi-family house from the 1940s on Blissestraße and impresses with its spacious, bright, and flexible layout.
Currently, the apartment has 2.5 rooms. A passage exists between two rooms at the moment, creating a generous living and dining area.
With minor effort, this area can once again be separated, so that the apartment offers 3 separate rooms.
Spacious apartments with around 100 m² of living space are relatively rare in this area and offer plenty of room for individual living concepts.
The apartment is ideal for couples, small families, or anyone who wants to combine generous living space with a separate working area.
The sale is made directly by the owner and is therefore commission-free.
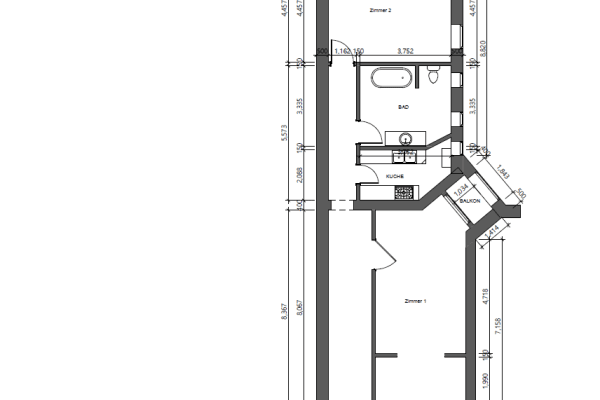
Floor Plan
The apartment is characterized by very bright rooms and a pleasant spaciousness.
All rooms are easily accessible from the large hallway.
The living area consists of:
• an open dining room
• a spacious living room
• an adjacent conservatory, which brings plenty of light into the apartment
The bedroom is located in a quiet area and offers ample space for a large double bed as well as extra storage space and a desk.
Additionally, the apartment comes with a fitted kitchen that is already installed.
⸻
Bathroom
The large main bathroom is very spacious and features:
• a separate shower
• a separate bathtub
• two washbasins
• a connection available for a washing machine
There is also a generous guest WC.
The apartment is located at Blissestraße 55 in Berlin-Wilmersdorf, one of the most popular residential areas in West Berlin.
Wilmersdorf is characterized by its quiet residential streets, established community, and excellent infrastructure.
In the immediate vicinity, there are numerous:
• cafés and restaurants
• supermarkets and shopping opportunities
• schools and daycares
• parks and green spaces
The public transport connections are also very good.
• Approximately 100 m² of living space, very well maintained
• 2.5 rooms, optionally 3 rooms again
• 2nd floor
• no elevator
• conservatory
• fitted kitchen
• large bathroom with bathtub, shower, and two washbasins
• separate guest WC
• laminate flooring (installed in 2010)
• windows replaced in 2010
• very bright rooms
• large hallway
• private basement room
• additional attic storage compartment
• well-maintained multi-family house
The sale is made directly by the owner and is therefore commission-free.
Real estate agent inquiries are not welcome.
Viewings are possible by appointment.
Due to high demand, we kindly ask interested buyers to provide a brief introduction of themselves when inquiring.
All relevant documents are available and can be viewed after the appointment if desired.
Property characteristics
| Age | Over 5050 years |
|---|---|
| Condition | Good |
| Floor | 2. floor out of 5 |
| EPC | E - Wasteful |
| Price per unit | €5,890 / m2 |
| Available from | 14/03/2026 |
|---|---|
| Layout | 2+kk |
| Listing ID | 1001015 |
| Usable area | 100 m² |
What does this listing have to offer?
| Balcony | |
| MHD 1 minute on foot |
| Basement |
What you will find nearby
Still looking for the right one?
Set up a watchdog. You will receive a summary of your customized offers 1 time a day by email. With the Premium profile, you have 5 watchdogs at your fingertips and when something comes up, they notify you immediately.
























