
Flat to rent 2 bedroom • 54 m² without real estateStuttgart Mitte Baden-Württemberg 70190
High-quality, modern furnished 2-room apartment with a large balcony and a great view over Stuttgart in a central yet quiet location in Stuttgart Mitte.
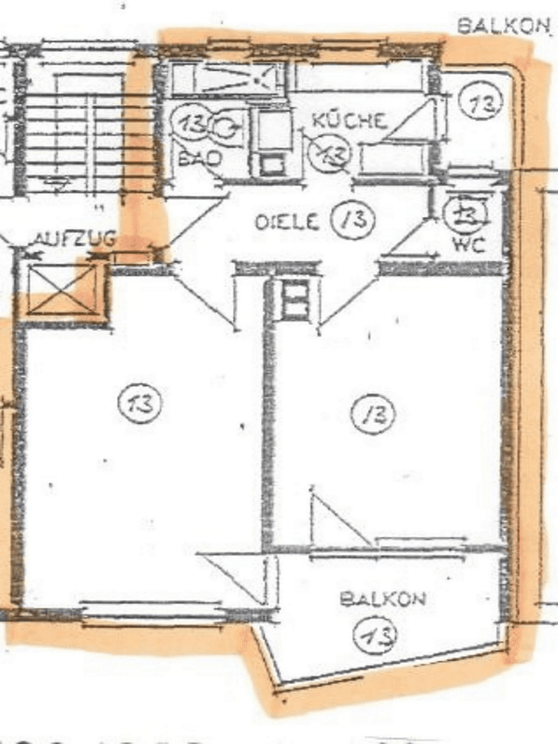
The apartment is located on the 5th floor with an elevator.
The spacious living room is furnished with a large leather sofa (that can be converted into a guest bed), a flat-screen TV, a stereo system, a sideboard, a bookshelf, and a dining table with chairs.
The bedroom includes, among other things, a large bed (1.60 x 2.00 m), a chest of drawers, and a wardrobe (4 meters).
Access to the large balcony is available from both the living room and the bedroom.
The new bathroom with natural light features a bathtub with a shower attachment. The toilet is separate.
The fitted kitchen with dishwasher and a small kitchen balcony is fully equipped.
The washing machine is located in a lockable basement area belonging exclusively to the apartment.
Smoking is not permitted inside the apartment, but is allowed on the balconies.
Within an 8-10 minute walk, you are at Schlossplatz, the main train station, and the palace park.
Nearby the apartment, there are shopping opportunities, restaurants, and cafes.
One of Stuttgart’s most exclusive hotels, the Le MERIDIEN, is located right next door. There, external guests can also use the swimming and wellness area for a fee.
Just a 3-minute walk to the U1, U2, U4, U9, U14 at the Staatsgalerie stop, and a 10-minute walk to Stuttgart’s main train station.
If interested, I would be happy to receive a short message with some information about you (who is moving in and from when you are looking).
Property characteristics
| Age | Over 5050 years |
|---|---|
| Layout | 2 bedroom |
| Listing ID | 1000777 |
| Usable area | 54 m² |
| Condition | Good |
|---|---|
| Floor | 5. floor out of 5 |
| EPC | C - Economical |
| Price per unit | €18 / m2 |
What does this listing have to offer?
| Balcony | |
| Basement | |
| Lift | |
| MHD 4 minutes on foot |
| Wheelchair accessible | |
| Garage | |
| Parking |
What you will find nearby
Still looking for the right one?
Set up a watchdog. You will receive a summary of your customized offers 1 time a day by email. With the Premium profile, you have 5 watchdogs at your fingertips and when something comes up, they notify you immediately.




















