House for sale 5+1 • 150 m² without real estate, North Rhine-Westphalia
, North Rhine-WestphaliaPublic transport 1 minute of walking • Parking • GarageModernized single-family house in Rheine Hauenhorst
- No commission fee
- Ready for occupancy by arrangement
- Energy efficiency class C
Overview:
Single-family house, built in 1978, with approximately 150 m² of living space on a 569 m² plot. The property is fully basemented and includes a garage as well as several parking spaces.
Description:
This well-maintained and modernized single-family house impresses with its thoughtful layout, high-quality finishing details, and a pleasant living atmosphere. The clear floor plan allows for both communal living and private retreats.
The property is located in the Rheine district of Hauenhorst, one of the city’s most popular and family-friendly residential areas. Quiet residential streets, good infrastructure, and fast access to the city center characterize this location.
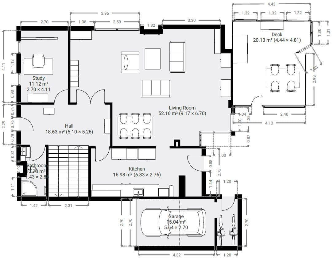
Features and Layout:
Ground Floor: Spacious living and dining area with underfloor heating, a study or bedroom with a double-wing fitted wardrobe, a high-quality Nobilia fitted kitchen with black granite work surfaces and Siemens built-in appliances, and a modernized bathroom with a shower, rimless WC, washbasin, and underfloor heating.
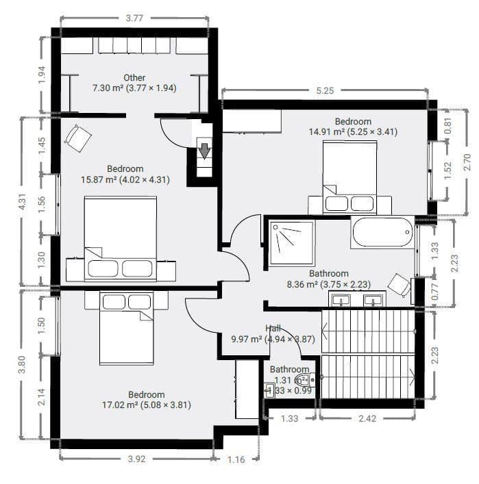
Upper Floor: Three bedrooms, each with a walk-in wardrobe, a modernized bathroom with a shower, bathtub, two washbasins, and underfloor heating, as well as a separate guest WC.
Basement: Fully basemented with generous utility and storage spaces.
Outdoor Area:
The private, fully developed garden offers a secluded retreat. A covered terrace allows the outdoor area to be used regardless of the weather. Behind the garage there is an additional storage room for bicycles and gardening tools.
Conclusion:
A high-quality, modernized single-family house in the sought-after area of Rheine-Hauenhorst. Spacious living areas, modern amenities, and a peaceful residential environment make this property an attractive choice for families with long-term aspirations.
Property characteristics
| Age | Over 5050 years |
|---|---|
| Layout | 5+1 |
| EPC | C - Economical |
| Land space | 569 m² |
| Price per unit | €3,127 / m2 |
| Condition | After reconstruction |
|---|---|
| Listing ID | 1000647 |
| Usable area | 150 m² |
| Total floors | 2 |
What does this listing have to offer?
| Basement | |
| Parking | |
| Terrace |
| Garage | |
| MHD 1 minute on foot |
What you will find nearby
Still looking for the right one?
Set up a watchdog. You will receive a summary of your customized offers 1 time a day by email. With the Premium profile, you have 5 watchdogs at your fingertips and when something comes up, they notify you immediately.




















